Eladó Lakás, Kőröshegy

Ingatlan azonosító: HI-2528101

Somogy megye - Kőröshegy, Új építésű lakás


68 000 000 Ft (178 478 €)

  • Hirdetés feladója: Ingatlaniroda
  • Pontos cím: Kőröshegy
  • Típus: Eladó
  • Belső irodai azonosító: M320477-5136827
  • Alapterület: 65 m²
  • Építés éve: 2026
  • Egész szobák száma (12 m² felett): 2 db
  • Félszobák száma (6-12 m² között): 0 db
  • Ingatlan állapota: új építésű
  • Komfort: összkomfortos
  • Fűtés: egyéb
  • Lift: nincs
  • Akadálymentesített: nincs
  • Napelem van?: nincs
  • Erkély: van
  • Légkondicionáló: nincs
  • Kilátás: udvari
  • A lakás falazata: Tégla
  • Közös költség mértéke: 1

Leírás

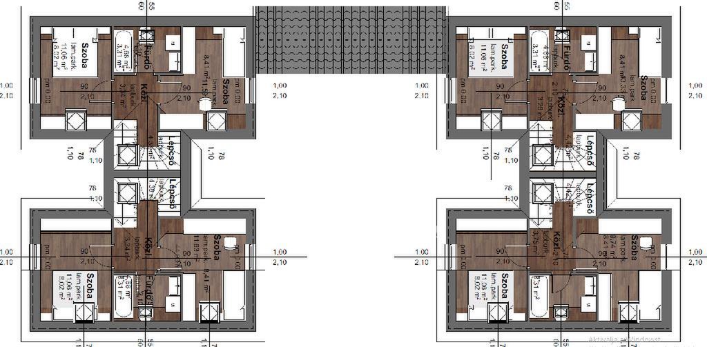
Kőröshegyen a völgyhíd lábánál eladásra kínálunk egy 65 m2 alapterületű, modern, újépítésű társasházi lakást, a Balatontól 5 km-re. A földszinten tágas, világos amerikai konyhás étkező és nappali kerül kialakításra, továbbá egy mosdó és egy tároló helyiség is helyet kap. A tetőtérben két hálószoba és egy kádas fürdőszoba található. Az épület 30-as Porotherm téglából, vasbeton födémmel és alaplemezzel készül, 10 cm homlokzati, valamint 40 cm tetőszigeteléssel, így kiemelkedően energiahatékony otthont kínál, 3 rétegű, modern színezett nyílászárókkal. A fűtést hőszivattyús padlófűtés biztosítja, a nyári forróságban pedig klímaberendezés ad enyhülést. A lakások csak a lépcsőházi falnál és az előszoba egyik falánál kapcsolódnak egymáshoz, így a zajszigetelés és a privát tér maximálisan biztosított. A lakáshoz saját első- és hátsókert, valamint autóbeálló tartozik, melyek összmérete 50 m2. Az alaprajzon 2. számú lakás. Budapest egy óra autózással elérhető. A csendes szórakozás lehetősége is adott, ugyanis 400 m-re van az ingatlantól egy horgásztó. Ajánljuk az ingatlant mindazoknak akik a Balatonhoz közel szeretnének lakni, egész évben nyaralni, vagy egy jó befektést keresnek. Az ingatlan alkalmas az Otthon Start Programra. Bővebb információért, megtekintésért keressen telefonon! M320477 Kuti Dávid

E-mail küldése a hirdetőnek

Hibás hirdetés bejelentése

Sikeres elküldtük a hiba bejelentést.

Hirdető adatai

Kuti Dávid
E-mail cím: david.kuti@otpip.hu
Telefonszám: +36207751127
OTPip
Hirdetés feladója: Ingatlaniroda
Ingatlaniroda: OTPip
E-mail cím: siofok.sio@otpip.hu
Telefonszám: +36703163864

Képek



Térkép


Ajánlott ingatlanok

Új építésű lakás

Eladó Lakás, Kőröshegy

Keresés azonosító alapján: HI-2528099
  • Kőröshegy
  • Alapterület: 65 m²
  • Ár: 83 500 000 Ft (219 160 €)
  • Feltöltés dátuma: 2026.01.31.
  •  
Új építésű lakás

Eladó Lakás, Kőröshegy

Keresés azonosító alapján: HI-2528100
  • Kőröshegy
  • Alapterület: 66 m²
  • Ár: 78 000 000 Ft (204 724 €)
  • Feltöltés dátuma: 2026.01.31.
  •  
Családi ház

Eladó Ház, Dévaványa

Keresés azonosító alapján: HI-2524635
  • Dévaványa
  • Alapterület: 240 m²
  • Telekterület: 1 364 m²
  • Ár: 63 000 000 Ft (165 354 €)
  • Feltöltés dátuma: 2026.01.21.
  •  
Családi ház

Eladó Ház, Balatonlelle

Keresés azonosító alapján: HI-2524637
  • Balatonlelle
  • Alapterület: 210 m²
  • Telekterület: 605 m²
  • Ár: 85 000 000 Ft (223 097 €)
  • Feltöltés dátuma: 2026.01.21.
  •  
Facebook
Blogger
Twitter
Tweets by hasznaltingatla
Flickr