Eladó lakás, Miskolc

Ingatlan azonosító: HI-2521239

Borsod-Abaúj-Zemplén megye - Miskolc, Tégla lakás


33 900 000 Ft (88 512 €)

  • Hirdetés feladója: Ingatlaniroda
  • Pontos cím: Miskolc
  • Típus: Eladó
  • Belső irodai azonosító: LK048760-5116142
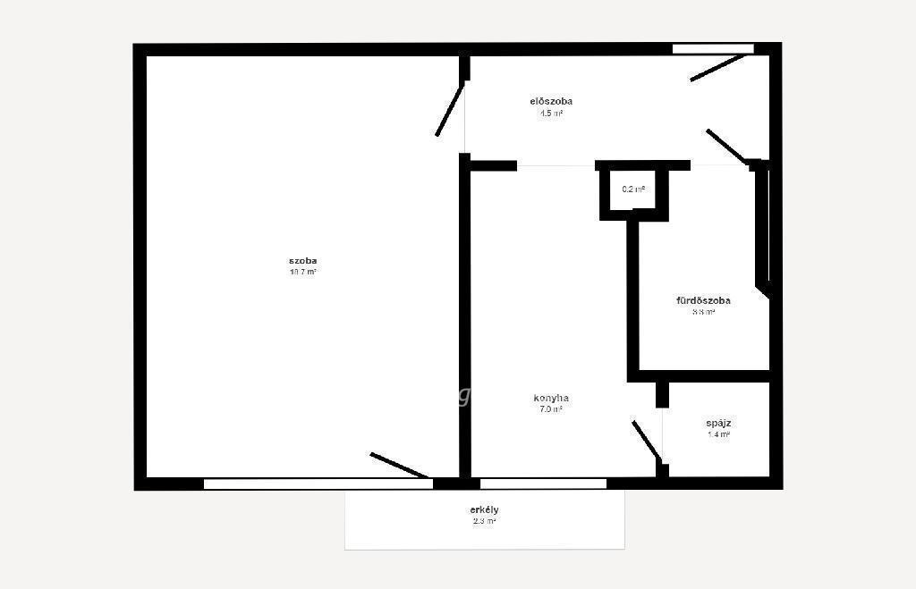
  • Alapterület: 54 m²
  • Építés éve: 1970
  • Egész szobák száma (12 m² felett): 1 db
  • Félszobák száma (6-12 m² között): 1 db
  • Fürdőszobák száma: 1 db
  • Emelet: 5. emelet
  • Ingatlan állapota: felújított
  • Fűtés: gázkazán
  • Lift: van
  • Akadálymentesített: nincs
  • Napelem van?: nincs
  • Erkély: nincs
  • Légkondicionáló: nincs
  • Tájolás: kelet
  • A lakás falazata: Tégla

Leírás

Eladó teljes körűen felújított 2 szobás lakás Miskolc - Selyemréten.Miskolc-Selyemréten kínálom megvételre ezt az 54 m²-es, 2 szobás, keleti tájolású, 5. emeleti lakást, amely a tulajdonosok igényes felújításának köszönhetően azonnal birtokba vehető, további ráfordítást nem igényel.A felújítás során az esztétikai és műszaki elemek egyaránt megújultak, így a lakás a mai elvárásoknak teljes mértékben megfelel.A keleti tájolásnak köszönhetően a helyiségeket egész délelőtt természetes fény tölti be, ami világos, barátságos otthonérzetet biztosít.A lakásban laminált parketta került lerakásra, valamint új beltéri ajtók kerültek beépítésre, amelyek tovább növelik az ingatlan értékét és esztétikáját.A konyha szintén megújult: modern konyhabútor és beépített tűzhely áll rendelkezésre, amely azonnali használatot tesz lehetővé.Főbb paraméterek:- laminált parketta és kerámia burkolatok;- új beltéri ajtók;- új biztonsági bejárati ajtó;- modern konyhabútor beépített tűzhellyel;- átlagos állapotú eredeti műanyag nyílászárók;- gazdaságos, egyedi gázkazánnal megoldott fűtés;- álmennyezet, rejett világítás;- új elektromos és vízvezetékek;- új szaniterek;- önálló tárolóhelység.A környék infrastruktúrája kiváló: a közelben találhatók bevásárlási lehetőségek, oktatási intézmények és tömegközlekedési kapcsolatok, így az ingatlan mind saját célra, mind befektetésre egyaránt kiváló választás. Az ingatlan tehermentes, rövid határidővel birtokba vehető.

E-mail küldése a hirdetőnek

Hibás hirdetés bejelentése

Sikeres elküldtük a hiba bejelentést.

Hirdető adatai

Adorján Kristóf
E-mail cím: adorjan.kristof@dh.hu
Telefonszám: +36309925011
Duna House
Hirdetés feladója: Ingatlaniroda
Ingatlaniroda: Duna House
E-mail cím: miskolc@dh.hu
Telefonszám: +3646797978

Képek



Térkép


Ajánlott ingatlanok

Tégla lakás

Eladó lakás, Miskolc, Csabai kapu

Keresés azonosító alapján: HI-2521244
  • Miskolc
  • Alapterület: 34 m²
  • Ár: 26 900 000 Ft (70 235 €)
  • Feltöltés dátuma: 2026.01.13.
  •  
Tégla lakás

Eladó lakás, Miskolc, belváros Teleki

Keresés azonosító alapján: HI-2521223
  • Miskolc
  • Alapterület: 100 m²
  • Ár: 44 900 000 Ft (117 232 €)
  • Feltöltés dátuma: 2026.01.13.
  •  
Családi ház

Eladó ház, Miskolc, Győri kapu családi ház

Keresés azonosító alapján: HI-2521229
  • Miskolc
  • Alapterület: 217 m²
  • Telekterület: 729 m²
  • Ár: 112 000 000 Ft (292 428 €)
  • Feltöltés dátuma: 2026.01.13.
  • klímás
Családi ház

Eladó ház, Miskolc, Lillafüred

Keresés azonosító alapján: HI-2521218
  • Miskolc
  • Alapterület: 90 m²
  • Telekterület: 174 m²
  • Ár: 74 900 000 Ft (195 561 €)
  • Feltöltés dátuma: 2026.01.13.
  •  
Facebook
Blogger
Twitter
Tweets by hasznaltingatla
Flickr