Eladó Lakás, Miskolc

Ingatlan azonosító: HI-2489342

Borsod-Abaúj-Zemplén megye - Miskolc, Csúsztatott zsalus


29 900 000 Ft (77 865 €)

  • Hirdetés feladója: Ingatlaniroda
  • Pontos cím: Miskolc
  • Típus: Eladó
  • Belső irodai azonosító: M312570-5061019
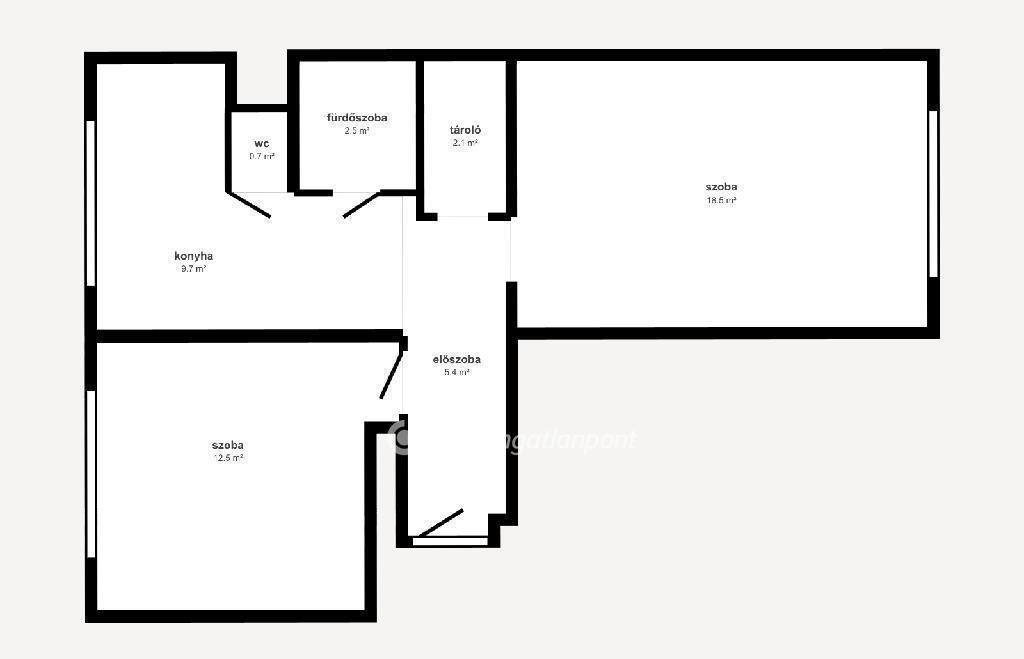
  • Alapterület: 43 m²
  • Építés éve: 1975
  • Egész szobák száma (12 m² felett): 1 db
  • Félszobák száma (6-12 m² között): 1 db
  • Emelet: 2. emelet
  • Ingatlan állapota: közepes állapotú
  • Komfort: összkomfortos
  • Fűtés: egyéb
  • Lift: nincs
  • Akadálymentesített: nincs
  • Napelem van?: nincs
  • Erkély: nincs
  • Légkondicionáló: nincs
  • Kilátás: udvari
  • Közös költség mértéke: 10000

Leírás

Miskolc, Felújított lakás, a Katowice városrészben eladó! Eladásra kínálok egy második emeleti, felújított lakást Miskolc népszerű és jól megközelíthető Katowice városrészében. A lakás csendes, nyugodt környezetben helyezkedik el, egy rendezett, kulturált lakóközösségű társasházban. Felújítási munkák és műszaki állapot: Az ingatlan az elmúlt időszakban jelentős felújításon esett át, melynek keretében: A fürdőszoba teljes körűen fel lett újítva: új burkolatok, szaniterek, vízvezetékek lettek beépítve. A konyha modernizálása is megtörtént, új burkolat, csaptelep. Műanyag, hőszigetelt nyílászárók kerültek beépítésre, amelyek nemcsak a hő- és hangszigetelést javítják, de esztétikailag is modern megjelenést biztosítanak. Biztonsági bejárati ajtó gondoskodik a lakók nyugalmáról. A teljes vízvezeték-hálózat és részben a villamos hálózat korszerűsítése is megtörtént, ez különösen fontos szempont a hosszú távú megbízható működéshez. A fűtés téljesen egyedi mika 6-os gázkazánról történik , ami lehetővé teszi az egyedi hőmérséklet-szabályozást és költséghatékony üzemeltetést. A melegvizet modern Heizer indirekt tároló biztosítja. Elrendezés és környezet: A lakás világos, jól benapozott, elrendezése praktikus, minden helyiség jól kihasználható. Kiváló választás fiatal pároknak, idősebbeknek, de akár befektetésnek is, azonnal bérbe adható állapotban van. A ház környéke zöldövezeti, parkosított, mégis jól megközelíthető. Parkolás az épület előtt, közterületen megoldott. A Közelben minden megtalálható: Bevásárlási lehetőségek, Óvoda, iskola, bölcsőde, Megyei kórház, Orvosi rendelő, gyógyszertár Tömegközlekedés (busz, villamos pár perc gyalog) Játszótér, park Ez a lakás nem igényel további ráfordítást, ide tényleg csak költözni kell! Jöjjön el, és tekintse meg, garantáltan nem fog csalódni! Vevőink rendelkezésére állunk finanszírozási kérdésekben is OTP banki hátterünkkel! Kérem tekintse meg, virtuális sétámat is. Hívása során hivatkozzon az M312570 referenciaszámra!

E-mail küldése a hirdetőnek

Hibás hirdetés bejelentése

Sikeres elküldtük a hiba bejelentést.

Hirdető adatai

Klubert Gergő
E-mail cím: gergo.klubert@otpip.hu
Telefonszám: +36-70-907-0598
OTPip
Hirdetés feladója: Ingatlaniroda
Ingatlaniroda: OTPip
E-mail cím: miskolc.szemere@otpip.hu
Telefonszám: +36-70-606-0062

Képek



Térkép


Ajánlott ingatlanok

Csúsztatott zsalus

Eladó Lakás, Kazincbarcika

Keresés azonosító alapján: HI-2475242
  • Kazincbarcika
  • Alapterület: 58 m²
  • Ár: 25 900 000 Ft (67 448 €)
  • Feltöltés dátuma: 2025.09.17.
  •  
Családi ház

Eladó Ház, Miskolc

Keresés azonosító alapján: HI-2423930
  • Miskolc
  • Alapterület: 338 m²
  • Telekterület: 1 059 m²
  • Ár: 149 000 000 Ft (388 021 €)
  • Feltöltés dátuma: 2025.05.27.
  •  
Családi ház

Eladó Ház, Nyékládháza

Keresés azonosító alapján: HI-2442289
  • Nyékládháza
  • Alapterület: 201 m²
  • Telekterület: 853 m²
  • Ár: 39 000 000 Ft (101 563 €)
  • Feltöltés dátuma: 2025.07.08.
  •  
Panel lakás

Eladó Lakás, Kazincbarcika

Keresés azonosító alapján: HI-2406146
  • Kazincbarcika
  • Alapterület: 114 m²
  • Ár: 42 000 000 Ft (109 375 €)
  • Feltöltés dátuma: 2025.04.24.
  •  
Facebook
Blogger
Twitter
Tweets by hasznaltingatla
Flickr