Eladó Lakás, Miskolc

Ingatlan azonosító: HI-2505379

Borsod-Abaúj-Zemplén megye - Miskolc, Tégla lakás


70 900 000 Ft (193 716 €)

  • Hirdetés feladója: Ingatlaniroda
  • Pontos cím: Miskolc Ifjúság útja
  • Típus: Eladó
  • Belső irodai azonosító: M315785-5092645
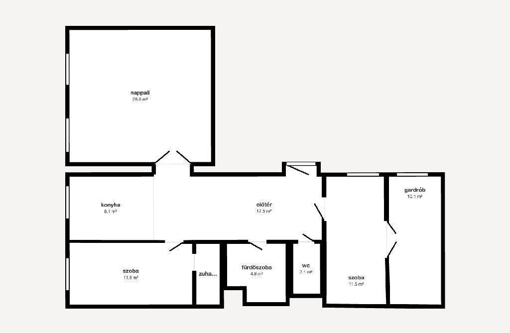
  • Alapterület: 94 m²
  • Építés éve: 1920
  • Egész szobák száma (12 m² felett): 3 db
  • Félszobák száma (6-12 m² között): 0 db
  • Ingatlan állapota: jó állapotú
  • Komfort: összkomfortos
  • Fűtés: egyéb
  • Lift: nincs
  • Akadálymentesített: nincs
  • Napelem van?: nincs
  • Erkély: nincs
  • Légkondicionáló: nincs
  • Kilátás: utcai
  • A lakás falazata: Tégla
  • Közös költség mértéke: 8000

Leírás

Exkluzív, felújított nagypolgári lakás Miskolc belvárosának szívében. Családoknak és befektetőknek egyaránt tökéletes választás! Eladó Miskolc belvárosának egyik legkedveltebb részén egy stílusos, 94 nm-es nagypolgári lakás, amely tágas tereivel és elegáns hangulatával azonnal magával ragadja az embert. Az ingatlan egy rendezett társasház 1. emeletén található, és egy éve teljes körű felújításon esett át, így új tulajdonosát hibátlan műszaki és esztétikai állapotban várja. A lakásban 3 hálószoba, világos nappali, egyedi konyha étkezővel, két fürdőszoba, gardróbszoba és erkély kapott helyet. A fűtést modern, zárt égésterű gázkazán, a kényelmet pedig 3 klímaberendezés biztosítja. A beépített bútorok a vételár részét képezik. Elhelyezkedése kivételes: a belváros nyugodt, mégis központi részén található, pár perc sétára minden fontos szolgáltatástól, üzlettől, iskolától és kávézótól. A történelmi környezet és a modern városi életstílus itt valódi harmóniában élnek együtt. Ez a lakás kiváló választás családok számára, akik szeretnének belvárosi, mégis csendes otthonban élni, de befektetőknek is ideális, hiszen prémium elhelyezkedésének és állapotának köszönhetően azonnal kiadható, értéktartó ingatlan. Amennyiben egy különleges, minőségi belvárosi otthont keres, ne hagyja ki ezt a lehetőséget! Elhelyezkedéséből adódóan iskola, óvoda, posta, bolt, templom, és egyéb szolgáltatók 5-10 percen belül elérhetők. Banki hátterünknek köszönhetően 3%-os Otthon Start hitel, CSOK, Falusi CSOK, Babaváró hitel ügyintézésben is tudunk segíteni ügyfeleinknek. Érdeklődés esetén kérem hivatkozzon az M315785-ös referenciaszámra. Referencia szám: M315785

E-mail küldése a hirdetőnek

Hibás hirdetés bejelentése

Sikeres elküldtük a hiba bejelentést.

Hirdető adatai

Piskóti Tibor Lajos
E-mail cím: tibor.lajos.piskoti@otpip.hu
Telefonszám: +36-70-322-2946
OTPip
Hirdetés feladója: Ingatlaniroda
Ingatlaniroda: OTPip
E-mail cím: miskolc.szemere@otpip.hu
Telefonszám: +36-70-606-0062

Képek



Térkép


Ajánlott ingatlanok

Tégla lakás

Eladó Lakás, Miskolc

Keresés azonosító alapján: HI-2554922
  • Miskolc Csortos Gyula utca
  • Alapterület: 48 m²
  • Ár: 29 900 000 Ft (81 694 €)
  • Feltöltés dátuma: 2026.03.26.
  •  
Tégla lakás

Eladó Lakás, Tiszaújváros

Keresés azonosító alapján: HI-2565429
  • Tiszaújváros Liszt Ferenc utca
  • Alapterület: 39 m²
  • Ár: 22 500 000 Ft (61 475 €)
  • Feltöltés dátuma: 2026.04.27.
  •  
Tégla lakás

Eladó Lakás, Miskolc

Keresés azonosító alapján: HI-2554915
  • Miskolc Széchenyi István út
  • Alapterület: 91 m²
  • Ár: 67 000 000 Ft (183 060 €)
  • Feltöltés dátuma: 2026.03.26.
  •  
Tégla lakás

Eladó Lakás, Miskolc

Keresés azonosító alapján: HI-2565459
  • Miskolc Baross Gábor utca
  • Alapterület: 55 m²
  • Ár: 39 900 000 Ft (109 016 €)
  • Feltöltés dátuma: 2026.04.27.
  • klímás
Facebook
Blogger
Twitter
Tweets by hasznaltingatla
Flickr