Eladó Lakás, Nyíregyháza

Ingatlan azonosító: HI-2488579

Szabolcs-Szatmár-Bereg megye - Nyíregyháza, Tégla lakás


38 800 000 Ft (100 518 €)

  • Hirdetés feladója: Ingatlaniroda
  • Pontos cím: Nyíregyháza
  • Típus: Eladó
  • Belső irodai azonosító: M314877-5059278
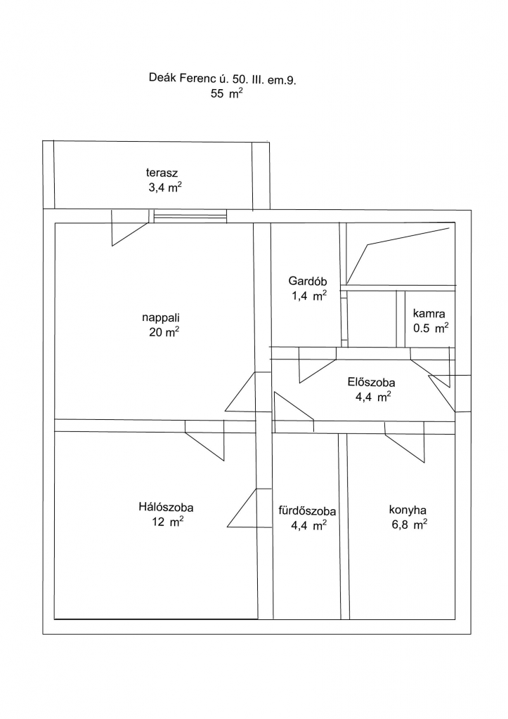
  • Alapterület: 55 m²
  • Egész szobák száma (12 m² felett): 2 db
  • Félszobák száma (6-12 m² között): 0 db
  • Emelet: 3. emelet
  • Ingatlan állapota: jó állapotú
  • Fűtés: gáz (konvektor)
  • Lift: nincs
  • Akadálymentesített: nincs
  • Napelem van?: nincs
  • Erkély: nincs
  • Légkondicionáló: nincs
  • A lakás falazata: Tégla

Leírás

Belvároshoz közel, a Deák Ferenc utcán eladó egy szigetelt, tégla falazatú társasházban 3. emeleti, 55 négyzetméteres, 2 szobás, hőszigetelt, műanyag nyílászárós , kelet-nyugati fekvésű, napfényes, jó állapotú, erkélyes lakás. Az ingatlan azonnal birtokba vehető, teljes bútorzattal, gépesítéssel kerül átadásra ? minden, ami a fotókon látható, a vételár részét képezi. A lakás világos, jól elrendezett, a házban jó lakóközösség biztosítja a nyugodt, barátságos környezetet. Fiataloknak, első lakáshoz jutóknak, illetve befektetőknek is remek választás, hiszen azonnal költözhető, tehermentes, és kiváló elhelyezkedésű ingatlan. A lakás saját használatú pincével rendelkezik! Kérem, tekintse meg személyesen, várom hívását akár hétvégén is! OTP Banki hátterünknek köszönhetően finanszírozási igényekben (pl. Babaváró, Falusi CSOK, CSOK Plusz, Lakáshitel, Személyi kölcsön stb.), illetve biztosítások tekintetében is díjmentesen, soron kívüli ügyintézéssel segítem ügyfeleim! Referenciaszám: M314877

E-mail küldése a hirdetőnek

Hibás hirdetés bejelentése

Sikeres elküldtük a hiba bejelentést.

Hirdető adatai

Kissné Orosz Ildikó Krisztina
E-mail cím: krisztina.kissne.orosz.ildiko@otpip.hu
Telefonszám: +36204680753
OTPip
Hirdetés feladója: Ingatlaniroda
Ingatlaniroda: OTPip
E-mail cím: nyiregyhaza.hunyadi@otpip.hu
Telefonszám: +36303397954

Képek



Térkép


Ajánlott ingatlanok

Tégla lakás

Eladó Lakás, Nyíregyháza

Keresés azonosító alapján: HI-2477401
  • Nyíregyháza
  • Alapterület: 61 m²
  • Ár: 52 000 000 Ft (134 715 €)
  • Feltöltés dátuma: 2025.09.20.
  •  
Tégla lakás

Eladó Lakás, Nyíregyháza

Keresés azonosító alapján: HI-2509215
  • Nyíregyháza
  • Alapterület: 75 m²
  • Ár: 93 000 000 Ft (240 933 €)
  • Feltöltés dátuma: 2025.12.03.
  •  
Tégla lakás

Eladó Lakás, Nyíregyháza

Keresés azonosító alapján: HI-2509212
  • Nyíregyháza
  • Alapterület: 36 m²
  • Ár: 31 000 000 Ft (80 311 €)
  • Feltöltés dátuma: 2025.12.03.
  •  
Tégla lakás

Eladó Lakás, Nyíregyháza

Keresés azonosító alapján: HI-2449374
  • Nyíregyháza
  • Alapterület: 89 m²
  • Ár: 73 500 000 Ft (190 415 €)
  • Feltöltés dátuma: 2025.07.26.
  •  
Facebook
Blogger
Twitter
Tweets by hasznaltingatla
Flickr