Eladó Lakás, Nyíregyháza

Ingatlan azonosító: HI-2574353

Szabolcs-Szatmár-Bereg megye - Nyíregyháza, Tégla lakás


33 000 000 Ft (91 922 €)

  • Hirdetés feladója: Ingatlaniroda
  • Pontos cím: Nyíregyháza
  • Típus: Eladó
  • Belső irodai azonosító: M327743-5233438
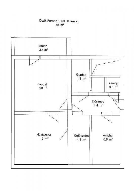
  • Alapterület: 39 m²
  • Építés éve: 1965
  • Egész szobák száma (12 m² felett): 1 db
  • Félszobák száma (6-12 m² között): 1 db
  • Emelet: földszint
  • Ingatlan állapota: közepes állapotú
  • Komfort: összkomfortos
  • Fűtés: gáz (konvektor)
  • Lift: nincs
  • Akadálymentesített: nincs
  • Napelem van?: nincs
  • Erkély: nincs
  • Légkondicionáló: van
  • Kilátás: utcai
  • A lakás falazata: Tégla
  • Közös költség mértéke: 8000

Leírás

Eladó a vasútállomás közelében egy 39 nm-es, magasföldszinti, 1+1 szobás, összkomfortos lakás. Az 1965-ben épült ingatlan átlagos állapotú, így új tulajdonosa saját igényei szerint alakíthatja, korszerűsítheti. A lakás fűtéséről gázkonvektor gondoskodik, elrendezése praktikus, kisebb családok, párok vagy akár befektetők számára is jó választás lehet. Kedvező elhelyezkedésének köszönhetően a vasútállomás, üzletek és a mindennapi élethez szükséges szolgáltatások könnyen elérhetők. Nyugodt, jól megközelíthető környezetben található, alacsony fenntartási költségekkel. Energetikai tanúsítvány nem áll rendelkezésünkre. További információért és megtekintésért keressen bizalommal. Sosem látott gyors ügyintézés, pénzügyi tanácsadás. Sorban állás? Mi az? CSOK Plusz, Babaváró vagy bármilyen más hitel....Naná, segítünk mindenben! Szóval még mindig keresed az álom otthont? Megtaláltad! Az energetikai tanúsítvány készítése folyamatban van, amint rendelkezésre áll, úgy azzal a hirdetés frissítésre kerül.

E-mail küldése a hirdetőnek

Hibás hirdetés bejelentése

Sikeres elküldtük a hiba bejelentést.

Hirdető adatai

Kissné Orosz Ildikó Krisztina
E-mail cím: krisztina.kissne.orosz.ildiko@otpip.hu
Telefonszám: +36204680753
OTPip
Hirdetés feladója: Ingatlaniroda
Ingatlaniroda: OTPip
E-mail cím: nyiregyhaza.bocskai@otpip.hu
Telefonszám: +36706060062

Képek



Térkép


Ajánlott ingatlanok

Tégla lakás

Eladó Lakás, Nyíregyháza

Keresés azonosító alapján: HI-2564466
  • Nyíregyháza
  • Alapterület: 105 m²
  • Ár: 64 900 000 Ft (180 780 €)
  • Feltöltés dátuma: 2026.04.23.
  • klímás
Tégla lakás

Eladó Lakás, Nyíregyháza

Keresés azonosító alapján: HI-2566658
  • Nyíregyháza
  • Alapterület: 80 m²
  • Ár: 73 500 000 Ft (204 735 €)
  • Feltöltés dátuma: 2026.05.01.
  •  
Tégla lakás

Eladó Lakás, Debrecen

Keresés azonosító alapján: HI-2558868
  • Debrecen
  • Alapterület: 63 m²
  • Ár: 71 500 000 Ft (199 164 €)
  • Feltöltés dátuma: 2026.04.07.
  • klímás
Tégla lakás

Eladó Lakás, Nyíregyháza

Keresés azonosító alapján: HI-2484000
  • Nyíregyháza
  • Alapterület: 115 m²
  • Ár: 59 900 000 Ft (166 852 €)
  • Feltöltés dátuma: 2025.10.02.
  •  
Facebook
Blogger
Twitter
Tweets by hasznaltingatla
Flickr