Eladó Lakás, Nyíregyháza

Ingatlan azonosító: HI-2487781

Szabolcs-Szatmár-Bereg megye - Nyíregyháza, Tégla lakás


37 400 000 Ft (98 163 €)

  • Hirdetés feladója: Ingatlaniroda
  • Pontos cím: Nyíregyháza
  • Típus: Eladó
  • Belső irodai azonosító: M312169-5058129
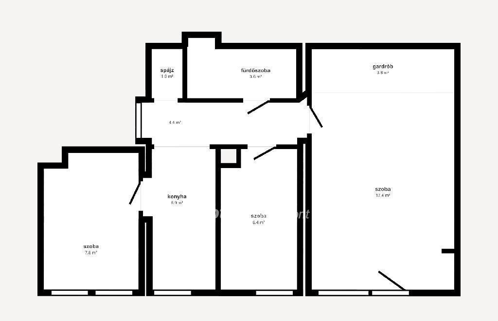
  • Alapterület: 51 m²
  • Építés éve: 1991
  • Egész szobák száma (12 m² felett): 1 db
  • Félszobák száma (6-12 m² között): 2 db
  • Emelet: 4. emelet
  • Ingatlan állapota: közepes állapotú
  • Komfort: összkomfortos
  • Fűtés: gáz (konvektor)
  • Lift: nincs
  • Akadálymentesített: nincs
  • Napelem van?: nincs
  • Erkély: nincs
  • Légkondicionáló: van
  • Kilátás: utcai
  • A lakás falazata: Tégla
  • Közös költség mértéke: 8500

Leírás

Eladó 1+2 szobás lakás Nyíregyháza frekventált részén, belváros közelében. Otthon Start Hitelprogram igényelhető rá! Ha olyan otthont keresel, ami azonnal költözhető, világos, jó elosztású, és ráadásul remek ár-érték arányt képvisel, akkor ez a lakás Neked szól. Az ingatlan egy 51 nm-es, 1+2 szobás lakás, amely egy szigetelt, tégla építésű társasház legfelső emeletén található. A ház lakóközössége kimondottan barátságos és összetartó, ami nagyban hozzájárul a kellemes, nyugodt mindennapokhoz. Főbb jellemzők: kisebb festést követően azonnal költözhető állapot, gázfűtés, a meleg vizet bojler biztosítja, műanyag nyílászárók, redőny, klíma, gardrób, saját, 3 nm-es pince tároló, nyugati tájolás, világos belső terek. A lakás igény szerint kisebb korszerűsítést igényelhet, de elhelyezkedése, adottságai és a társasház hangulata miatt kiváló lehetőség mind saját otthonnak, mind befektetésnek. A környéken minden megtalálható: üzletek, szolgáltatások, közlekedés - minden egy karnyújtásnyira. Ez a lakás azoknak szól, akik értékelik a jó környezetet, a praktikus megoldásokat és a kedvező fenntartási költségeket. OTP Banki hátterünknek köszönhetően finanszírozási igényekben (pl. Otthon Start Hitelprogram , Babaváró, Falusi CSOK, CSOK Plusz, Lakáshitel, Személyi kölcsön stb.), illetve biztosítások tekintetében is díjmentesen, soron kívüli ügyintézéssel segítem ügyfeleim! Referenciaszám: M312169

E-mail küldése a hirdetőnek

Hibás hirdetés bejelentése

Sikeres elküldtük a hiba bejelentést.

Hirdető adatai

Lipcseiné Kozák Judit
E-mail cím: judit.lipcseine.kozak@otpip.hu
Telefonszám: +36209406654
OTPip
Hirdetés feladója: Ingatlaniroda
Ingatlaniroda: OTPip
E-mail cím: nyiregyhaza.hunyadi@otpip.hu
Telefonszám: +36303397954

Képek



Térkép


Ajánlott ingatlanok

Tégla lakás

Eladó Lakás, Nyíregyháza

Keresés azonosító alapján: HI-2470546
  • Nyíregyháza
  • Alapterület: 52 m²
  • Ár: 57 000 000 Ft (149 606 €)
  • Feltöltés dátuma: 2025.09.04.
  • klímás
Tégla lakás

Eladó Lakás, Nyíregyháza

Keresés azonosító alapján: HI-2459796
  • Nyíregyháza
  • Alapterület: 67 m²
  • Ár: 45 500 000 Ft (119 423 €)
  • Feltöltés dátuma: 2025.08.09.
  •  
Tégla lakás

Eladó Lakás, Nyíregyháza

Keresés azonosító alapján: HI-2459799
  • Nyíregyháza
  • Alapterület: 41 m²
  • Ár: 42 800 000 Ft (112 336 €)
  • Feltöltés dátuma: 2025.08.09.
  •  
Tégla lakás

Eladó Lakás, Nyíregyháza

Keresés azonosító alapján: HI-2486579
  • Nyíregyháza
  • Alapterület: 61 m²
  • Ár: 52 000 000 Ft (136 483 €)
  • Feltöltés dátuma: 2025.10.06.
  •  
Facebook
Blogger
Twitter
Tweets by hasznaltingatla
Flickr