Eladó Lakás, Nyíregyháza

Ingatlan azonosító: HI-2558682

Szabolcs-Szatmár-Bereg megye - Nyíregyháza, Tégla lakás


73 000 000 Ft (201 102 €)

  • Hirdetés feladója: Ingatlaniroda
  • Pontos cím: Nyíregyháza
  • Típus: Eladó
  • Belső irodai azonosító: M323921-5193908
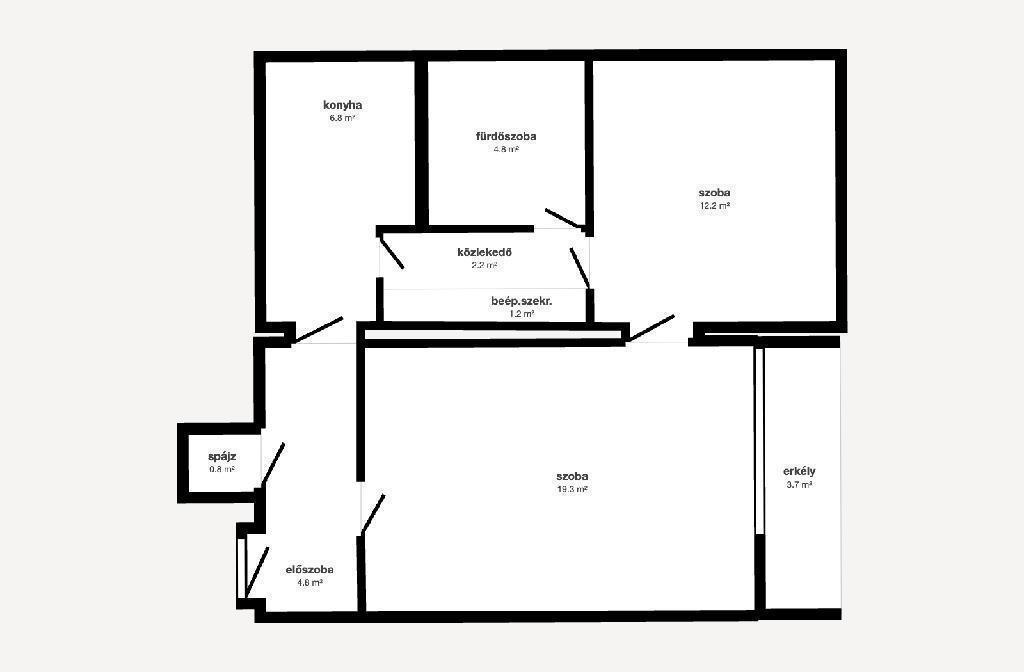
  • Alapterület: 78 m²
  • Építés éve: 2008
  • Egész szobák száma (12 m² felett): 3 db
  • Félszobák száma (6-12 m² között): 0 db
  • Ingatlan állapota: felújított
  • Komfort: összkomfortos
  • Fűtés: egyéb
  • Lift: nincs
  • Akadálymentesített: nincs
  • Napelem van?: nincs
  • Erkély: van
  • Légkondicionáló: van
  • Kilátás: udvari
  • A lakás falazata: Tégla
  • Közös költség mértéke: 11000

Leírás

Legyen Ön az első lakója! Új állapotú, 78 m2 alapterületű + 12 m2 erkéllyel rendelkező álomotthon a Virág utcában Nyíregyháza egyik legkeresettebb részén, a Virág utcában kínálunk eladásra egy kivételes adottságokkal rendelkező ingatlant. Ez a lakás igazi ritkaság a piacon: bár egy rendezett, 4 emeletes társasház 1. emeletén található, még soha senki nem lakott benne, sem tulajdonosok, sem bérlők nem használták. Aki megvásárolja, egy teljesen szűz, tiszta lapként kezelhető otthonba költözhet be! A lakás kialakítása és kényelme: A 78 m2-es alapterület minden négyzetmétere az élhetőséget szolgálja. A tágas, világos amerikai konyhás nappali az utcafrontra néz, így élettel teli és napfényes. Ezzel szemben a 3 külön nyíló hálószoba a belső, csendes, közös használatú kertre néz, így a nyugodt pihenés garantált. Két erkély (12m2): Az ingatlan két erkéllyel is rendelkezik, így a reggeli kávézás és az esti kikapcsolódás is megoldott a szabad levegőn. Ideális elosztás: 3 hálószoba + nappali, ami tökéletes választás nagycsaládosoknak vagy azoknak, akik otthoni irodát is szeretnének kialakítani. Verhetetlen lokáció! Minden 2 percen belül: Felejtse el az állandó autózást! A lakás elhelyezkedése miatt a mindennapi ügyintézés gyalogosan is gyerekjáték: Családoknak: Az utca végén karnyújtásnyira található bölcsőde, óvoda és iskola is. Kényelem: Élelmiszerbolt, gyógyszertárak és posta 2 perces sétával elérhetőek. Városközpont: A belváros közelsége miatt a kulturális események és éttermek is gyorsan elérhetőek, mégis megmarad a lakóövezeti nyugalom. Miért ezt válassza? Ez az ingatlan azoknak szól, akik nem akarnak kompromisszumot kötni a használt lakások rejtett hibái és a modern életvitel között. Itt Ön veheti használatba először a konyhát, a fürdőt és minden helyiséget. A lakáshoz külön megvásárolható egy belső udvaron lévő garázs, ami az ingatlan alatt helyezkedik el, vagy akár hosszú távon bérelhető is! További kérdéseire készséggel válaszolok akár hétvégén is! Kedvezményes kamatozású lakásvásárlási és felújítási hitelek valamint CSOK és Babaváró ügyintézés az OTP hátterével irodánkban.

E-mail küldése a hirdetőnek

Hibás hirdetés bejelentése

Sikeres elküldtük a hiba bejelentést.

Hirdető adatai

Erdei Milán
E-mail cím: milan.erdei@otpip.hu
Telefonszám: +36305198340
OTPip
Hirdetés feladója: Ingatlaniroda
Ingatlaniroda: OTPip
E-mail cím: nyiregyhaza.bocskai@otpip.hu
Telefonszám: +36706060062

Képek



Térkép


Ajánlott ingatlanok

Tégla lakás

Eladó Lakás, Nyíregyháza

Keresés azonosító alapján: HI-2568100
  • Nyíregyháza
  • Alapterület: 105 m²
  • Ár: 67 900 000 Ft (187 052 €)
  • Feltöltés dátuma: 2026.05.06.
  • klímás
Tégla lakás

Eladó Lakás, Nyíregyháza

Keresés azonosító alapján: HI-2568097
  • Nyíregyháza
  • Alapterület: 115 m²
  • Ár: 59 900 000 Ft (165 014 €)
  • Feltöltés dátuma: 2026.05.06.
  •  
Tégla lakás

Eladó Lakás, Nyíregyháza

Keresés azonosító alapján: HI-2568096
  • Nyíregyháza
  • Alapterület: 45 m²
  • Ár: 45 990 000 Ft (126 694 €)
  • Feltöltés dátuma: 2026.05.06.
  •  
Tégla lakás

Eladó Lakás, Tiszavasvári

Keresés azonosító alapján: HI-2562999
  • Tiszavasvári
  • Alapterület: 115 m²
  • Ár: 31 500 000 Ft (86 777 €)
  • Feltöltés dátuma: 2026.04.18.
  •  
Facebook
Blogger
Twitter
Tweets by hasznaltingatla
Flickr