Eladó Lakás, Nyíregyháza

Ingatlan azonosító: HI-2500124

Szabolcs-Szatmár-Bereg megye - Nyíregyháza, Tégla lakás


54 900 000 Ft (143 342 €)

  • Hirdetés feladója: Ingatlaniroda
  • Pontos cím: Nyíregyháza
  • Típus: Eladó
  • Belső irodai azonosító: M315572-5081409
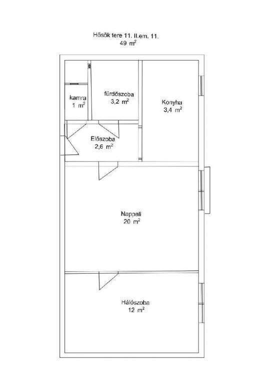
  • Alapterület: 64 m²
  • Építés éve: 1962
  • Egész szobák száma (12 m² felett): 2 db
  • Félszobák száma (6-12 m² között): 0 db
  • Emelet: 2. emelet
  • Ingatlan állapota: jó állapotú
  • Komfort: összkomfortos
  • Fűtés: gáz (konvektor)
  • Lift: nincs
  • Akadálymentesített: nincs
  • Napelem van?: nincs
  • Erkély: nincs
  • Légkondicionáló: nincs
  • Kilátás: udvari
  • A lakás falazata: Tégla
  • Közös költség mértéke: 13000

Leírás

Belvárosi, felújított 2 szoba+nappalis lakás garázzsal eladó Nyíregyházán! Nyíregyháza belvárosában, mindenhez pár perc sétára kínálunk eladásra egy 64 m2-es, 2 szoba + nappalis, világos és tágas lakást egy két emeletes, szigetelt, téglaépítésű társasház második emeletén. A lakás igényesen felújított, modern bejárati ajtóval, új elektromos vezetékekkel, műanyag nyílászárókkal és új gázkonvektoros fűtéssel rendelkezik. Két kényelmes loggia teszi otthonossá és levegőssé a tereket. A lakáshoz tartozik egy nagy, saját pince, valamint a társasház udvarán található zárható garázs, melynek megvásárlása kötelező, ára 5 millió forint. Emellett további két pince kedvező áron bérelhető, így akár extra tárolási vagy hobbi célokra is ideális lehet. A társasház rendezett, karbantartott, megtakarítási alappal rendelkezik, így a közös területek folyamatosan megújulnak és értékállóak. Az elhelyezkedés kivételes -a belváros szívében, mégis csendes környezetben található, minden szolgáltatás 3 perc sétára elérhető: üzletek, piac, iskola, buszmegálló, gyógyszertár és parkok. Ez a lakás tökéletes választás lehet fiatal pároknak, családoknak, de akár befektetésre is kiváló, hiszen az elhelyezkedése és állapota miatt azonnal kiadható. Irodánkban sorban állás nélkül intézheti a Babaváró hitelt, CSOK-ot, Start Otthon hitelt és minden egyéb finanszírozási lehetőségetaz OTP hátterével. Teljes körű, díjmentes tájékoztatást és ügyintézést biztosítunk ügyfeleinknek.

E-mail küldése a hirdetőnek

Hibás hirdetés bejelentése

Sikeres elküldtük a hiba bejelentést.

Hirdető adatai

Konc Richárd
E-mail cím: richard.konc@otpip.hu
Telefonszám: +36-70-597-3523
OTPip
Hirdetés feladója: Ingatlaniroda
Ingatlaniroda: OTPip
E-mail cím: nyiregyhaza.hunyadi@otpip.hu
Telefonszám: +36303397954

Képek



Térkép


Ajánlott ingatlanok

Tégla lakás

Eladó Lakás, Nyíregyháza

Keresés azonosító alapján: HI-2500140
  • Nyíregyháza
  • Alapterület: 74 m²
  • Ár: 64 900 000 Ft (169 452 €)
  • Feltöltés dátuma: 2025.11.10.
  •  
Tégla lakás

Eladó Lakás, Nyíregyháza

Keresés azonosító alapján: HI-2481912
  • Nyíregyháza
  • Alapterület: 61 m²
  • Ár: 52 000 000 Ft (135 770 €)
  • Feltöltés dátuma: 2025.09.30.
  •  
Tégla lakás

Eladó Lakás, Nyíregyháza

Keresés azonosító alapján: HI-2457878
  • Nyíregyháza
  • Alapterület: 68 m²
  • Ár: 59 990 000 Ft (156 632 €)
  • Feltöltés dátuma: 2025.08.05.
  •  
Tégla lakás

Eladó Lakás, Nyíregyháza

Keresés azonosító alapján: HI-2505399
  • Nyíregyháza
  • Alapterület: 37 m²
  • Ár: 36 500 000 Ft (95 300 €)
  • Feltöltés dátuma: 2025.11.23.
  •  
Facebook
Blogger
Twitter
Tweets by hasznaltingatla
Flickr