Eladó Lakás, Pápa

Ingatlan azonosító: HI-2480873

Veszprém megye - Pápa, Tégla lakás


26 950 000 Ft (70 735 €)

  • Hirdetés feladója: Ingatlaniroda
  • Pontos cím: Pápa
  • Típus: Eladó
  • Belső irodai azonosító: M307597-5018152
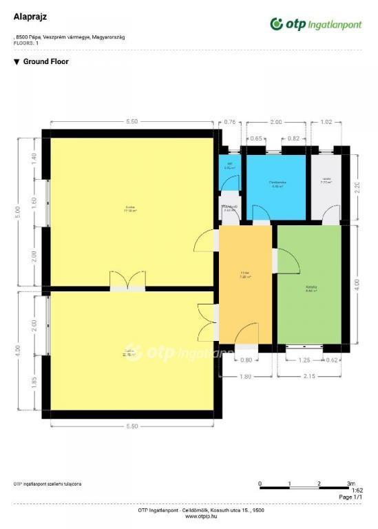
  • Alapterület: 75 m²
  • Építés éve: 1940
  • Egész szobák száma (12 m² felett): 2 db
  • Félszobák száma (6-12 m² között): 0 db
  • Emelet: földszint
  • Ingatlan állapota: jó állapotú
  • Komfort: összkomfortos
  • Fűtés: gáz (cirko)
  • Lift: nincs
  • Akadálymentesített: nincs
  • Napelem van?: nincs
  • Erkély: nincs
  • Légkondicionáló: nincs
  • Kilátás: udvari
  • Tájolás: dél-nyugat
  • A lakás falazata: Tégla
  • Közös költség mértéke: 1

Leírás

Veszprém vármegyében, Pápa belvárosának szívében kínálok eladásra egy tégla falazatú, 75 m2 alapterületű, 2 szobás, felújított, földszinti lakást. Az ingatlan 3 lakásos gondozott, rendezett, társasház, lépcsőmentes földszintjén helyezkedik. A jó elrendezésű, világos, ingatlan elosztása szempontjából 2 teljes értékű szobából, egy konyhából és étkezőből, kamrából, előszobából, egy fürdőszobából, valamint egy Wc-ből áll, ahol mindent megvan kényelmes lakhatáshoz. A szobák parketta burkolatúak, a többi helyiség kerámia burkolatu. Az előszoba nagyméretű, új beépitett szekrényekkel, amelyek a praktikus tárolást biztositják. A lakás melegéről gázkazán gondoskodik, radiátoros hőleadással. A melegvíz ellátást a gázkazán szolgáltatja. Közös költség nincs. A lakás a közelmúltban többször felújításon esett át, amely során hideg-meleg burkolatok cseréje megtörtént, új konyha készült beépitett konyhaszekrénnyel. A lakást tulajdonosa folyamatosan gondozta, csinositotta, lehetőség van az ingatlan további bővitésére, mivel a padlása beépíthető. Az ingatlan egy csendes és békés, kulturált, társasházban található, ahol jelenleg,- az eladásra kínált lakáson kívül -, csupán 2 lakó lakik, a lakóközösség barátságos és összetartó. A lakás minden mérője egyedi elszámolású. Ajánlom mindenkinek, aki a belváros központjához közel, mégis csendes környezetben szeretne élni, egy kellemes és praktikus lakásban, amely közelében található és könnyen elérhető bármi a városközpontban: az összes városi kényelmi szolgáltatás és az üzletek. Amennyiben az ingatlan felkeltette érdeklődését, keressen bizalommal. OTP Ingatlanpont teljes körű ügyintézéssel áll az eladók és a vevők rendelkezésére. A kínálatunkból választott ingatlan finanszírozásához kedvezményes hitelkonstrukciót kínálunk. Az adásvételi szerződés megkötéséhez igény szerint megbízható ügyvédi közreműködést biztosítunk, és segítséget nyújtunk az adásvételhez kapcsolódó ügyek intézéséhez is. Az ingatlanról készült alaprajz, illetve fényképfelvételek az Otp ingatlanpont szellemi tulajdonát képezik. Amennyiben felkeltette érdeklődését az általam kínált ingatlan, NE SZALASSZA EL EZT A FIGYELEMRE MÉLTÓ LEHETŐSÉGET, HÍVJON MA! 26950000 Ft Amennyiben az ingatlan felkeltette érdeklődését, esetleg bármivel kapcsolatban kérdése lenne, keressen Bizalommal! Verrasztó Edina: +36703156380 Referencia szám: M307597-HI

E-mail küldése a hirdetőnek

Hibás hirdetés bejelentése

Sikeres elküldtük a hiba bejelentést.

Hirdető adatai

Verrasztó Edina Irén
E-mail cím: edina.iren.verraszto@otpip.hu
Telefonszám: +36703156380
OTPip
Hirdetés feladója: Ingatlaniroda
Ingatlaniroda: OTPip
E-mail cím: celldomolk@otpip.hu
Telefonszám: +36707081049

Képek



Térkép


Ajánlott ingatlanok

Tégla lakás

Eladó Lakás, Nyirád

Keresés azonosító alapján: HI-2505562
  • Nyirád
  • Alapterület: 44 m²
  • Ár: 26 990 000 Ft (70 840 €)
  • Feltöltés dátuma: 2025.11.25.
  • klímás
Tégla lakás

Eladó Lakás, Devecser

Keresés azonosító alapján: HI-2473310
  • Devecser
  • Alapterület: 105 m²
  • Ár: 24 900 000 Ft (65 354 €)
  • Feltöltés dátuma: 2025.09.12.
  •  
Tégla lakás

Eladó Lakás, Pápa

Keresés azonosító alapján: HI-2506083
  • Pápa
  • Alapterület: 60 m²
  • Ár: 52 990 000 Ft (139 081 €)
  • Feltöltés dátuma: 2025.11.26.
  •  
Tégla lakás

Eladó Lakás, Pápa

Keresés azonosító alapján: HI-2497886
  • Pápa
  • Alapterület: 58 m²
  • Ár: 37 900 000 Ft (99 475 €)
  • Feltöltés dátuma: 2025.11.04.
  • klímás
Facebook
Blogger
Twitter
Tweets by hasznaltingatla
Flickr