Eladó Lakás, Pécs

Ingatlan azonosító: HI-2527331

Baranya megye - Pécs, Tégla lakás


57 000 000 Ft (149 606 €)

  • Hirdetés feladója: Ingatlaniroda
  • Pontos cím: Pécs
  • Típus: Eladó
  • Belső irodai azonosító: M321363-5134168
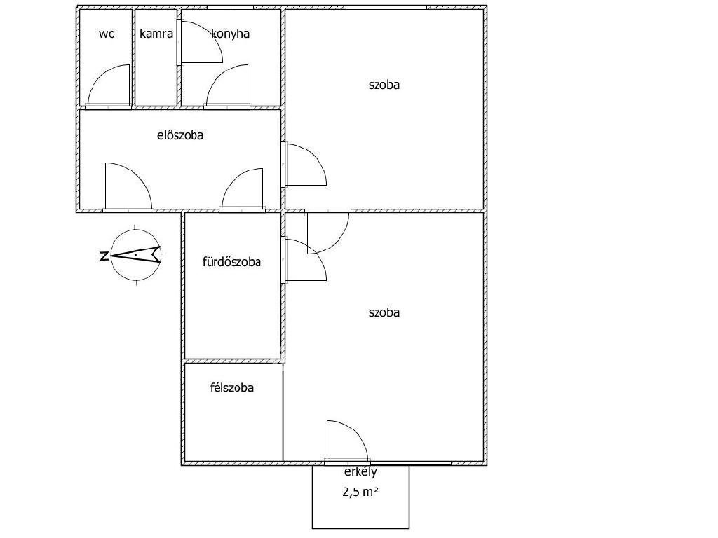
  • Alapterület: 59 m²
  • Építés éve: 1960
  • Egész szobák száma (12 m² felett): 2 db
  • Félszobák száma (6-12 m² között): 1 db
  • Emelet: 3. emelet
  • Ingatlan állapota: jó állapotú
  • Komfort: összkomfortos
  • Fűtés: gáz (konvektor)
  • Lift: nincs
  • Akadálymentesített: nincs
  • Napelem van?: nincs
  • Erkély: nincs
  • Légkondicionáló: van
  • Kilátás: utcai
  • A lakás falazata: Tégla
  • Közös költség mértéke: 12000

Leírás

Belváros közeli, 3/3 emeleti (lift nincs) tégla, gáz fűtéses (konvektor), hűtő-fűtő klímával ellátott, gépesített tágas, világos lakás eladó. Tiszta, rendezett lépcsőház, jó lakóközösség. A lakástól kb. 10 perc gyalogtávon belül érhető el a vasútállomás, buszpályaudvar, Árkád és Széchenyi tér. A lakás a Zsolnay-körforgalom alatt található, így számos buszjárat a közelben elérhető. A lakás jó állapotú, a gépek folyamatosan karban tartottak. A vezetékek korszerűsítése 10 éven belül történt. Az ablakokat műanyagra cserélték redőnnyel ellátva. A lakáshoz saját alagsori tároló is tartozik. A lakás bútorozottan, gépesítve eladó. Jó adottságainak köszönhetően, családosoknak és egyetemistáknak is jó választás, illetve jó befektetési lehetőséget is kínál. További információkért hívjon, nézze meg, tegyen egy ajánlatot hét végén is! Az OTP INGATLANPONT teljes körű ügyintézéssel áll az eladók és a vevők rendelkezésére! A megvásárolni kívánt ingatlan finanszírozásához a CSOK-pluszt, a Babaváró hitelt, a START hitelt (3 %), a kedvezményes hitelkonstrukciókat helyben ingyenesen intézzük. Az adásvételi szerződés megkötéséhez igény szerint megbízható ügyvédi közreműködést, az energetikai tanúsítvány elkészítéséhez energetikust biztosítunk, segítséget nyújtunk az adásvételhez kapcsolódó ügyintézésben az ajánlattételtől a birtokba lépésig. Várom hívását a hét minden napján, megtekintést rugalmasan egyeztetek. Referenciaszám: M321363 Referencia szám: M321363

E-mail küldése a hirdetőnek

Hibás hirdetés bejelentése

Sikeres elküldtük a hiba bejelentést.

Hirdető adatai

Berkes Ilona
E-mail cím: berkes.ilona@otpip.hu
Telefonszám: +36703934918
OTPip
Hirdetés feladója: Ingatlaniroda
Ingatlaniroda: OTPip
E-mail cím: pecs@otpip.hu
Telefonszám: +36-70-708-2428

Képek



Térkép


Ajánlott ingatlanok

Tégla lakás

Eladó Lakás, Pécs

Keresés azonosító alapján: HI-2494145
  • Pécs
  • Alapterület: 84 m²
  • Ár: 91 000 000 Ft (238 845 €)
  • Feltöltés dátuma: 2025.10.28.
  •  
Tégla lakás

Eladó Lakás, Pécs

Keresés azonosító alapján: HI-2488809
  • Pécs
  • Alapterület: 66 m²
  • Ár: 65 000 000 Ft (170 604 €)
  • Feltöltés dátuma: 2025.10.11.
  •  
Tégla lakás

Eladó Lakás, Komló

Keresés azonosító alapján: HI-2505800
  • Komló
  • Alapterület: 52 m²
  • Ár: 35 400 000 Ft (92 913 €)
  • Feltöltés dátuma: 2025.11.25.
  •  
Tégla lakás

Eladó Lakás, Szentlőrinc

Keresés azonosító alapján: HI-2517273
  • Szentlőrinc
  • Alapterület: 58 m²
  • Ár: 45 000 000 Ft (118 110 €)
  • Feltöltés dátuma: 2026.01.05.
  •  
Facebook
Blogger
Twitter
Tweets by hasznaltingatla
Flickr