Eladó lakás, Pécs

Ingatlan azonosító: HI-2554861

Baranya megye - Pécs, Tégla lakás


35 500 000 Ft (96 995 €)

  • Hirdetés feladója: Ingatlaniroda
  • Pontos cím: Pécs
  • Típus: Eladó
  • Belső irodai azonosító: LK063000-5185534
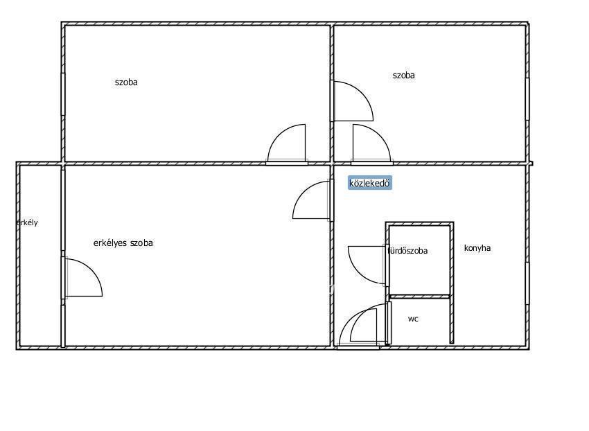
  • Alapterület: 33 m²
  • Építés éve: 2004
  • Egész szobák száma (12 m² felett): 1 db
  • Félszobák száma (6-12 m² között): 0 db
  • Fürdőszobák száma: 1 db
  • Emelet: 3. emelet
  • Ingatlan állapota: felújított
  • Fűtés: egyéb
  • Lift: nincs
  • Akadálymentesített: nincs
  • Napelem van?: nincs
  • Erkély: nincs
  • Légkondicionáló: nincs
  • Tájolás: dél
  • A lakás falazata: Tégla

Leírás

Költözz be azonnal álmaid pécsi lakásába! Pécs belvárosának közvetlen közelében, a közkedvelt Liget lakópark nyugodt, modern, családias környezetében eladó egy azonnal birtokba vehető, újszerű társasházi téglalakás!A 2006-ban épült, 28 m²-es ingatlan amerikai konyhás, tágas nappalival rendelkezik. Különleges adottságainak köszönhetően egész nap árad be a napfény, világos, barátságos hangulatú, ráadásul alacsony rezsivel fenntartható. A nyári melegben a klíma gondoskodik a komfortodról.A fürdőszoba és a WC egy helyiségben található, praktikusan kialakítva.A fűtés házközponti, egyedi méréssel pénztárcabarát és kiszámítható megoldás. A társasház belső parkolóval rendelkezik, amely igény esetén opcionálisan megvásárolható. A környék infrastruktúrája kiváló: pékség, buszmegállók, iskolák, éttermek és számos szolgáltatás pár lépésre. Elhelyezkedése miatt tökéletes választás lehet egyetemistáknak is, hiszen közel van a Pécsi Tudományegyetem Állam- és Jogtudományi Kar és a Pécsi Tudományegyetem Művészeti Kar. De ideális első otthon fiatal pároknak, vagy akár egyedülállóknak is, akik csendes, mégis központi helyen szeretnének élni. Befektetésnek? Lakhatásra? Mindkettőre remek döntés! Hitelügyintézésben is van lehetőség segítségre.Ne maradj le róla ez a lakás gyorsan gazdára talál! Szeretnéd megnézni? Segítek időpontot egyeztetni. Irányár 35500000 Ft További ingatlanokat keressen egyszerűen, az alábbi linken: https://kiss-erzsebet.dh.hu/ Referencia szám: LK063000

E-mail küldése a hirdetőnek

Hibás hirdetés bejelentése

Sikeres elküldtük a hiba bejelentést.

Hirdető adatai

Kiss Erzsébet
E-mail cím: erzsebet.kiss1@dh.hu
Telefonszám: +36203234450
Duna House
Hirdetés feladója: Ingatlaniroda
Ingatlaniroda: Duna House
E-mail cím: pecs.kertvaros@dh.hu
Telefonszám: +3672876735

Képek



Térkép


Ajánlott ingatlanok

Tégla lakás

Eladó lakás, Pécs

Keresés azonosító alapján: HI-2547992
  • Pécs
  • Alapterület: 73 m²
  • Ár: 85 900 000 Ft (234 699 €)
  • Feltöltés dátuma: 2026.03.08.
  •  
Tégla lakás

Eladó lakás, Pécs

Keresés azonosító alapján: HI-2546049
  • Pécs
  • Alapterület: 64 m²
  • Ár: 46 900 000 Ft (128 142 €)
  • Feltöltés dátuma: 2026.03.04.
  •  
Tégla lakás

Eladó lakás, Pécs

Keresés azonosító alapján: HI-2548294
  • Pécs
  • Alapterület: 70 m²
  • Ár: 82 900 000 Ft (226 503 €)
  • Feltöltés dátuma: 2026.03.10.
  •  
Tégla lakás

Eladó lakás, Pécs

Keresés azonosító alapján: HI-2547152
  • Pécs
  • Alapterület: 129 m²
  • Ár: 94 000 000 Ft (256 831 €)
  • Feltöltés dátuma: 2026.03.06.
  •  
Facebook
Blogger
Twitter
Tweets by hasznaltingatla
Flickr