Eladó Lakás saját kézműves pékséggel és üzlettel!

Ingatlan azonosító: HI-2486177

Bács-Kiskun megye - Kiskunfélegyháza, Családi ház


54 990 000 Ft (140 639 €)

  • Hirdetés feladója: Ingatlaniroda
  • Pontos cím: Kiskunfélegyháza
  • Típus: Eladó
  • Belső irodai azonosító: 3618378-4719963
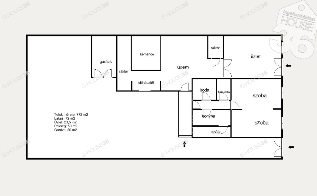
  • Alapterület: 72 m²
  • Telekterület: 772 m² ( 215 négyszögöl )
  • Egész szobák száma (12 m² felett): 2 db
  • Félszobák száma (6-12 m² között): 0 db
  • Fürdőszobák száma: 1 db
  • Ingatlan állapota: jó állapotú
  • Komfort: összkomfortos
  • Fűtés: gáz (cirko)
  • Pince: nincs
  • Akadálymentesített: nincs
  • Napelem van?: nincs
  • Légkondicionáló: nincs

Leírás

Álmodja meg saját városi kerthelyiségét, ahol a gőzölgő kávé, a kézműves pékség süteményei és a kenyér illata érezhető a nyugodtan elfogyasztott reggeli mellett! Eladóvá vált Kiskunfélegyházán egy nagyszerű adottságú és nagyon jól megközelíthető épületegyüttes, ahol megtalálható egy lakás, garázs, pékség a hozzátartozó helységekkel és üzlettér is. Jó választás lehet reggelizőnek, lakás étteremnek, különleges kézműves pékségnek, amelynek csak a stílusát kell kitalálni! Jellemzői: - Telek mérete: 772 m2 - Lakás: 72 m2 (2 nagy szoba, folyosó, fürdőszoba, dolgozó szoba, konyha, kamra) - Üzlethelyiség: 23,5 m2 - Pékség: 50 m2 (2 raktár, előkészítő, sütőkemencés helység) - Garázs: 20 m2 Figyelem az adatlap megbízónktól kapott adatok alapján készült, pontosságáért felelősséget nem tudunk vállalni!Szolgáltatásaink Kereső ügyfeleink számára INGYENESEK!Amennyiben eladó-kiadó ingatlana van vagy finanszírozási megoldást keres , hívjon, megtaláljuk a legjobb lehetőséget Önnek! A HOUSE36 kínálatában található összes ingatlannal kapcsolatban tudok felvilágosítást nyújtani! Hívjon bizalommal! Az iroda legfrissebb, aktuális kínálatát a HOUSE36 saját weboldalán találja!

E-mail küldése a hirdetőnek

Hibás hirdetés bejelentése

Sikeres elküldtük a hiba bejelentést.

Hirdető adatai

Farkas László
E-mail cím: laszlo.farkas@h36.hu
Telefonszám: +36301612379
Hirdetés feladója: Ingatlaniroda

Képek



Térkép


Ajánlott ingatlanok

Családi ház
  • Kocsér
  • Alapterület: 147 m²
  • Telekterület: 32 877 m²
  • Ár: 125 000 000 Ft (319 693 €)
  • Feltöltés dátuma: 2025.10.04.
  •  
Családi ház

KISKŐRÖSÖN, 2 SZOBA+NAPPALIS CSALÁDI HÁZ ELADÓ!

Keresés azonosító alapján: HI-2486120
  • Kiskőrös
  • Alapterület: 75 m²
  • Telekterület: 268 m²
  • Ár: 27 900 000 Ft (71 355 €)
  • Feltöltés dátuma: 2025.10.04.
  •  
Családi ház

3 SZOBA+NAPPALIS, NÍVÓS CSALÁDI HÁZ EXTRÁKKAL ELADÓ!

Keresés azonosító alapján: HI-2486126
  • Rácalmás
  • Alapterület: 199 m²
  • Telekterület: 993 m²
  • Ár: 133 000 000 Ft (340 153 €)
  • Feltöltés dátuma: 2025.10.04.
  •  
Családi ház

CSENGŐDÖN, 1985-ben ÉPÜLT, 3 SZOBÁS HÁZ ELADÓ!

Keresés azonosító alapján: HI-2486144
  • Csengőd
  • Alapterület: 77 m²
  • Telekterület: 2 340 m²
  • Ár: 22 000 000 Ft (56 266 €)
  • Feltöltés dátuma: 2025.10.04.
  •  
Facebook
Blogger
Twitter
Tweets by hasznaltingatla
Flickr