Eladó Lakás, Sajószentpéter

Ingatlan azonosító: HI-2509262

Borsod-Abaúj-Zemplén megye - Sajószentpéter, Tégla lakás


20 900 000 Ft (55 000 €)

  • Hirdetés feladója: Ingatlaniroda
  • Pontos cím: Sajószentpéter
  • Típus: Eladó
  • Belső irodai azonosító: M317067-5098923
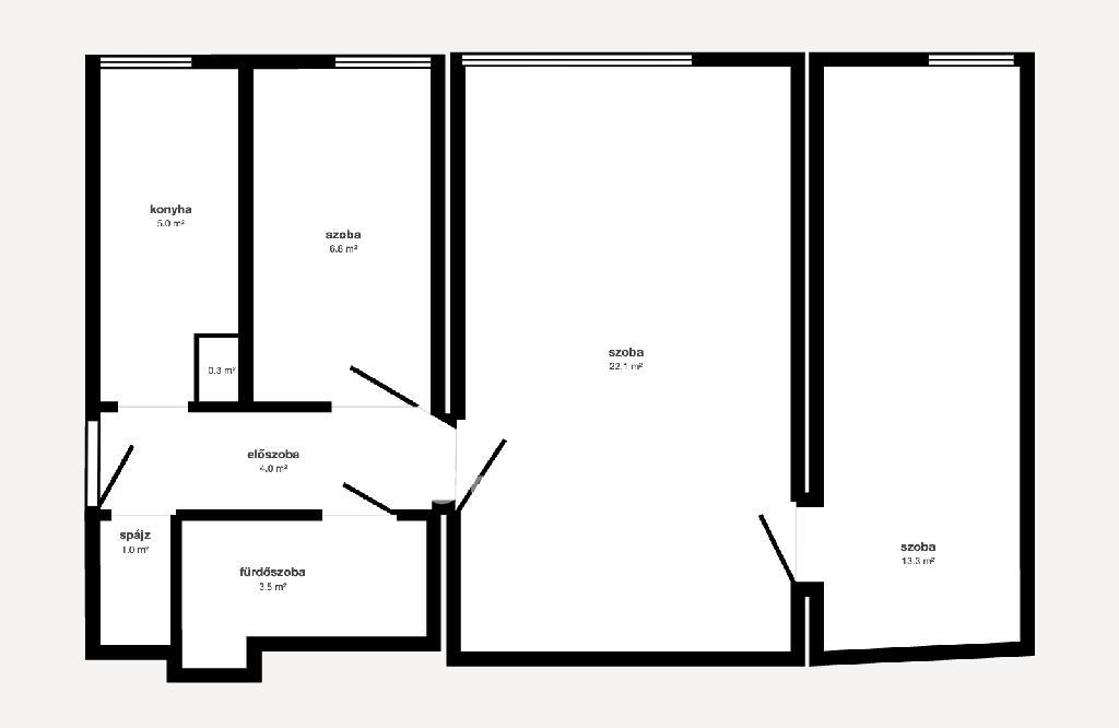
  • Alapterület: 54 m²
  • Építés éve: 1960
  • Egész szobák száma (12 m² felett): 2 db
  • Félszobák száma (6-12 m² között): 1 db
  • Fürdőszobák száma: 1 db
  • Emelet: földszint
  • Ingatlan állapota: közepes állapotú
  • Komfort: összkomfortos
  • Fűtés: gáz (konvektor)
  • Lift: nincs
  • Akadálymentesített: nincs
  • Napelem van?: nincs
  • Erkély: nincs
  • Légkondicionáló: nincs
  • Kilátás: udvari
  • Tájolás: nyugat
  • A lakás falazata: Tégla
  • Közös költség mértéke: 10000

Leírás

Sajószentpéter BÉV telepen FÖLDSZINTI, 2+1 félszobás, 54m2-es, részben felújított, kívülről SZIGETELT lakás eladó. A lakáshoz egy 4m2-es önálló, zárható tároló tartozik. Az otthon melegét 2 szobában gázkonvektorok, egy szobában cserépkályha biztosítja. A társasházban az EU előírásoknak megfelelő gázfelújítást 2025 februárjában elvégezték. A meleg vizet a fürdőszobában gáz átfolyós vízmelegítő, a konyhában villanybojler biztosítja. A bejárati ajtó biztonsági heveder zárral felszerelt. Két szobát új laminált padló, egy szobát hagyományos parketta, egyéb helyiségeket járólap burkol. Közösköltség: 10.000 Ft/hó, ebből 4.000 Ft a felújítási alapba fizetendő, mivel a társasházat a közeljövőben felújítják. OTTHON START PROGRAM igényelhető! Ingatlanirodánk ügyvédi háttérrel, babaváró hitel, CSOK Plusz, OTTHON START 3%-os hitel, valamint kamatkedvezményes hitel ügyintézésével támogatja ügyfelei ingatlanvásárlását! Érdeklődés esetén hivatkozzon az M317067 referencia számra! ÉRDEKLŐDNI: PUCSOK HAJNALKA 06204911723 Referencia szám: M317067

E-mail küldése a hirdetőnek

Hibás hirdetés bejelentése

Sikeres elküldtük a hiba bejelentést.

Hirdető adatai

Pucsok Hajnalka
E-mail cím: pucsok.hajnalka@otpip.hu
Telefonszám: +36-20-491-1723
OTPip
Hirdetés feladója: Ingatlaniroda
Ingatlaniroda: OTPip
E-mail cím: miskolc.szemere@otpip.hu
Telefonszám: +36-70-606-0062

Képek



Térkép


Ajánlott ingatlanok

Tégla lakás

Eladó Lakás, Kazincbarcika

Keresés azonosító alapján: HI-2484238
  • Kazincbarcika
  • Alapterület: 44 m²
  • Ár: 20 000 000 Ft (52 632 €)
  • Feltöltés dátuma: 2025.10.02.
  •  
Tégla lakás

Eladó Lakás, Miskolc

Keresés azonosító alapján: HI-2487811
  • Miskolc
  • Alapterület: 55 m²
  • Ár: 31 500 000 Ft (82 895 €)
  • Feltöltés dátuma: 2025.10.09.
  •  
Tégla lakás

Eladó Lakás, Miskolc

Keresés azonosító alapján: HI-2459772
  • Miskolc
  • Alapterület: 58 m²
  • Ár: 32 490 000 Ft (85 500 €)
  • Feltöltés dátuma: 2025.08.09.
  •  
Tégla lakás

Eladó Lakás, Berente

Keresés azonosító alapján: HI-2491369
  • Berente
  • Alapterület: 49 m²
  • Ár: 18 700 000 Ft (49 211 €)
  • Feltöltés dátuma: 2025.10.21.
  •  
Facebook
Blogger
Twitter
Tweets by hasznaltingatla
Flickr