Eladó Lakás, Siófok

Ingatlan azonosító: HI-2523377

Somogy megye - Siófok, Tégla lakás


55 500 000 Ft (141 582 €)

  • Hirdetés feladója: Ingatlaniroda
  • Pontos cím: Siófok
  • Típus: Eladó
  • Belső irodai azonosító: M320485-5124934
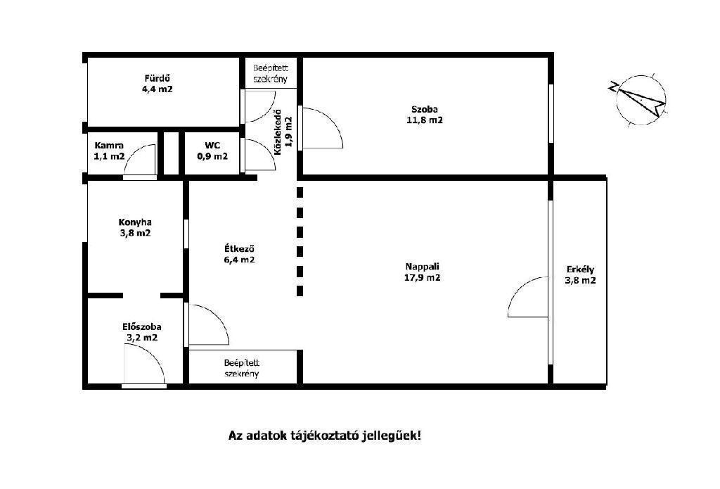
  • Alapterület: 57 m²
  • Építés éve: 1989
  • Egész szobák száma (12 m² felett): 2 db
  • Félszobák száma (6-12 m² között): 0 db
  • Emelet: 4. emelet
  • Ingatlan állapota: jó állapotú
  • Komfort: összkomfortos
  • Fűtés: gáz (konvektor)
  • Lift: nincs
  • Akadálymentesített: nincs
  • Napelem van?: nincs
  • Erkély: van
  • Légkondicionáló: nincs
  • Kilátás: udvari
  • A lakás falazata: Tégla
  • Közös költség mértéke: 8000

Leírás

Eladó lakás Siófok belvárosában, csendes környezetben. A Balaton déli partján, Siófok belvárosában, mégis nyugodt, csendes környezetben kínálunk eladásra egy 57 m2-es, kétszobás, erkélyes lakást. Az ingatlan egy társasház negyedik emeletén helyezkedik el, a Fő tértől mindössze 700 méterre. A lakás fűtését gázkonvektorok és hűtő-fűtő klímaberendezések biztosítják, a melegvizet pedig wifi-vezérlésű okosbojler szolgáltatja. A külső nyílászárók műanyag szerkezetűek, redőnnyel és szúnyoghálóval felszereltek. A biztonságról több ponton záródó bejárati ajtó gondoskodik. Az épület földszintjén közös kerékpártároló áll rendelkezésre, a parkolás a társasház előtti közterületen ingyenesen megoldott. A környék infrastruktúrája kiváló: a közelben óvoda, játszótér és vásárlási lehetőségek találhatók. A vasútállomás és az autóbusz-állomás 600 méterre, a Balaton-part és a Nagystrand pedig mindössze 800 méterre érhető el. Az ingatlan kiváló választás lehet állandó otthonnak, nyaralónak vagy befektetésnek egyaránt. Bővebb információért, megtekintés egyeztetéséhez keressen bizalommal telefonon! Referencia szám: M320485

E-mail küldése a hirdetőnek

Hibás hirdetés bejelentése

Sikeres elküldtük a hiba bejelentést.

Hirdető adatai

Zsitnyányi Ágnes
E-mail cím: agnes.zsitnyanyi@otpip.hu
Telefonszám: +36-70-316-3864
OTPip
Hirdetés feladója: Ingatlaniroda
Ingatlaniroda: OTPip
E-mail cím: siofok.sio@otpip.hu
Telefonszám: +36703163864

Képek



Térkép


Ajánlott ingatlanok

Tégla lakás

Eladó Lakás, Budapest 2. ker.

Keresés azonosító alapján: HI-2514750
  • Budapest II.
  • Alapterület: 83 m²
  • Ár: 180 000 000 Ft (459 184 €)
  • Feltöltés dátuma: 2025.12.24.
  •  
Tégla lakás

Eladó Lakás, Balatonfüred

Keresés azonosító alapján: HI-2417328
  • Balatonfüred
  • Alapterület: 67 m²
  • Ár: 99 000 000 Ft (252 551 €)
  • Feltöltés dátuma: 2025.05.13.
  •  
Tégla lakás

Eladó Lakás, Siófok

Keresés azonosító alapján: HI-2241549
  • Siófok
  • Alapterület: 77 m²
  • Ár: 85 000 000 Ft (216 837 €)
  • Feltöltés dátuma: 2024.06.06.
  •  
Tégla lakás

Eladó Lakás, Siófok

Keresés azonosító alapján: HI-2523378
  • Siófok
  • Alapterület: 51 m²
  • Ár: 121 000 000 Ft (308 673 €)
  • Feltöltés dátuma: 2026.01.16.
  •  
Facebook
Blogger
Twitter
Tweets by hasznaltingatla
Flickr