Eladó lakás, Siófok

Ingatlan azonosító: HI-2555218

Somogy megye - Siófok, Tégla lakás


149 900 000 Ft (412 948 €)

  • Hirdetés feladója: Ingatlaniroda
  • Pontos cím: Siófok
  • Típus: Eladó
  • Belső irodai azonosító: LK033158-5186587
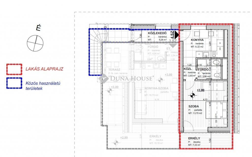
  • Alapterület: 77 m²
  • Építés éve: 2012
  • Egész szobák száma (12 m² felett): 3 db
  • Félszobák száma (6-12 m² között): 0 db
  • Fürdőszobák száma: 1 db
  • Ingatlan állapota: felújított
  • Fűtés: elektromos
  • Lift: nincs
  • Akadálymentesített: nincs
  • Napelem van?: nincs
  • Erkély: van
  • Légkondicionáló: nincs
  • Tájolás: kelet
  • A lakás falazata: Tégla

Leírás

Eladó privát kertkapcsolatos, balatoni panorámás lakóparki lakás Siófok Aranypartján! Siófok egyik legexkluzívabb részén, az Aranyparton, modern luxus lakóparkban kínálunk megvételre egy 77 m²-es, 2 szoba + nappalis, kivételes adottságokkal rendelkező első emeleti lakást. Az ingatlan ideális választás mind állandó otthonnak, mind prémium nyaralónak vagy befektetésnek. A lakás egyik legnagyobb értéke a privát, 77nm-es kertkapcsolat, a mellette lévő saját tároló, valamint a hozzá tartozó 12 m²-es, Balatonra panorámás terasz, amely tökéletes helyszíne a pihenésnek, reggeli kávézásoknak vagy a naplementék élvezetének. A közvetlen kertkapcsolat ritka lehetőség az Aranyparton, valódi üdülőövezeti életérzést kínál. A belső elrendezés praktikus és élhető: a világos nappali közvetlen kijárattal rendelkezik a teraszra és a kertbe, míg a két külön nyíló hálószoba nyugodt, intim életteret biztosít. A nagy üvegfelületeknek köszönhetően a lakás egész nap világos, a balatoni panoráma pedig a mindennapok természetes része. A lakópark szolgáltatásai és előnyei: - 24 órás portaszolgálat, ellenőrzött, biztonságos környezet - 3 medence a lakók kényelméért: - 2 külön gyermekmedence - 1 nagyméretű felnőtt medence - Igényesen kialakított, parkosított közösségi terek További előnyök: - Saját tároló, amely a többi lakással ellentétben közvetlenül a lakás és a kert mellett helyezkedik el, rendkívül praktikus megoldást nyújtva (kerékpár, strandfelszerelés, kerti bútorok tárolására) - Saját autóbeálló A tároló és az autóbeálló együttes értéke: 9.000.000 Ft A Balaton-part, strand, sétány, éttermek és kávézók néhány perc sétával elérhetők, miközben a lakópark nyugalma, exkluzivitása és szolgáltatásai maximális kényelmet biztosítanak. További kérdés esetén és a megtekintéssel kapcsolatban keressen bátran a hét bármely napján! 149900000 Ft Referencia szám: LK033158

E-mail küldése a hirdetőnek

Hibás hirdetés bejelentése

Sikeres elküldtük a hiba bejelentést.

Hirdető adatai

Reichert-Joó Gyöngyi
E-mail cím: joo.gyongyi@dh.hu
Telefonszám: +36302265827
Duna House
Hirdetés feladója: Ingatlaniroda
Ingatlaniroda: Duna House
E-mail cím: dunaharaszti@dh.hu
Telefonszám: +3624958661

Képek



Térkép


Ajánlott ingatlanok

Tégla lakás

Eladó lakás, Budapest 21. ker.

Keresés azonosító alapján: HI-2563272
  • Budapest XXI.
  • Alapterület: 44 m²
  • Ár: 31 500 000 Ft (86 777 €)
  • Feltöltés dátuma: 2026.04.21.
  •  
Tégla lakás

Eladó lakás, Kistarcsa

Keresés azonosító alapján: HI-2546850
  • Kistarcsa
  • Alapterület: 32 m²
  • Ár: 42 500 000 Ft (117 080 €)
  • Feltöltés dátuma: 2026.03.05.
  •  
Tégla lakás

Eladó lakás, Budapest 6. ker.

Keresés azonosító alapján: HI-2555756
  • Budapest VI.
  • Alapterület: 121 m²
  • Ár: 79 000 000 Ft (217 631 €)
  • Feltöltés dátuma: 2026.03.30.
  •  
Tégla lakás

Eladó lakás, Budapest 13. ker.

Keresés azonosító alapján: HI-2548593
  • Budapest XIII.
  • Alapterület: 58 m²
  • Ár: 85 900 000 Ft (236 639 €)
  • Feltöltés dátuma: 2026.03.11.
  •  
Facebook
Blogger
Twitter
Tweets by hasznaltingatla
Flickr