Eladó Lakás, Siófok

Ingatlan azonosító: HI-2506600

Somogy megye - Siófok, Új építésű lakás


149 000 000 Ft (386 010 €)

  • Hirdetés feladója: Ingatlaniroda
  • Pontos cím: Siófok
  • Típus: Eladó
  • Belső irodai azonosító: M317803-5090599
  • Alapterület: 139 m²
  • Építés éve: 2025
  • Egész szobák száma (12 m² felett): 4 db
  • Félszobák száma (6-12 m² között): 0 db
  • Emelet: földszint
  • Ingatlan állapota: új építésű
  • Komfort: összkomfortos
  • Fűtés: gáz (cirko)
  • Lift: nincs
  • Akadálymentesített: nincs
  • Napelem van?: nincs
  • Erkély: van
  • Légkondicionáló: nincs
  • Kilátás: panorámás
  • A lakás falazata: Tégla
  • Közös költség mértéke: 1

Leírás

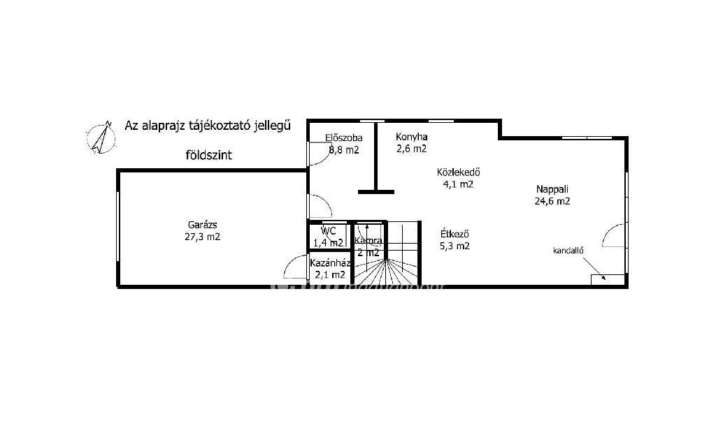
Siófok kedvelt Foki-hegy városrészében kínálom megvételre ezt az új építésű, igényes kivitelezésű ikerházfelet, amely a Balaton déli partjának egyik dinamikusan fejlődő környezetében helyezkedik el, 432 nm-es, saját használatú telekrészen, befejezett állapotban. Az ingatlan földszintjén tágas, amerikai konyhás nappali, emellett háztartási helyiség és éléskamra szolgálja a mindennapi kényelmet, míg az emeleti szinten három különálló hálószoba és három, magas műszaki tartalommal megvalósított fürdőszoba került kialakításra, továbbá lehetőség nyílik egy különálló, teljes értékű lakrész kialakítására is, akár kétgenerációs felhasználás céljából. Az épület megtervezése során a kivitelező nagy hangsúlyt fektetett a minőségi alapanyagokra, amelyet a duplasoros SILKA hangszigetelő falazat, a porotherm 30-as külső falazat 15 cm hőszigeteléssel, valamint a háromrétegű üvegezésű nyílászárók is bizonyítanak. Az otthon komfortját a gázkazános padlófűtés, a négy darab hőszivattyús hűtő-fűtő klíma, a nappaliban található exkluzív, fatüzelésű kandalló, továbbá az elektromos redőnyökkel felszerelt nyílászárók, illetve az elektromos működtetésű garázs- és kertkapuk biztosítják, miközben a földszinti garázs mellett külön második gépkocsi-beállási lehetőség is rendelkezésre áll. A három terasz - a Balatonra néző nyugati emeleti terasz, a hátsó emeleti pihenőrész, valamint a földszinti kertkapcsolatos terasz - kivételes lehetőséget nyújt a pihenésre és a balatoni hangulat mindennapos megélésére. Az ingatlan rendelkezik használatbavételi engedéllyel, tehermentes, azonnal birtokba vehető, így akár állandó lakhatásra, akár nyaralóként is ideális választás lehet, ráadásul az ikerház másik fele szintén elérhető azon érdeklődők számára, akik nagyobb családi vagy befektetési célban gondolkodnak. A közelben általános iskola és hipermarket is megtalálható, ami tovább növeli a lokáció értékét. Az OTP Bank stabil hátterének köszönhetően kollégáink díjmentes, személyre szabott hitel- és támogatási tanácsadással és ügyintézéssel állnak rendelkezésére. Megtekintés egyeztetéséhez várom megtisztelő hívását. M317803 149000000 Ft Referencia szám: M317803

E-mail küldése a hirdetőnek

Hibás hirdetés bejelentése

Sikeres elküldtük a hiba bejelentést.

Hirdető adatai

Vincze László György
E-mail cím: vincze.laszlo.gyorgy@otpip.hu
Telefonszám: +36209384141
OTPip
Hirdetés feladója: Ingatlaniroda
Ingatlaniroda: OTPip
E-mail cím: pecs@otpip.hu
Telefonszám: +36-70-708-2428

Képek



Térkép


Ajánlott ingatlanok

Új építésű lakás

Eladó Lakás, Keszthely

Keresés azonosító alapján: HI-2216477
  • Keszthely
  • Alapterület: 120 m²
  • Ár: 173 500 000 Ft (449 482 €)
  • Feltöltés dátuma: 2024.04.28.
  • klímás
Új építésű lakás

Eladó Lakás, Fonyód

Keresés azonosító alapján: HI-2465341
  • Fonyód
  • Alapterület: 74 m²
  • Ár: 85 000 000 Ft (220 207 €)
  • Feltöltés dátuma: 2025.08.24.
  • klímás
Új építésű lakás

Eladó Lakás, Keszthely

Keresés azonosító alapján: HI-2220495
  • Keszthely
  • Alapterület: 59 m²
  • Ár: 76 000 000 Ft (196 891 €)
  • Feltöltés dátuma: 2024.05.09.
  • klímás
Új építésű lakás

Eladó Lakás, Balatonboglár

Keresés azonosító alapján: HI-1920631
  • Balatonboglár
  • Alapterület: 82 m²
  • Ár: 113 100 000 Ft (293 005 €)
  • Feltöltés dátuma: 2022.07.16.
  •  
Facebook
Blogger
Twitter
Tweets by hasznaltingatla
Flickr