Eladó Lakás, Szeged

Ingatlan azonosító: HI-2377188

Csongrád megye - Szeged, Új építésű lakás


86 874 900 Ft (228 618 €)

  • Hirdetés feladója: Ingatlaniroda
  • Pontos cím: Szeged
  • Típus: Eladó
  • Belső irodai azonosító: M296443-4869449
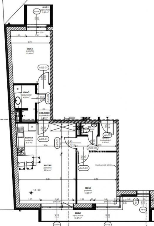
  • Alapterület: 70 m²
  • Építés éve: 2027
  • Egész szobák száma (12 m² felett): 3 db
  • Félszobák száma (6-12 m² között): 0 db
  • Ingatlan állapota: új építésű
  • Komfort: duplakomfortos
  • Fűtés: egyéb
  • Lift: nincs
  • Akadálymentesített: nincs
  • Energiatanúsítvány: A+
  • Napelem van?: nincs
  • Erkély: van
  • Légkondicionáló: nincs
  • Kilátás: udvari
  • A lakás falazata: Tégla
  • Közös költség mértéke: 10000

Leírás

Szeged, Móraváros, 70,6 m2-es, 3 szobás, 1. emeleti, újépítésű téglalakás, tulajdonos-kivitelezőtől, 20% kezdő befizetéssel eladó. A kulcsrakész átadás tervezett időpontja: 2027.06.30. A lakásban amerikai konyhás nappali, 2 szoba, fürdőszoba, wc és erkély található. A szobák laminált parketta-, a többi helyiség járólap burkolatot kapnak. Az otthon melegét hőszivattyús fűtés biztosítja. A lakáshoz opcionálisan, udvari beálló, vagy garázs is vásárolható. A TIK, egyetemi épületek, klinikák és tömegközlekedési megállók mindössze pár perc sétára találhatók, ezért rendkívül kedvező lehetőség lehet, befektetők és diákok számára is. Az ingatlan megvásárlásához kedvező hitel is igényelhető, melynek intézéséhez szakszerű segítség áll a leendő vásárló rendelkezésére.

E-mail küldése a hirdetőnek

Hibás hirdetés bejelentése

Sikeres elküldtük a hiba bejelentést.

Hirdető adatai

Kádár Zoltán László
E-mail cím: zoltan.laszlo.kadar@otpip.hu
Telefonszám: +36-30-628-2141
OTPip
Hirdetés feladója: Ingatlaniroda
Ingatlaniroda: OTPip
E-mail cím: szeged@otpip.hu
Telefonszám: +36703837010

Képek



Térkép


Ajánlott ingatlanok

Új építésű lakás

Eladó Lakás, Szeged

Keresés azonosító alapján: HI-2377190
  • Szeged
  • Alapterület: 72 m²
  • Ár: 89 500 950 Ft (235 529 €)
  • Feltöltés dátuma: 2025.02.21.
  •  
Új építésű lakás

Eladó Lakás, Szeged

Keresés azonosító alapján: HI-2475882
  • Szeged
  • Alapterület: 77 m²
  • Ár: 108 726 300 Ft (286 122 €)
  • Feltöltés dátuma: 2025.09.19.
  •  
Új építésű lakás

Eladó Lakás, Szeged

Keresés azonosító alapján: HI-2502085
  • Szeged
  • Alapterület: 60 m²
  • Ár: 75 068 000 Ft (197 547 €)
  • Feltöltés dátuma: 2025.11.15.
  •  
Új építésű lakás

Eladó Lakás, Szeged

Keresés azonosító alapján: HI-2502084
  • Szeged
  • Alapterület: 58 m²
  • Ár: 73 604 000 Ft (193 695 €)
  • Feltöltés dátuma: 2025.11.15.
  •  
Facebook
Blogger
Twitter
Tweets by hasznaltingatla
Flickr