Eladó Lakás, Szeged

Ingatlan azonosító: HI-2515231

Csongrád megye - Szeged, Panel lakás


49 900 000 Ft (138 997 €)

  • Hirdetés feladója: Ingatlaniroda
  • Pontos cím: Szeged
  • Típus: Eladó
  • Belső irodai azonosító: M319793-5113846
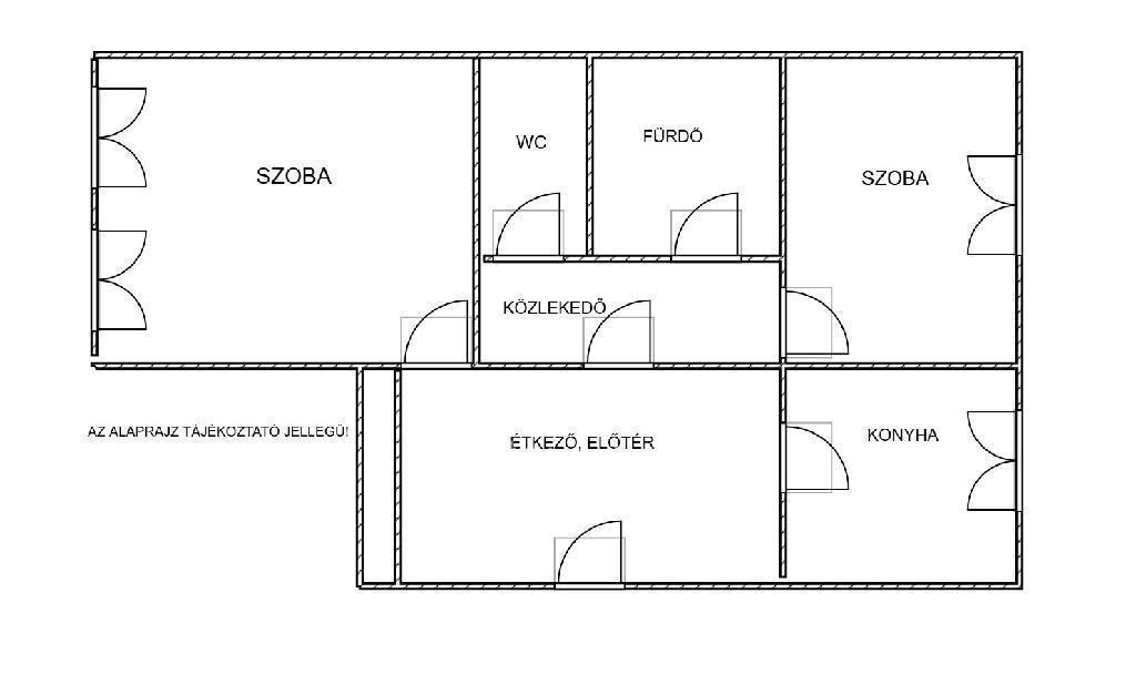
  • Alapterület: 53 m²
  • Építés éve: 1985
  • Egész szobák száma (12 m² felett): 2 db
  • Félszobák száma (6-12 m² között): 0 db
  • Ingatlan állapota: közepes állapotú
  • Komfort: összkomfortos
  • Fűtés: egyéb
  • Lift: nincs
  • Akadálymentesített: nincs
  • Napelem van?: nincs
  • Erkély: nincs
  • Légkondicionáló: nincs
  • Kilátás: utcai
  • A lakás falazata: Panel
  • Közös költség mértéke: 6100

Leírás

Szeged, Felsővárosi 1. emeleti, 2 szoba+étkezős lakás eladó! A lakás közel a belvároshoz, a Tisza-part környékén, cseréptetős házban található, kiváló közlekedéssel, két külön nyíló szobával és étkezővel! A ház panelprogramos, hőszigetelt, nyílászárók cseréje megtörtént. Belsőlegesen némi felújítás ráfér, de most is lakható állapotban van. Minden működik, használható. Az otthon melegét távfűtés biztosítja, hőmennyiségmérővel. Valamint van egy hűtő - fűtő klíma, mely megfelelően temperálja a hőmérsékletet. Rendkívül alacsony a rezsi és a közös költség is alacsony! - olcsón fenntartható lakás. Rendezett lakóközösség, ritkán cserélődnek a lakók, nyugalom van. A Belváros gyalog is pár perc alatt elérhető, a Tisza-part karnyújtásnyira van. Az ingatlan megvásárlásához kedvező hitel is igényelhető, melynek intézéséhez szakszerű segítség áll a leendő vásárló rendelkezésére. Megtekintés előre egyeztetett időpontban lehetséges. Az energetikai tanúsítvány készítése folyamatban van, amint rendelkezésre áll, úgy azzal a hirdetés frissítésre kerül. Referencia szám: M319793-HI

E-mail küldése a hirdetőnek

Hibás hirdetés bejelentése

Sikeres elküldtük a hiba bejelentést.

Hirdető adatai

Jószai Olívia
E-mail cím: olivia.joszai@otpip.hu
Telefonszám: +36-70-677-4669
OTPip
Hirdetés feladója: Ingatlaniroda
Ingatlaniroda: OTPip
E-mail cím: szentes@otpip.hu
Telefonszám: +36302233606

Képek



Térkép


Ajánlott ingatlanok

Panel lakás

Eladó Lakás, Orosháza

Keresés azonosító alapján: HI-2538313
  • Orosháza
  • Alapterület: 59 m²
  • Ár: 22 500 000 Ft (62 674 €)
  • Feltöltés dátuma: 2026.02.17.
  • klímás
Panel lakás

Eladó Lakás, Budapest 11. ker.

Keresés azonosító alapján: HI-2503606
  • Budapest XI.
  • Alapterület: 49 m²
  • Ár: 74 900 000 Ft (208 635 €)
  • Feltöltés dátuma: 2025.11.20.
  •  
Panel lakás

Eladó Lakás, Szeged

Keresés azonosító alapján: HI-2523427
  • Szeged
  • Alapterület: 55 m²
  • Ár: 55 900 000 Ft (155 710 €)
  • Feltöltés dátuma: 2026.01.16.
  •  
Panel lakás

Eladó Lakás, Szeged

Keresés azonosító alapján: HI-2506247
  • Szeged
  • Alapterület: 72 m²
  • Ár: 57 900 000 Ft (161 281 €)
  • Feltöltés dátuma: 2025.11.26.
  •  
Facebook
Blogger
Twitter
Tweets by hasznaltingatla
Flickr