Eladó Lakás, Szeged

Ingatlan azonosító: HI-2515266

Csongrád megye - Szeged, Panel lakás


55 700 000 Ft (144 675 €)

  • Hirdetés feladója: Ingatlaniroda
  • Pontos cím: Szeged
  • Típus: Eladó
  • Belső irodai azonosító: M318961-5113935
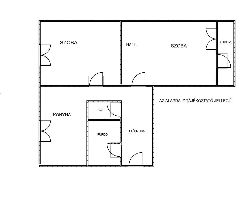
  • Alapterület: 55 m²
  • Építés éve: 1980
  • Egész szobák száma (12 m² felett): 2 db
  • Félszobák száma (6-12 m² között): 0 db
  • Ingatlan állapota: közepes állapotú
  • Komfort: összkomfortos
  • Fűtés: egyéb
  • Lift: nincs
  • Akadálymentesített: nincs
  • Napelem van?: nincs
  • Erkély: nincs
  • Légkondicionáló: nincs
  • Kilátás: kertre néző
  • A lakás falazata: Panel
  • Közös költség mértéke: 12500

Leírás

Szeged Felsőváros, Tisza-parthoz és a belvároshoz közel lévő magasföldszintes lakás, részben felújítva, nyílászárók kicserélve, 2 szoba hallos, 55 nm lakás eladó! Alatta lévő fűtött garázs szintén megvásárolható. A lakás jómódú társasházak ölelésében található, nagyon jó közlekedéssel, buszmegálló, troli 3-4 perc távolságra elérhető. A lakás közel a Tiszához, de mégis csendes utcában található, a nappali egy hatalmas parkra tekint, nincs szemben lévő szomszéd. A lakás adásvétel után, azonnal költözhető, birtokba vehető. Az ingatlan megvásárlásához kedvező hitel igényelhető, melynek intézéséhez szakszerű segítség áll a leendő vásárló rendelkezésére. Megtekintés bármikor, előtte időpont egyeztetéssel. Referencia szám: M318961-HI

E-mail küldése a hirdetőnek

Hibás hirdetés bejelentése

Sikeres elküldtük a hiba bejelentést.

Hirdető adatai

Berényiné Annus Krisztina
E-mail cím: krisztina.berenyine.annus@otpip.hu
Telefonszám: +36304871084
OTPip
Hirdetés feladója: Ingatlaniroda
Ingatlaniroda: OTPip
E-mail cím: csongrad@otpip.hu
Telefonszám: +36 70 455 0993

Képek



Térkép


Ajánlott ingatlanok

Panel lakás

Eladó Lakás, Orosháza

Keresés azonosító alapján: HI-2515387
  • Orosháza
  • Alapterület: 59 m²
  • Ár: 23 000 000 Ft (59 740 €)
  • Feltöltés dátuma: 2025.12.31.
  • klímás
Panel lakás

Eladó Lakás, Szeged

Keresés azonosító alapján: HI-2515385
  • Szeged
  • Alapterület: 52 m²
  • Ár: 41 900 000 Ft (108 831 €)
  • Feltöltés dátuma: 2025.12.31.
  •  
Panel lakás

Eladó Lakás, Mezőhegyes

Keresés azonosító alapján: HI-2515270
  • Mezőhegyes
  • Alapterület: 56 m²
  • Ár: 14 500 000 Ft (37 662 €)
  • Feltöltés dátuma: 2025.12.30.
  • klímás
Panel lakás

Eladó Lakás, Orosháza

Keresés azonosító alapján: HI-2515388
  • Orosháza
  • Alapterület: 48 m²
  • Ár: 20 900 000 Ft (54 286 €)
  • Feltöltés dátuma: 2025.12.31.
  • klímás
Facebook
Blogger
Twitter
Tweets by hasznaltingatla
Flickr