Eladó Lakás, Szigethalom

Ingatlan azonosító: HI-2544245

Pest megye - Szigethalom, Tégla lakás


79 900 000 Ft (203 827 €)

  • Hirdetés feladója: Ingatlaniroda
  • Pontos cím: Szigethalom
  • Típus: Eladó
  • Belső irodai azonosító: M320645-5136879
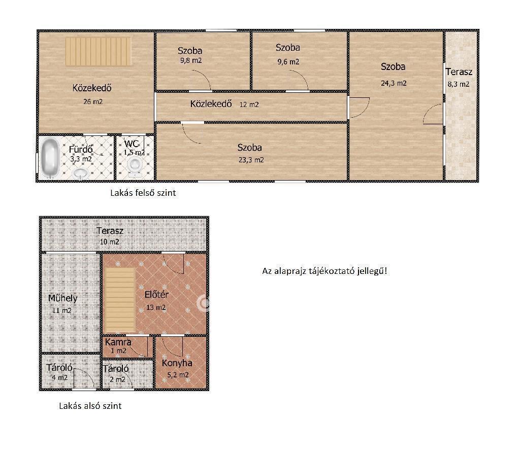
  • Alapterület: 120 m²
  • Építés éve: 2000
  • Egész szobák száma (12 m² felett): 4 db
  • Félszobák száma (6-12 m² között): 0 db
  • Ingatlan állapota: jó állapotú
  • Komfort: összkomfortos
  • Fűtés: gáz (cirko)
  • Lift: nincs
  • Akadálymentesített: nincs
  • Napelem van?: nincs
  • Erkély: van
  • Légkondicionáló: nincs
  • Kilátás: utcai
  • A lakás falazata: Tégla
  • Közös költség mértéke: 10

Leírás

Különálló lakás saját kerttel Szigethalom központi részén felújított, világos otthon HÉV közelében Szigethalom egyik jól megközelíthető, központi részén eladó egy tágas, világos, külön bejáratú lakás egy régen családi házként épült ingatlan emeleti részén. A teljes ingatlan eredetileg egy nagy ház volt, ma társasházi szerződéssel megosztva, jogilag rendezett formában két külön lakásként működik az egyik a földszinten, a másik (az eladásra kínált) az emeleten, melyet külön külső lépcsőn keresztül lehet megközelíteni. A bruttó 165 nm-es alapterületből 120 nm lett igényesen felújítva három évvel ezelőtt, ami a lakótér. A fennmaradó rész a földszinten található, jelenleg mosókonyhaként és műhelyként használható, viszont ez a terület még nem esett át felújításon ugyanakkor remek lehetőséget kínál a későbbiekben például hobbitér, tároló vagy akár iroda kialakítására. A lakásban négy külön nyíló, tágas szoba található, napfényes terek, jó elosztás, kellemes hangulat jellemzi. A felújítás során modern burkolatok, új nyílászárók és korszerű elektromos hálózat is kiépítésre került, így valóban költözhető állapotban van. Az ingatlanhoz 280 négyzetméteres, kizárólagos használatú saját kert tartozik, amely ritkaság ilyen elhelyezkedés mellett. Itt jut hely pihenésnek, kertészkedésnek, vagy akár családi, baráti összejöveteleknek is. Bár az utca forgalmasabb, a HÉV-megálló néhány perc sétával elérhető, így a főváros gyorsan megközelíthető akár autó nélkül is. A közelben minden fontos szolgáltatás megtalálható iskola, óvoda, bevásárlási lehetőségek és egészségügyi ellátás. A lakás saját helyrajzi számmal rendelkezik, valamennyi közmű külön mérőórán keresztül történik, tehát valóban önálló otthonról beszélhetünk. Ez a lakás tökéletes választás lehet azoknak, akik szeretnének városi közelségben élni, de nem akarnak lemondani a kert nyújtotta szabadságról és egy valóban különálló, saját tulajdonú lakás kényelméről.M320645

E-mail küldése a hirdetőnek

Hibás hirdetés bejelentése

Sikeres elküldtük a hiba bejelentést.

Hirdető adatai

Szilveszter Noémi
E-mail cím: noemi.szilveszter@otpip.hu
Telefonszám: +36-30-439-4614
OTPip
Hirdetés feladója: Ingatlaniroda
Ingatlaniroda: OTPip
E-mail cím: szigetszentmiklos@otpip.hu
Telefonszám: +36-30-204-3660

Képek



Térkép


Ajánlott ingatlanok

Tégla lakás

Eladó Lakás, Budapest 6. ker.

Keresés azonosító alapján: HI-2544229
  • Budapest VI.
  • Alapterület: 54 m²
  • Ár: 84 900 000 Ft (216 582 €)
  • Feltöltés dátuma: 2026.03.02.
  •  
Tégla lakás

Eladó Lakás, Budapest 6. ker.

Keresés azonosító alapján: HI-2544275
  • Budapest VI.
  • Alapterület: 60 m²
  • Ár: 79 900 000 Ft (203 827 €)
  • Feltöltés dátuma: 2026.03.02.
  •  
Tégla lakás

Eladó Lakás, Budapest 6. ker.

Keresés azonosító alapján: HI-2544304
  • Budapest VI.
  • Alapterület: 51 m²
  • Ár: 64 900 000 Ft (165 561 €)
  • Feltöltés dátuma: 2026.03.02.
  •  
Tégla lakás

Eladó Lakás, Budapest 6. ker.

Keresés azonosító alapján: HI-2544284
  • Budapest VI.
  • Alapterület: 82 m²
  • Ár: 94 900 000 Ft (242 092 €)
  • Feltöltés dátuma: 2026.03.02.
  •  
Facebook
Blogger
Twitter
Tweets by hasznaltingatla
Flickr