Eladó Lakás, Teskánd

Ingatlan azonosító: HI-2550944

Zala megye - Teskánd, Tégla lakás


71 800 000 Ft (183 632 €)

  • Hirdetés feladója: Ingatlaniroda
  • Pontos cím: Teskánd Petőfi Sándor utca
  • Típus: Eladó
  • Belső irodai azonosító: M323529-5174904
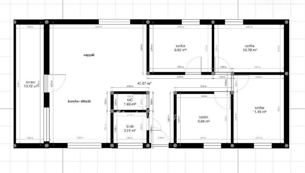
  • Alapterület: 90 m²
  • Építés éve: 2020
  • Egész szobák száma (12 m² felett): 1 db
  • Félszobák száma (6-12 m² között): 4 db
  • Emelet: földszint
  • Ingatlan állapota: jó állapotú
  • Komfort: összkomfortos
  • Fűtés: egyéb
  • Lift: nincs
  • Akadálymentesített: nincs
  • Napelem van?: nincs
  • Erkély: van
  • Légkondicionáló: nincs
  • Kilátás: panorámás
  • A lakás falazata: Tégla
  • Közös költség mértéke: 100

Leírás

Otthon, ahol a családi élet nem szorul keretek közé! Van az a pont, amikor már nem kompromisszumot keresel, hanem minőséget. Amikor a tér nem luxus, hanem természetes közeg. Zalaegerszeg belvárosától mindössze 10 percre található ez a tulajdoni lap szerint lakás megjelölésű, funkcióját tekintve azonban önálló, családi ház. A 2020-ban épült, kiváló állapotú lakás nemcsak méretében erős, hanem ár/érték arányban is kiemelkedő a környéken. Itt nem egy felújítandó, kompromisszumos ingatlant vásárol, hanem modern gépészettel, korszerű fűtéssel és klimatizált helyiségekkel rendelkező, azonnal költözhető otthont. Szélső elhelyezkedésének köszönhetően itt valóban több a privát tér, kevesebb a zaj, a szomszéd, nagyobb intimitás, zavartalanabb élettér. A rendezett, kulturált lakópark stabilitást és biztonságérzetet ad. A nappali a családi élet központja lehet, a külön nyíló szobák pedig valódi funkcióval tölthetők meg: gyerekszoba, dolgozó, vendégszoba, gardrób ? nem kell választani, mindennek jut hely. A terasz az élettér természetes meghosszabbítása ? privát reggelik, elegáns nyári vacsorák, csendes esti borozás helyszíne. A kezelhető méretű udvar pont annyi szabadságot ad, amennyi örömöt, a nélkül, hogy hétvégi teherré válna. A parkolás kényelmesen megoldott ? két személygépkocsi számára - egy zárt és egy nyitott beállóval. A korszerű hőszivattyús rendszer és a klimatizált helyiségek nemcsak komfortot jelentenek, hanem tudatos, hosszú távon is fenntartható működést. Ez ma már nem extra, hanem tudatos döntés. Zalaegerszeg közelsége miatt elérhető marad minden infrastruktúra, miközben nyugodt, csendes, zöld környezetbe térhetünk haza. Kinek ideális? - nagycsaládosoknak, akik nem akarnak kertvárosi kompromisszumot, - home office-ban dolgozóknak, akiknek fontos a szeparált tér, - tudatos vásárlóknak, akik értékelik az újépítés közeli állapotot, - azoknak, akik fontosnak tartják az energiahatékonyságot Ha olyan otthont keres, ahol a családnak nem kell alkalmazkodni a térhez, mert a tér alkalmazkodik a családhoz ?akkor ezt érdemes személyesen is megnézni. Ha fontos Önnek a modern műszaki tartalom, a csendes környezet és a rendezett lakóközösség, ez az ingatlan kiemelkedő választás.

E-mail küldése a hirdetőnek

Hibás hirdetés bejelentése

Sikeres elküldtük a hiba bejelentést.

Hirdető adatai

Egyed András
E-mail cím: andras.egyed@otpip.hu
Telefonszám: +36709423102
OTPip
Hirdetés feladója: Ingatlaniroda
Ingatlaniroda: OTPip
E-mail cím: zalaegerszeg.kossuth@otpip.hu
Telefonszám: +36707761699

Képek



Térkép


Ajánlott ingatlanok

Tégla lakás

Eladó Lakás, Zalaegerszeg

Keresés azonosító alapján: HI-2482393
  • Zalaegerszeg Mártírok útja
  • Alapterület: 92 m²
  • Ár: 52 400 000 Ft (134 015 €)
  • Feltöltés dátuma: 2025.09.30.
  •  
Családi ház

Eladó Ház, Lovászi

Keresés azonosító alapján: HI-2550946
  • Lovászi Arany János utca
  • Alapterület: 120 m²
  • Telekterület: 723 m²
  • Ár: 25 000 000 Ft (63 939 €)
  • Feltöltés dátuma: 2026.03.16.
  •  
Családi ház

Eladó Ház, Vonyarcvashegy

Keresés azonosító alapján: HI-2523816
  • Vonyarcvashegy Cseri utca
  • Alapterület: 150 m²
  • Telekterület: 624 m²
  • Ár: 145 000 000 Ft (370 844 €)
  • Feltöltés dátuma: 2026.01.18.
  •  
Családi ház

Eladó Ház, Bagod

Keresés azonosító alapján: HI-2526715
  • Bagod
  • Alapterület: 112 m²
  • Telekterület: 1 280 m²
  • Ár: 52 000 000 Ft (132 992 €)
  • Feltöltés dátuma: 2026.01.27.
  •  
Facebook
Blogger
Twitter
Tweets by hasznaltingatla
Flickr