Eladó lakás Zalaegerszeg, Belváros

Ingatlan azonosító: HI-2565749

Zala megye - Zalaegerszeg, Új építésű lakás


66 900 000 Ft (184 298 €)

  • Hirdetés feladója: Ingatlaniroda
  • Pontos cím: Zalaegerszeg
  • Típus: Eladó
  • Belső irodai azonosító: U0049754-5212518
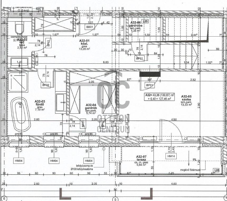
  • Alapterület: 56 m²
  • Építés éve: 2026
  • Egész szobák száma (12 m² felett): 2 db
  • Félszobák száma (6-12 m² között): 0 db
  • Fürdőszobák száma: 1 db
  • Emelet: 2. emelet
  • Ingatlan állapota: új építésű
  • Fűtés: gáz (cirko)
  • Lift: nincs
  • Akadálymentesített: nincs
  • Napelem van?: nincs
  • Erkély: van
  • Légkondicionáló: nincs
  • Kilátás: udvari
  • Tájolás: kelet
  • A lakás falazata: Tégla

Leírás

Zalaegerszegen az Ady utcában kínálok megvételre egy ráépítéses, 1. emelet+tetőteres, kiváló elrendezésű, 56 m2-es, 2 szobás, erkélyes lakást! Az ingatlan kívül-belül egy teljeskörűen felújított műemlék védett épületben található Zalaegerszeg belvárosában! Amennyiben fontos a jó közlekedés, és a kényelmes városi környezet, amely saját célra és befektetésnek is ideális, ezt mindenképpen érdemes megnéznie! KÖRNYÉK ÉS KÖZLEKEDÉS: - Frekventált terület. - Kifogástalan közlekedés. - Általános iskola, óvoda, éttermek, orvosi rendelő a közelben. - Belvárosi környezet. ÉPÜLET LEÍRÁSA: - Tégla falazat. - A teherhordó falak 30, illetve 38 cm vastagok, melyek 15 cm homlokzatszigetelést kaptak. - Történelmi épület. - Modern ház. - Díszes homlokzati mintázatok. - 2 szint+tetőtér. LAKÁS LEÍRÁSA: - A lakás nettó 56 m2 erkély felével számolva. - Szinten 42,14 m2+ galária 11,25 m2. - Jó elosztású. - Keleti tájolású, kellemes, világos. - Belmagassága 265 cm. - Fűtése gáz-cirkó padlófűtéssel. Fürdőszobában kiegészítésként törölköző szárítós radiátor kerül elhelyezésre, elektromos fűtőpatronnal szerelve. - Nyílászárói 3 rétegű 6 légkamrás műanyagok, motoros acél szerkezetű redőnnyel. A 66.900.000.- Ft-os ár tartalmazza a burkolást, a konyhabútort, a klímát, és a fürdőszoba bútort! A 69.900.000.- Ft-os ár pedig teljes berendezéssel együtt értendő, mely az alábbiakat tartalmazza: - Lámpatestek az egész lakásban (LED) - Előszoba bútorok. - Étkezőasztal + székek. -Kanapé és egy 163 cm átmérőjű TV a nappaliban. - Fürdőben: mosó-szárítógép. - Gépesített konyhabútor. Irodánk teljes körű, ingyenes szolgáltatást nyújt kereső ügyfeleinknek. Szakszerű tanácsadással, hitel ügyintézéssel, energetikai tanúsítvány elkészítésével és kedvező díjszabású ügyvéddel nyújtunk segítséget! Bővebb információért és a megtekintéssel kapcsolatban várom HÍVÁSÁT a hét minden napján!

E-mail küldése a hirdetőnek

Hibás hirdetés bejelentése

Sikeres elküldtük a hiba bejelentést.

Hirdető adatai

Kovács Rita
E-mail cím: kovacs.rita2@oc.hu
Telefonszám: +36 70 412 5441
Otthon Centrum
Hirdetés feladója: Ingatlaniroda
Ingatlaniroda: Otthon Centrum
E-mail cím: zalaegerszeg@oc.hu
Telefonszám: +36 70 454 0455

Képek



Térkép


Ajánlott ingatlanok

Új építésű lakás

Eladó lakás Zalaegerszeg, Belváros

Keresés azonosító alapján: HI-2368304
  • Zalaegerszeg
  • Alapterület: 81 m²
  • Ár: 94 500 000 Ft (260 331 €)
  • Feltöltés dátuma: 2025.02.04.
  •  
Új építésű lakás

Eladó lakás Zalaegerszeg, Belváros

Keresés azonosító alapján: HI-2368297
  • Zalaegerszeg
  • Alapterület: 80 m²
  • Ár: 95 600 000 Ft (263 361 €)
  • Feltöltés dátuma: 2025.02.04.
  •  
Új építésű lakás

Eladó lakás Zalaegerszeg, Belváros

Keresés azonosító alapján: HI-2393560
  • Zalaegerszeg
  • Alapterület: 85 m²
  • Ár: 81 000 000 Ft (223 140 €)
  • Feltöltés dátuma: 2025.03.25.
  •  
Családi ház

Eladó ház Zalaegerszeg, Páterdomb

Keresés azonosító alapján: HI-2538970
  • Zalaegerszeg
  • Alapterület: 90 m²
  • Telekterület: 429 m²
  • Ár: 62 500 000 Ft (172 176 €)
  • Feltöltés dátuma: 2026.02.18.
  •  
Facebook
Blogger
Twitter
Tweets by hasznaltingatla
Flickr