Eladó lakás Zalaegerszeg, Belváros

Ingatlan azonosító: HI-2471144

Zala megye - Zalaegerszeg, Új építésű lakás


67 640 000 Ft (177 533 €)

  • Hirdetés feladója: Ingatlaniroda
  • Pontos cím: Zalaegerszeg
  • Típus: Eladó
  • Belső irodai azonosító: U0045576-5027355
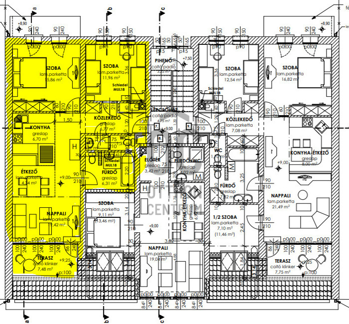
  • Alapterület: 76 m²
  • Egész szobák száma (12 m² felett): 3 db
  • Félszobák száma (6-12 m² között): 0 db
  • Fürdőszobák száma: 1 db
  • Emelet: 3. emelet
  • Ingatlan állapota: új építésű
  • Fűtés: egyéb
  • Lift: nincs
  • Akadálymentesített: nincs
  • Napelem van?: nincs
  • Erkély: van
  • Légkondicionáló: nincs
  • Kilátás: utcai
  • Tájolás: dél
  • A lakás falazata: Tégla

Leírás

Új lakást szeretne, saját ízlésének megfelelően Zalaegerszegen? Íme, egy nagyszerű ajánlat Zalaegerszeg belvárosában,75,51 négyzetméteres lakás, 770 000Ft/nm-es áron!!! A 9 lakásos társasházban 44-87 nm-es, 3 szobás lakások kerülnek kialakításra ,különálló garázsokban vagy zárt parkolóhelyeken biztosított a gépkocsik tárolása és védelme. A tervezés során fontos szempont a beépített anyagok magas minősége , a költséghatékony fenntartás és az épületek értékállósága. A ház fűtését , illetve meleg víz ellátását , hőszivattyús rendszer biztosítja , lakásonkénti egyedi méréssel és szabályozással , padlófűtéssel. Az ingatlan az első emeleten helyezkedik el 88,22 m2 bruttó területű, ebből a 2 erkély mérete összesen 9,41 m2. 2 hálószoba, nappali, konyha, étkező, fürdő, 2 WC, előtér, közlekedő, terasz elrendezésű. A projekt főbb jellemzői: - belváros közeli , frekventált elhelyezkedés (Petőfi utca Ady - Mártírok közti részén) - igényes , belvároshoz méltó külső megjelenés - 9 prémium minőségű lakás funkcionálisan tervezett alaprajzokkal: 2 szobával, nappalival, erkélyekkel - napfényes , déli - nyugati tájolású lakások - fenntartható lakás , alacsony energiafelhasználás - impozáns épület, kevésbé forgalmas belvárosi részen - fürdő és WC külön helyiségben minden lakásban - 3 rétegű nyílászárók , redőny , szúnyogháló , klíma kérhető - Választható belső burkolatok , szaniterek , ajtók - belső , zárt , kisméretű , parkosított udvar - saját garázs vásárolható - Családi Otthonteremtési Kedvezmény + Hitel igényelhető! Az építkezés 70%-os készültségi szinten tart. Az épület műszaki átadása: 2024 év eleje.

E-mail küldése a hirdetőnek

Hibás hirdetés bejelentése

Sikeres elküldtük a hiba bejelentést.

Hirdető adatai

Kovács Rita
E-mail cím: kovacs.rita2@oc.hu
Telefonszám: +36 70 412 5441
Otthon Centrum
Hirdetés feladója: Ingatlaniroda
Ingatlaniroda: Otthon Centrum
E-mail cím: zalaegerszeg@oc.hu
Telefonszám: +36 70 454 0455

Képek



Térkép


Ajánlott ingatlanok

Új építésű lakás

Eladó lakás Zalaegerszeg, Belváros

Keresés azonosító alapján: HI-2368297
  • Zalaegerszeg
  • Alapterület: 80 m²
  • Ár: 79 500 000 Ft (208 661 €)
  • Feltöltés dátuma: 2025.02.04.
  •  
Új építésű lakás

Eladó lakás Zalaegerszeg, Belváros

Keresés azonosító alapján: HI-2368304
  • Zalaegerszeg
  • Alapterület: 81 m²
  • Ár: 77 200 000 Ft (202 625 €)
  • Feltöltés dátuma: 2025.02.04.
  •  
Új építésű lakás

Eladó lakás Zalaegerszeg, Belváros

Keresés azonosító alapján: HI-2296586
  • Zalaegerszeg
  • Alapterület: 65 m²
  • Ár: 65 704 196 Ft (172 452 €)
  • Feltöltés dátuma: 2024.09.19.
  •  
Új építésű lakás

Eladó lakás Zalaegerszeg, Belváros

Keresés azonosító alapján: HI-2393560
  • Zalaegerszeg
  • Alapterület: 85 m²
  • Ár: 76 500 000 Ft (200 787 €)
  • Feltöltés dátuma: 2025.03.25.
  •  
Facebook
Blogger
Twitter
Tweets by hasznaltingatla
Flickr