Eladó Nagypolgári Ház, Hajdúnánás Központjában

Ingatlan azonosító: HI-2492829

Hajdú-Bihar megye - Hajdúnánás, Családi ház


35 000 000 Ft (90 439 €)

  • Hirdetés feladója: Ingatlaniroda
  • Pontos cím: Hajdúnánás
  • Típus: Eladó
  • Belső irodai azonosító: M314139-5067551
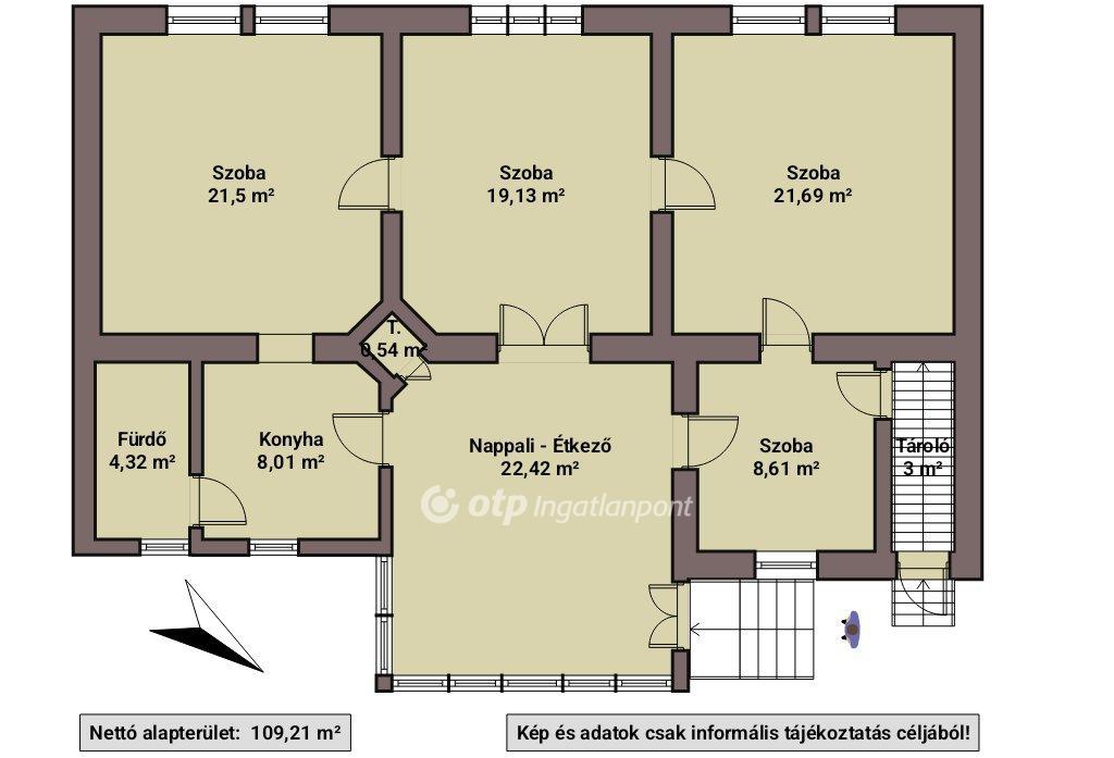
  • Alapterület: 108 m²
  • Telekterület: 548 m² ( 152 négyszögöl )
  • Építés éve: 1950
  • Egész szobák száma (12 m² felett): 4 db
  • Félszobák száma (6-12 m² között): 0 db
  • Fürdőszobák száma: 1 db
  • Ingatlan állapota: felújítandó
  • Komfort: komfortos
  • Fűtés: gáz (konvektor)
  • Pince: nincs
  • Akadálymentesített: nincs
  • Energiatanúsítvány: I
  • Napelem van?: nincs
  • Légkondicionáló: nincs

Leírás

Felújításra Méltó, Nagypolgári Ház eladó, csendes, de aszfaltozott, összközműves utcában, Hajdúnánás központjának közvetlen közelében. A Felújítás láthatóan, érzékelhetően egyre több kreatív Fiatalnak válik vágyálmává. Mesteremberek hiánya, kiszámíthatatlansága, anyagi megfontolások miatt, egyre többen vallják: DIY, Csináld Magadnak! Ebben a Házban, csodásan kiélheti Kreativitását Minden ilyen Ember! Örömmel és szívesen fogadom Őket! Természetesen azok számára is eladó, akik továbbra is szakemberek munkáit szeretnék igénybe venni. Kitűnő elhelyezkedésű, szerethető, és még művelhető léptékű, 548 nm-es, málnás, gyümölcsfás és szőlős telken, helyezkedik el ez a 108 nm-es téglaépítésű Nagypolgári Ház. A 1950-ben épült, összközműves Ház takarásoktól mentesen, őszintén tárja elénk a felújítás szükségességét. Még így jelen állapotában is, magával ragadó tud lenni a terek térérzete, a beáradó fény, a világosság mennyisége, az egész tömb meghitt nyugalma. Megújításával Nagyszerű Otthont lehet belőle készíteni! Az alaprajzon jól azonosítható Helyiségei: 4 Szoba, Nappali - Étkező, Konyha, Fürdőszoba és WC, tárolók. A kert melléképületében, egykori asztalos műhely, Szőlészeti-Borászati tároló, 2 Garázs található. A kertben, szilvafa, barackfák, nemes szőlők, 30 éves málna ültetvény, és füves tereületek zöldjei adnak nagyszerű kilátást a napfényes Nappali - Étkezőből. Az ingatlan kitűnő lokációjának köszönhetően, bármi könnyedén és gyorsan elérhető, legyen szó a városközpontról, óvodáról, iskoláról, bevásárlásról vagy akár az autópályáról. Hajdúnánás egy igazán élhető, szerethető város. Komoly érdeklődés esetén, Személyesen is megtekinthető, előre egyeztetett időpontban. További információkat biztosítunk a megtekintőknek, keressenek bizalommal megadott elérhetőségeimen! Referenciaszám: M314139 Kedvezményes kamatozású lakásvásárlási és felújítási hitelek, valamint Otthon Start, CSOK Plusz és Babaváró ügyintézés az OTP hátterével irodánkban. Képek és adatok Csak tájékoztatási jelleggel! Referencia szám: M314139

E-mail küldése a hirdetőnek

Hibás hirdetés bejelentése

Sikeres elküldtük a hiba bejelentést.

Hirdető adatai

Balogh Imre
E-mail cím: imre.balogh@otpip.hu
Telefonszám: +36-70-607-3588
OTPip
Hirdetés feladója: Ingatlaniroda
Ingatlaniroda: OTPip
E-mail cím: debrecenkurtos@otpip.hu
Telefonszám: +36-20-528-8700

Képek



Térkép


Ajánlott ingatlanok

Családi ház

Eladó Ház, Hajdúböszörmény

Keresés azonosító alapján: HI-2448487
  • Hajdúböszörmény
  • Alapterület: 144 m²
  • Telekterület: 807 m²
  • Ár: 124 000 000 Ft (320 413 €)
  • Feltöltés dátuma: 2025.07.24.
  •  
Családi ház

Családiház eladó, ALKALMI ÁRON Hajdúnánáson

Keresés azonosító alapján: HI-2412772
  • Hajdúnánás
  • Alapterület: 242 m²
  • Telekterület: 550 m²
  • Ár: 66 900 000 Ft (172 868 €)
  • Feltöltés dátuma: 2025.05.02.
  • klímás
Családi ház

Eladó Ház, Balmazújváros

Keresés azonosító alapján: HI-2474949
  • Balmazújváros
  • Alapterület: 206 m²
  • Telekterület: 1 417 m²
  • Ár: 74 900 000 Ft (193 540 €)
  • Feltöltés dátuma: 2025.09.17.
  • klímás
Családi ház

Eladó Ház, Hajdúnánás

Keresés azonosító alapján: HI-2450980
  • Hajdúnánás
  • Alapterület: 72 m²
  • Telekterület: 2 475 m²
  • Ár: 52 000 000 Ft (134 367 €)
  • Feltöltés dátuma: 2025.07.29.
  • klímás
Facebook
Blogger
Twitter
Tweets by hasznaltingatla
Flickr