Eladó polgári Lakás garázzsal, saját kézműves pékséggel és üzlethelységgel!

Ingatlan azonosító: HI-2532606

Bács-Kiskun megye - Kiskunfélegyháza, Családi ház


54 990 000 Ft (144 711 €)

  • Hirdetés feladója: Ingatlaniroda
  • Pontos cím: Kiskunfélegyháza
  • Típus: Eladó
  • Belső irodai azonosító: 3618378-5109298
  • Alapterület: 72 m²
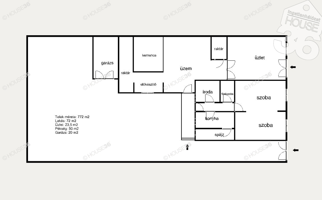
  • Telekterület: 772 m² ( 215 négyszögöl )
  • Egész szobák száma (12 m² felett): 2 db
  • Félszobák száma (6-12 m² között): 0 db
  • Ingatlan állapota: jó állapotú
  • Fűtés: gáz (cirko)
  • Pince: nincs
  • Akadálymentesített: nincs
  • Napelem van?: nincs
  • Légkondicionáló: nincs

Leírás

Álmodja meg saját városi kerthelyiségét, ahol a gőzölgő kávé, a kézműves pékség süteményei és a kenyér illata érezhető a nyugodtan elfogyasztott reggeli mellett! Eladóvá vált Kiskunfélegyházán egy nagyszerű adottságú és nagyon jól megközelíthető épületegyüttes, ahol megtalálható egy lakás, garázs, pékség a hozzátartozó helységekkel és üzlettér is. Jó választás lehet reggelizőnek, lakás étteremnek, különleges kézműves pékségnek, amelynek csak a stílusát kell kitalálni! Jellemzői: - Telek mérete: 772 m2 - Lakás: 72 m2 (2 nagy szoba, folyosó, fürdőszoba, dolgozó szoba, konyha, kamra) - Üzlethelyiség: 23,5 m2 - Pékség: 50 m2 (2 raktár, előkészítő, sütőkemencés helység) - Garázs: 20 m2 - Az ingatlan eladási ára teljes berendezéssel, gépekkel és bútorral együtt értendő!!! Figyelem az adatlap megbízónktól kapott adatok alapján készült, pontosságáért felelősséget nem tudunk vállalni!Szolgáltatásaink Kereső ügyfeleink számára INGYENESEK!Amennyiben eladó-kiadó ingatlana van vagy finanszírozási megoldást keres , hívjon, megtaláljuk a legjobb lehetőséget Önnek! A HOUSE36 kínálatában található összes ingatlannal kapcsolatban tudok felvilágosítást nyújtani! Hívjon bizalommal! Az iroda legfrissebb, aktuális kínálatát a HOUSE36 saját weboldalán találja!

E-mail küldése a hirdetőnek

Hibás hirdetés bejelentése

Sikeres elküldtük a hiba bejelentést.

Hirdető adatai

Tóth Ágnes
E-mail cím: agnes.toth@h36.hu
Telefonszám: +36706345582
Hirdetés feladója: Ingatlaniroda

Képek



Térkép


Ajánlott ingatlanok

Családi ház

Lakást keresőknek, építeni vágyóknak ajánlom!

Keresés azonosító alapján: HI-2532619
  • Kecskemét
  • Alapterület: 30 m²
  • Telekterület: 719 m²
  • Ár: 28 000 000 Ft (73 684 €)
  • Feltöltés dátuma: 2026.02.04.
  •  
Családi ház

Közel a kis Tescohoz sátortetős ház eladó!

Keresés azonosító alapján: HI-2532614
  • Kecskemét
  • Alapterület: 130 m²
  • Telekterület: 760 m²
  • Ár: 67 900 000 Ft (178 684 €)
  • Feltöltés dátuma: 2026.02.04.
  •  
Családi ház

Nagycsaládosoknak ajánljuk!

Keresés azonosító alapján: HI-2532626
  • Felsőlajos
  • Alapterület: 124 m²
  • Telekterület: 2 400 m²
  • Ár: 34 900 000 Ft (91 842 €)
  • Feltöltés dátuma: 2026.02.04.
  •  
Családi ház

Eladó 2 szobás családi ház, építkezési lehetőséggel!

Keresés azonosító alapján: HI-2532601
  • Kiskunfélegyháza
  • Alapterület: 69 m²
  • Telekterület: 654 m²
  • Ár: 29 900 000 Ft (78 684 €)
  • Feltöltés dátuma: 2026.02.04.
  •  
Facebook
Blogger
Twitter
Tweets by hasznaltingatla
Flickr