Eladó szép kis házikó a Halasi úti hobbysoron!

Ingatlan azonosító: HI-2486804

Bács-Kiskun megye - Kecskemét, Családi ház


39 900 000 Ft (103 636 €)

  • Hirdetés feladója: Ingatlaniroda
  • Pontos cím: Kecskemét
  • Típus: Eladó
  • Belső irodai azonosító: 3620553-5055222
  • Alapterület: 40 m²
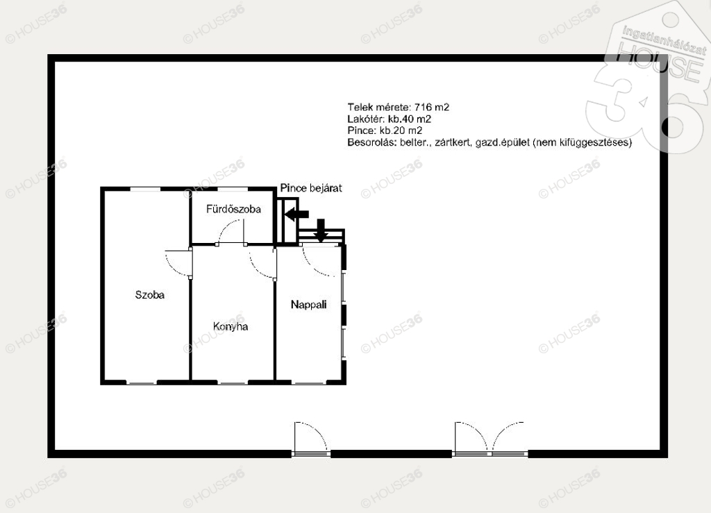
  • Telekterület: 716 m² ( 199 négyszögöl )
  • Építés éve: 1975
  • Egész szobák száma (12 m² felett): 2 db
  • Félszobák száma (6-12 m² között): 0 db
  • Ingatlan állapota: jó állapotú
  • Fűtés: egyéb
  • Pince: nincs
  • Akadálymentesített: nincs
  • Energiatanúsítvány: D
  • Napelem van?: nincs
  • Légkondicionáló: nincs

Leírás

Kecskemét kertvárosi részén, a Halasi úti hobbysoron eladóvá vált egy teljes körűen felújított kis házikó. Jellemzői: - Telek mérete: 716 m2 - Összközműves - Besorolása: belterület, zártkert, gazdasági épület - Lakótér: br.40 m2 : nappali, konyha, fürdőszoba, hálószoba - Pince: 20 m2 - Teljeskörűen felújított (2020/2021: cserélt nyílászárók, burkolatok, konyhabútor, fürdőszoba, vezetékek, fűtéskorszerűsítés) - Szigetelés, új külső színezés a házon (2023) Figyelem az adatlap megbízónktól kapott adatok alapján készült, pontosságáért felelősséget nem tudunk vállalni! Szolgáltatásaink Kereső ügyfeleink számára INGYENESEK! Amennyiben eladó-kiadó ingatlana van vagy finanszírozási megoldást keres , hívjon, megtaláljuk a legjobb lehetőséget Önnek! A HOUSE36 kínálatában található összes ingatlannal kapcsolatban tudok felvilágosítást nyújtani! Hívjon bizalommal! Az iroda legfrissebb, aktuális kínálatát a HOUSE36 saját weboldalán találja!

E-mail küldése a hirdetőnek

Hibás hirdetés bejelentése

Sikeres elküldtük a hiba bejelentést.

Hirdető adatai

Berente Judit
E-mail cím: judit.berente@h36.hu
Telefonszám: +36707982512
Hirdetés feladója: Ingatlaniroda

Képek



Térkép


Ajánlott ingatlanok

Családi ház

Helvécián önálló telken családi ház eladó!

Keresés azonosító alapján: HI-2453187
  • Kecskemét
  • Alapterület: 90 m²
  • Telekterület: 400 m²
  • Ár: 72 000 000 Ft (187 013 €)
  • Feltöltés dátuma: 2025.08.02.
  •  
Családi ház

MESEBELI KÖRNYEZET, CSEND ÉS NYUGALOM KÖZEL A VÁROSHOZ!

Keresés azonosító alapján: HI-2453220
  • Kecskemét
  • Alapterület: 120 m²
  • Telekterület: 1 439 m²
  • Ár: 73 900 000 Ft (191 948 €)
  • Feltöltés dátuma: 2025.08.02.
  •  
Családi ház

AKASZTÓN, FŐ ÚT MELLETTI, RÉSZBEN FELÚJÍTOTT HÁZ ELADÓ!

Keresés azonosító alapján: HI-2453209
  • Akasztó
  • Alapterület: 77 m²
  • Telekterület: 1 340 m²
  • Ár: 17 650 000 Ft (45 844 €)
  • Feltöltés dátuma: 2025.08.02.
  •  
Családi ház

Eladó, 119 m2-es extra ház, Nappali + 3 szoba.

Keresés azonosító alapján: HI-2453211
  • Ballószög
  • Alapterület: 119 m²
  • Telekterület: 450 m²
  • Ár: 118 100 000 Ft (306 753 €)
  • Feltöltés dátuma: 2025.08.02.
  •  
Facebook
Blogger
Twitter
Tweets by hasznaltingatla
Flickr