Eladó szép kis házikó a Halasi úti hobbysoron!

Ingatlan azonosító: HI-2531758

Bács-Kiskun megye - Kecskemét, Családi ház


39 900 000 Ft (103 906 €)

  • Hirdetés feladója: Ingatlaniroda
  • Pontos cím: Kecskemét
  • Típus: Eladó
  • Belső irodai azonosító: 3620553-5049304
  • Alapterület: 40 m²
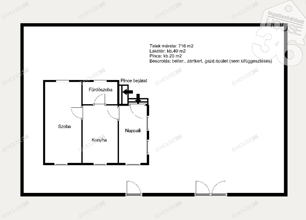
  • Telekterület: 716 m² ( 199 négyszögöl )
  • Építés éve: 1975
  • Egész szobák száma (12 m² felett): 2 db
  • Félszobák száma (6-12 m² között): 0 db
  • Ingatlan állapota: jó állapotú
  • Fűtés: elektromos
  • Pince: nincs
  • Akadálymentesített: nincs
  • Energiatanúsítvány: D
  • Napelem van?: nincs
  • Légkondicionáló: nincs

Leírás

Kecskemét kertvárosi részén, a Halasi úti hobbysoron eladóvá vált egy teljes körűen felújított kis házikó. Jellemzői: - Telek mérete: 716 m2 - Összközműves - Besorolása: belterület, zártkert, gazdasági épület - Lakótér: br.40 m2 : nappali, konyha, fürdőszoba, hálószoba - Pince: 20 m2 - Teljeskörűen felújított (2020/2021: cserélt nyílászárók, burkolatok, konyhabútor, fürdőszoba, vezetékek, fűtéskorszerűsítés) - Szigetelés, új külső színezés a házon (2023) Figyelem az adatlap megbízónktól kapott adatok alapján készült, pontosságáért felelősséget nem tudunk vállalni! Szolgáltatásaink Kereső ügyfeleink számára INGYENESEK! Amennyiben eladó-kiadó ingatlana van vagy finanszírozási megoldást keres , hívjon, megtaláljuk a legjobb lehetőséget Önnek! A HOUSE36 kínálatában található összes ingatlannal kapcsolatban tudok felvilágosítást nyújtani! Hívjon bizalommal! Az iroda legfrissebb, aktuális kínálatát a HOUSE36 saját weboldalán találja!

E-mail küldése a hirdetőnek

Hibás hirdetés bejelentése

Sikeres elküldtük a hiba bejelentést.

Hirdető adatai

Biró Ramóna
E-mail cím: ramona.biro@h36.hu
Telefonszám: +36706450457
Hirdetés feladója: Ingatlaniroda

Képek



Térkép


Ajánlott ingatlanok

Családi ház
  • Kecskemét
  • Alapterület: 93 m²
  • Telekterület: 862 m²
  • Ár: 104 900 000 Ft (273 177 €)
  • Feltöltés dátuma: 2026.03.03.
  • klímás
Családi ház

​Eladó 2019-es, 3 szobás családi ház Kecskeméten

Keresés azonosító alapján: HI-2531705
  • Kecskemét
  • Alapterület: 108 m²
  • Telekterület: 750 m²
  • Ár: 109 900 000 Ft (286 198 €)
  • Feltöltés dátuma: 2026.02.04.
  • klímás
Családi ház

Szeleifalu csendes részén kis családi ház eladó!

Keresés azonosító alapján: HI-2531724
  • Kecskemét
  • Alapterület: 40 m²
  • Telekterület: 150 m²
  • Ár: 33 900 000 Ft (88 281 €)
  • Feltöltés dátuma: 2026.02.04.
  • klímás
Családi ház

Egyedi családi ház eladó Ballószögön.

Keresés azonosító alapján: HI-2547010
  • Kecskemét
  • Alapterület: 127 m²
  • Telekterület: 6 000 m²
  • Ár: 124 900 000 Ft (325 260 €)
  • Feltöltés dátuma: 2026.03.05.
  • klímás
Facebook
Blogger
Twitter
Tweets by hasznaltingatla
Flickr