Eladó Telek, Budapest 3. ker.

Ingatlan azonosító: HI-2559229

Budapest - Budapest III., Lakóövezeti


159 900 000 Ft (440 496 €)

  • Hirdetés feladója: Ingatlaniroda
  • Pontos cím: Budapest III.
  • Típus: Eladó
  • Belső irodai azonosító: M324781-5196254
  • Telekterület: 1 751 m² ( 487 négyszögöl )
  • Villany: telken belül
  • Gáz: utcában
  • Víz: utcában
  • Panorámás: nincs

Leírás

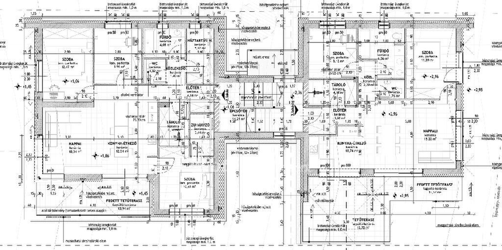
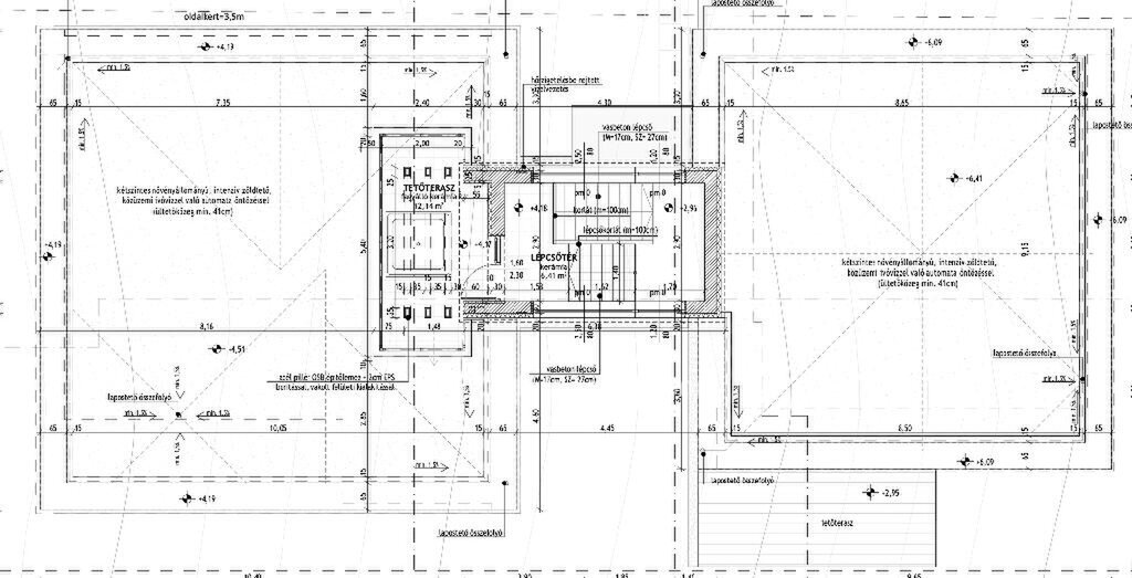
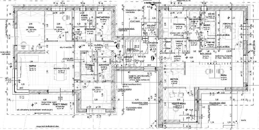
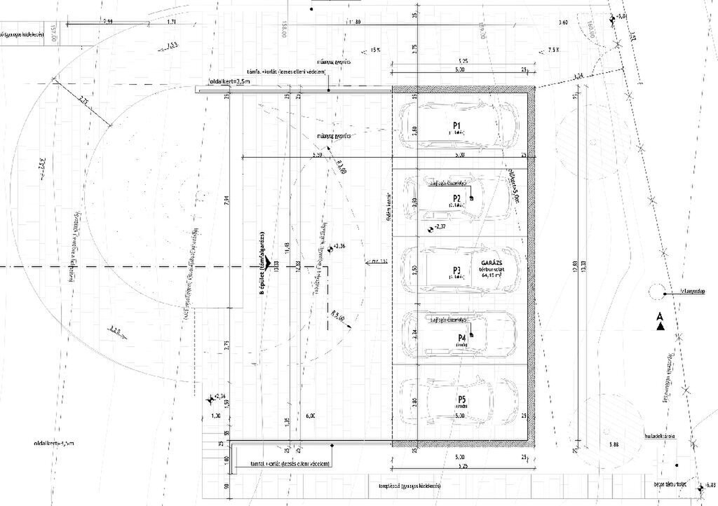
Budapest III. kerületében eladó egy 1751 négyzetméter alapterületű fejlesztési telek, amelyhez teljes tervdokumentáció és engedélyezési terv tartozik. A projekt egy modern lakóépület és egy támfalgarázs megépítésére készült, így az új tulajdonos egy már előkészített beruházási lehetőséget vásárol meg. A tervek alapján a telken egy korszerű, több szintes épület valósítható meg, amelyben három lakás és egy iroda kerül kialakításra. A lakások kiszolgálását egy terepszint alatti támfalgarázs biztosítja, amely a szükséges parkolóhelyeket nyújtja az épület számára. A telek övezeti besorolása Lke-2 / SZ-N3, szabadon álló beépítési móddal. A tervezett épület terepszint feletti beépítettsége 14,98 százalék, amely megfelel a megengedett legfeljebb 15 százalékos beépíthetőségnek. A szintterületi mutató 0,31, amely szintén a szabályozási határértékeken belül van. A tervezett A épület teljes bruttó szintterülete 510,29 négyzetméter, míg a parkolást biztosító B épület 69,98 négyzetméter alapterületű támfalgarázs. Az épületmagasság 6,31 méter, amely megfelel a helyi építési szabályzatban előírt követelményeknek. A projekt modern építészeti megoldásokkal készült, nagy üvegfelületekkel, zöldtetős kialakítással és igényes homlokzati anyaghasználattal. A telek jelentős zöldfelülettel rendelkezik, így a megvalósuló épület kellemes, zöld környezetben helyezkedhet el. Az ingatlan befektetők, kivitelezők vagy akár hosszabb távú fejlesztésben gondolkodók számára is kiváló lehetőség, hiszen a projekt a szükséges tervekkel együtt kerül értékesítésre. A vásárlást teljes körű, díjmentes tanácsadás és helyben történő, gyors és egyszerű hitelügyintézés segíti. Ne maradjon le erről a kedvező lehetőségről, érdeklődjön bizalommal. M324781 Az OTP Ingatlanpont, mint egyetlen közvetlen banki hátterű ingatlanközvetítő társaság teljes körű ügyintézéssel áll az eladók és a vevők rendelkezésére! A kínálatunkból választott ingatlan finanszírozásához minősített fogyasztóbarát, piaci és kedvezményes hitel- és lízingkonstrukciókat kínálunk (lakásvásárlási hitel, CSOK plusz, szabad felhasználású hitel, babaváró hitel, céges hitelek, pályázatok, amennyiben az ügyfél és az ingatlan megfelel a feltételeknek). Az adásvételi szerződés megkötéséhez igény szerint megbízható ügyvédi közreműködést biztosítunk, és segítséget nyújtunk az adásvételhez kapcsolódó egyéb ügyek intézéséhez. Ha az új ingatlana megvásárlásához a jelenlegi ingatlanát el kell adnia, abban is szívesen segítünk. Referencia szám: M324781-HI

E-mail küldése a hirdetőnek

Hibás hirdetés bejelentése

Sikeres elküldtük a hiba bejelentést.

Hirdető adatai

Takács Zsuzsanna
E-mail cím: takacs.zsuzsanna@otpip.hu
Telefonszám: +36304953819
OTPip
Hirdetés feladója: Ingatlaniroda
Ingatlaniroda: OTPip
E-mail cím: budapest13.lehelutca@otpip.hu
Telefonszám: +36706136133

Képek



Térkép


Ajánlott ingatlanok

Lakóövezeti

Eladó Telek, Vácszentlászló

Keresés azonosító alapján: HI-2405153
  • Vácszentlászló
  • Telekterület: 844 m²
  • Ár: 14 845 000 Ft (40 895 €)
  • Feltöltés dátuma: 2025.04.22.
  •  
Lakóövezeti

Eladó Telek, Budapest 3. ker.

Keresés azonosító alapján: HI-2316926
  • Budapest III.
  • Telekterület: 1 210 m²
  • Ár: 176 720 500 Ft (486 833 €)
  • Feltöltés dátuma: 2024.10.20.
  •  
Lakóövezeti

Eladó Telek, Sukoró

Keresés azonosító alapján: HI-2555886
  • Sukoró
  • Telekterület: 1 050 m²
  • Ár: 42 000 000 Ft (115 702 €)
  • Feltöltés dátuma: 2026.03.30.
  •  
Lakóövezeti

Eladó Telek, Vácszentlászló

Keresés azonosító alapján: HI-2405164
  • Vácszentlászló
  • Telekterület: 861 m²
  • Ár: 15 150 000 Ft (41 736 €)
  • Feltöltés dátuma: 2025.04.22.
  •  
Facebook
Blogger
Twitter
Tweets by hasznaltingatla
Flickr