Eladó telek, Fót

Ingatlan azonosító: HI-2483033

Pest megye - Fót, Külterületi


16 000 000 Ft (40 921 €)

  • Hirdetés feladója: Ingatlaniroda
  • Pontos cím: Fót Czuczor Gergely utca
  • Típus: Eladó
  • Belső irodai azonosító: TK049556-5019035
  • Telekterület: 1 500 m² ( 417 négyszögöl )
  • Villany: utcában
  • Gáz: utcában
  • Csatorna: utcában
  • Panorámás: nincs

Leírás

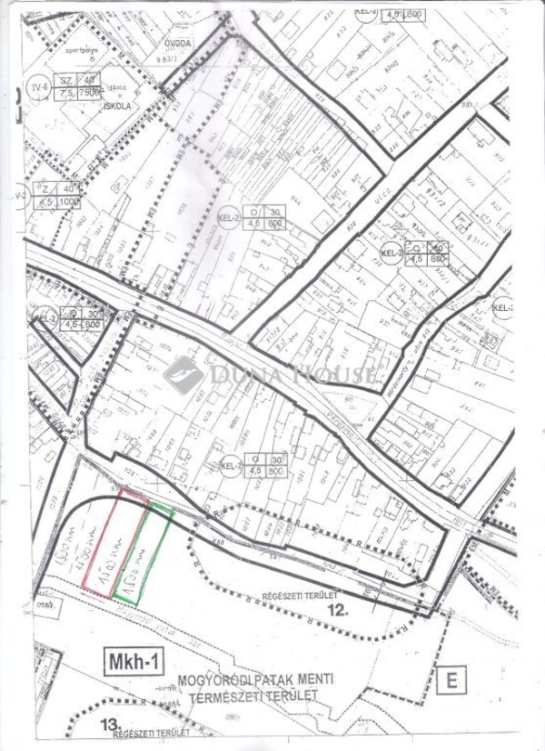
Kivételesen jó lehetőség befektetőknek és építkezőknek ez a remek adottságú és elhelyezkedésű 1.500 m2 telek.. (+ a közvetlenül mellette levő, ugyanilyen méretű és adottságú telek)- 17,5 m (utcafront) x 86 m, hosszú, keskeny téglalap alakú, sík felszínű telek.- telek előtt : víz, villany, gáz és a csatorna- építési övezet jelenlegi besorolása : Mkh-1- átminősítési kérelem beadva, mivel minden szomszédos utca, sőt az utca másik oldala is KEL-2 kertvárosi lakóövezeti besorolású- KEL-2 a Hatályos építési szabályozás szerint :- beépíthetősége : max. 30%, oldalhatáron álló beépítési móddal- a telek D-i végében folyik a Mogyoródi-patak- a telek utcafronti első 35 méterén lehet építkezni- építménymagasság : max.4,5 m- kialakítható telkek legkisebb mérete : 800 m2- aszfaltozott utca- kíváló közlekedés, buszmegálló pár perc sétára- Fót egyik kedvelt környéke, a Nagytemplom közelében- óvoda, iskola, önkormányzat, rendőrség, állatorvosi rendelő, gyógyszertár sétatávolságra- számtalan vásárlási lehetőség (termelői piac, pékség, hentes, cukrászda) a közelben- csendes, biztonságos környékJelen besorolási állapota miatt ilyen kedvező az ára.Hasznosítási lehetőségei leendő tulajdonosa igényei szerint alkalmas állattartásra, lótartásra, kutyaiskola alapítására, raktárbázis, konténerpark, gazdasági épület építésére.Sokrétű gazdasági vállalkozási tevékenységre alkalmas addig is, amíg az átminősítése megtörténik Referencia szám: TK049556

E-mail küldése a hirdetőnek

Hibás hirdetés bejelentése

Sikeres elküldtük a hiba bejelentést.

Hirdető adatai

Besenyei Frigyes Ferenc
E-mail cím: besenyei.Frigyes@dh.hu
Telefonszám: +36704117440
Duna House
Hirdetés feladója: Ingatlaniroda
Ingatlaniroda: Duna House
E-mail cím: fot@dh.hu
Telefonszám: +36705774328

Képek



Térkép


Ajánlott ingatlanok

Külterületi

Eladó telek, Fót

Keresés azonosító alapján: HI-2483280
  • Fót Présház sor
  • Telekterület: 1 348 m²
  • Ár: 11 000 000 Ft (28 133 €)
  • Feltöltés dátuma: 2025.10.01.
  •  
Külterületi

Eladó telek, Budapest 3. ker.

Keresés azonosító alapján: HI-2483006
  • Budapest III. Solymárvölgyi út
  • Telekterület: 1 000 m²
  • Ár: 32 000 000 Ft (81 841 €)
  • Feltöltés dátuma: 2025.10.01.
  •  
Külterületi

Eladó telek, Fót

Keresés azonosító alapján: HI-2483238
  • Fót Sikátorpuszta telep
  • Telekterület: 3 000 m²
  • Ár: 27 200 000 Ft (69 565 €)
  • Feltöltés dátuma: 2025.10.01.
  •  
Külterületi

Eladó telek, Pécel

Keresés azonosító alapján: HI-2483348
  • Pécel Kálvin tér
  • Telekterület: 9 101 m²
  • Ár: 63 000 000 Ft (161 125 €)
  • Feltöltés dátuma: 2025.10.01.
  •  
Facebook
Blogger
Twitter
Tweets by hasznaltingatla
Flickr