Eladó Telek, Pápa

Ingatlan azonosító: HI-2570644

Veszprém megye - Pápa, Nyaralótelek


39 900 000 Ft (111 142 €)

  • Hirdetés feladója: Ingatlaniroda
  • Pontos cím: Pápa
  • Típus: Eladó
  • Belső irodai azonosító: M327603-5226108
  • Telekterület: 60 m² ( 17 négyszögöl )
  • Akadálymentesített: nincs
  • Légkondicionáló: nincs

Leírás

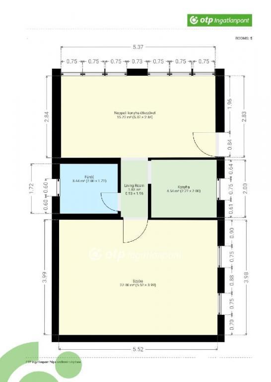
Eladó Veszprém vármegyében, Pápa város öreghegyi részén (Kilátó közvetlen szomszédságában) egy Kert megnevezésű 3 minőségi osztályú - 13,33 aranykorona értékű telken egy utcafronti, építési engedéllyel megépült 60 nm nettó alapterületű újépítési ház. Az ingatlan a legkorszerűbb alapanyagok ízléses felhasználásával, saját részre épült, viszont független okok miatt eladóvá vált. A vételár a teljes kulcsrakész állapotra vonatkozik, így a vevőnek van lehetősége beleszólni a további folyamatokba, például a melegburkolatok, fürdőszoba burkolatok kiválasztásához. Ehhez látványtervet, segítséget biztosítunk. A ház melegéről 3,5 kW-os klíma gondoskodik, valamint fali elektromos fűtőpanel fog gondoskodni a melegről. 3 rétegű nyílászárói, oldalsó, felső hőszigetelése felelős a legmagasabb energetikai értékről, így nagyon kis rezsiből kifűthető, hűthető lesz egész évben az ingatlan. Az elkészülése a szerződést követő 30 napon belül várható, ez függ a vásárló igényeitől is, viszont így saját stílus / ízlés szerint tudja kérni a további befejezést. A ház nagyobbik része Porotherm téglából épült beton alapra, valamint a 2 szoba külső falai könnyűszerkezetű építésűek a megfelelő melegtartás miatt. A házban vezetékes víz, szennyvíz elvezetés kialakításra került, gáz, csatorna nincs. Ha Önnek fontos a minőség, olcsó fenntarthatóság, stílus, ez az ingatlan a tökéletes választás a maga 2 szoba + nappali + konyha elosztásával (alaprajzon / 3D alaprajzon részletesen megtekinthető). Ha lakásból költözne, kisebb méretű, de hosszú ideig költségmentes családi házban gondolkozik, ne keressen tovább, megtalálta a tökéletes választást. Az ingatlan nem hitelezhető az övezet miatt, így csak teljes vételár birtokában tudjuk értékesíteni azt. A telek mérete 2949 nm, mely egy rendezett, gyümölcsfákkal beültetett telek, ahol melléképület/nyári konyha helyiség is található. Jelenleg füves kertkként használták gyümölcsössel, viszont méretei miatt akár veteményes kert kialakítására is alkalmas biztosítva az önfenntartó mindennapokat. Az OTP ingatlanpont teljeskörű segítségnyújtással áll vásárlói felé. Az ügylethez megbízható, korrekt árú ügyvédi közreműködést, teljeskörű díjmentes ügyintézést kínálunk. Ha felkeltette ez a kompromisszummentes teljesen újépítésű otthon a figyelmét, várom szeretettel megtisztelő érdeklődését bármely nap. 39900000 Ft Amennyiben az ingatlan felkeltette érdeklődését, esetleg bármivel kapcsolatban kérdése lenne, keressen Bizalommal! Verrasztó Edina: +36703156380 Referencia szám: M327603-HI

E-mail küldése a hirdetőnek

Hibás hirdetés bejelentése

Sikeres elküldtük a hiba bejelentést.

Hirdető adatai

Verrasztó Edina Irén
E-mail cím: edina.iren.verraszto@otpip.hu
Telefonszám: +36703156380
OTPip
Hirdetés feladója: Ingatlaniroda
Ingatlaniroda: OTPip
E-mail cím: papa@otpip.hu
Telefonszám: +36707081049

Képek



Térkép


Ajánlott ingatlanok

Nyaralótelek

Eladó Telek, Pápa

Keresés azonosító alapján: HI-2473355
  • Pápa
  • Telekterület: 20 m²
  • Ár: 8 800 000 Ft (24 513 €)
  • Feltöltés dátuma: 2025.09.12.
  •  
Nyaralótelek

Eladó Telek, Vaszar

Keresés azonosító alapján: HI-2512514
  • Vaszar
  • Telekterület: 1 075 m²
  • Ár: 1 500 000 Ft (4 178 €)
  • Feltöltés dátuma: 2025.12.14.
  •  
Családi ház

Eladó Ház, Nick

Keresés azonosító alapján: HI-2505548
  • Nick
  • Alapterület: 85 m²
  • Telekterület: 1 205 m²
  • Ár: 17 000 000 Ft (47 354 €)
  • Feltöltés dátuma: 2025.11.25.
  •  
Családi ház

Eladó Ház, Ravazd

Keresés azonosító alapján: HI-2506088
  • Ravazd
  • Alapterület: 111 m²
  • Telekterület: 867 m²
  • Ár: 99 990 000 Ft (278 524 €)
  • Feltöltés dátuma: 2025.11.26.
  • klímás
Facebook
Blogger
Twitter
Tweets by hasznaltingatla
Flickr