Eladó Telek, Szigethalom

Ingatlan azonosító: HI-2559253

Pest megye - Szigethalom, Lakóövezeti


53 500 000 Ft (147 383 €)

  • Hirdetés feladója: Ingatlaniroda
  • Pontos cím: Szigethalom
  • Típus: Eladó
  • Belső irodai azonosító: M318787-5194465
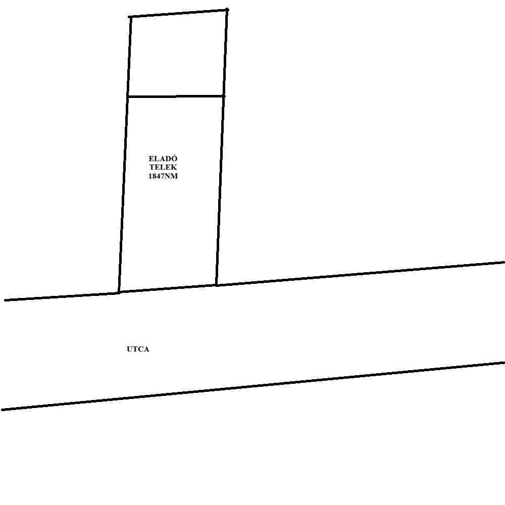
  • Telekterület: 1 847 m² ( 514 négyszögöl )
  • Villany: telken belül
  • Gáz: telken belül
  • Víz: telken belül
  • Panorámás: nincs

Leírás

Sokoldalúan beépíthető telek eladó Szigethalmon! Eladásra kínálunk egy telket, amely rugalmas beépítési lehetőségeivel számos beruházás számára ideális választás. A terület többféle funkció számára is kiválóan alkalmas: társasház építésére, családi ház kialakítására, vállalkozói szolgáltatások létesítésére, üzlethelyiség vagy vegyes funkciójú épület megvalósítására is. Akár 4 lakásos társasház is építhető rá, de 1 szolgáltatóegységnek is kell lennie, csak így adnak építési engedélyt. A telek környezete rendezett, megközelíthetősége kiváló, infrastruktúrája teljes, így akár azonnal megkezdhető a tervezés és a fejlesztés. Ha olyan ingatlanlehetőséget keres, amelyet saját igényeire formálhat, és biztos alapot ad bármilyen fejlesztési elképzeléshez, akkor ez a telek tökéletes választás. Referenciaszám : M318787 Övezeti besorolás Lakóövezet Hivatalos alapterület (m2) - (ház esetén felépítmény területe) 1 847 m2 Víz Telken belül Telek területi besorolása (osztálya) Belterület Villany Telken belül Telek szélessége (m) 23.5 Csatorna Telken belül Telek hosszúsága (m) 76.0 Gáz Telken belül Telek lejtése Enyhe Osztatlan közös tulajdon igen Utcai igen Használati szerződés igen Nyeles nem Elkerített igen Az OTP Ingatlanpont, mint egyetlen közvetlen banki hátterű ingatlanközvetítő társaság teljes körű ügyintézéssel áll az eladók és a vevők rendelkezésére! A kínálatunkból választott ingatlan finanszírozásához minősített fogyasztóbarát, piaci és kedvezményes hitel- és lízingkonstrukciókat kínálunk (lakásvásárlási hitel, CSOK plusz, szabad felhasználású hitel, babaváró hitel, céges hitelek, pályázatok, amennyiben az ügyfél és az ingatlan megfelel a feltételeknek). Az adásvételi szerződés megkötéséhez igény szerint megbízható ügyvédi közreműködést biztosítunk, és segítséget nyújtunk az adásvételhez kapcsolódó egyéb ügyek intézéséhez. Ha az új ingatlana megvásárlásához a jelenlegi ingatlanát el kell adnia, abban is szívesen segítünk. Referencia szám: M318787-HI

E-mail küldése a hirdetőnek

Hibás hirdetés bejelentése

Sikeres elküldtük a hiba bejelentést.

Hirdető adatai

Takács Zsuzsanna
E-mail cím: takacs.zsuzsanna@otpip.hu
Telefonszám: +36304953819
OTPip
Hirdetés feladója: Ingatlaniroda
Ingatlaniroda: OTPip
E-mail cím: budapest13.lehelutca@otpip.hu
Telefonszám: +36706136133

Képek



Térkép


Ajánlott ingatlanok

Lakóövezeti

Eladó Telek, Taksony

Keresés azonosító alapján: HI-2406834
  • Taksony
  • Telekterület: 716 m²
  • Ár: 40 000 000 Ft (110 193 €)
  • Feltöltés dátuma: 2025.04.26.
  •  
Lakóövezeti

Eladó Telek, Budapest 2. ker.

Keresés azonosító alapján: HI-2450702
  • Budapest II.
  • Telekterület: 914 m²
  • Ár: 151 000 000 Ft (415 978 €)
  • Feltöltés dátuma: 2025.07.28.
  •  
Lakóövezeti

Eladó Telek, Budajenő

Keresés azonosító alapján: HI-2558612
  • Budajenő
  • Telekterület: 860 m²
  • Ár: 54 900 000 Ft (151 240 €)
  • Feltöltés dátuma: 2026.04.06.
  •  
Lakóövezeti

Eladó Telek, Vácszentlászló

Keresés azonosító alapján: HI-2405113
  • Vácszentlászló
  • Telekterület: 795 m²
  • Ár: 13 980 000 Ft (38 512 €)
  • Feltöltés dátuma: 2025.04.22.
  •  
Facebook
Blogger
Twitter
Tweets by hasznaltingatla
Flickr