Eladó új építésű, 4 szobás családi ház, Veresegyház

Ingatlan azonosító: HI-2519041

Pest megye - Veresegyház, Családi ház


136 000 000 Ft (362 667 €)

  • Hirdetés feladója: Ingatlaniroda
  • Pontos cím: Veresegyház Pázmány utca
  • Típus: Eladó
  • Belső irodai azonosító: HZ017096-5118267
  • Alapterület: 115 m²
  • Telekterület: 698 m² ( 194 négyszögöl )
  • Építés éve: 2026
  • Egész szobák száma (12 m² felett): 3 db
  • Félszobák száma (6-12 m² között): 1 db
  • Fürdőszobák száma: 1 db
  • Ingatlan állapota: új építésű
  • Komfort: duplakomfortos
  • Fűtés: egyéb
  • Pince: nincs
  • Akadálymentesített: nincs
  • Napelem van?: nincs
  • Légkondicionáló: nincs

Leírás

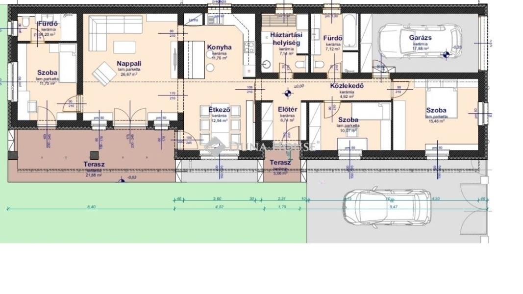
Újépítésű nappali + 3 szobás, teraszos családi ház Veresegyházon! Megvételre kínálok Veresegyház központjától karnyújtásnyira, a Fővég városrészben egy új építésű, nettó 115 nm-es, amerikai konyhás nappali + 3 szobás, dupla komfortos családi házat, gépkocsi beállóval egy 698 nm-es telken. A lakótér 115 nm + 29 nm és 3 nm terasz, + gépkocsi beálló. A családi élet színterét egy 51 nm-es amerikai konyhás nappali étkező biztosítja, privátszférát mindenki megtalálhatja a 3 külön nyíló hálószobában, a család kényelmét fokozza a 2 fürdőszoba, továbbá kamra, előtér, közlekedő is megtalálható a házban. Az ingatlan energiahatékonyságát a korszerű építőanyagok és technológia biztosítja. A házhoz Concept 8KW-os hőszivattyús rendszer tartozik, mely a fűtést és a melegvizet biztosítja, beépített melegvíz tárolóval. A hőleadás padlófűtéssel történik. A rendszerhez 1db fan-coil vagy 1db inverteres klímaberendezés (választható) kerül beszerelésre a nappaliban. Az átadás várható ideje 2026. június. A családi ház építése szerződéskötés után kezdődik. Kérésre teljes műszaki tartalmat, alaprajzot szívesen küldök! Igény esetén garázzsal is kérhető!Várom hívását! Amennyiben az ingatlan megfelelne az elvárásainak de nem rendelkezik a teljes vételárral? Ebben az esetben a CREDIPASS munkatársai kötelezettség- és díjmentes tanácsadással állnak Ügyfeleink rendelkezésére. Használja ki a jelenleg még érvényben lévő kedvező kamatozású hiteleket, CSOK-ot, illetékkedvezményt! Hétvégén is várom megtisztelő hívását, abban az esetben is ha csak hitelre lenne szüksége, Várom hívását, ha még el kell adnia ahhoz, hogy vásárolni tudjon! Várom megtisztelő hívását: Plachy Zsuzsa 30-8695401 Referencia szám: HZ017096

E-mail küldése a hirdetőnek

Hibás hirdetés bejelentése

Sikeres elküldtük a hiba bejelentést.

Hirdető adatai

Plachy Zsuzsa
E-mail cím: plachy.zsuzsa@dh.hu
Telefonszám: +36308695401
Duna House
Hirdetés feladója: Ingatlaniroda
Ingatlaniroda: Duna House
E-mail cím: marvany@dh.hu
Telefonszám: +3616102533

Képek



Térkép


Ajánlott ingatlanok

Családi ház

Eladó 5 szobás, teraszos családi ház, Erdőkertes

Keresés azonosító alapján: HI-2529167
  • Erdőkertes Géza utca
  • Alapterület: 127 m²
  • Telekterület: 999 m²
  • Ár: 114 900 000 Ft (306 400 €)
  • Feltöltés dátuma: 2026.02.03.
  •  
Családi ház

Eladó ház, Kóka

Keresés azonosító alapján: HI-2494392
  • Kóka Dózsa György út
  • Alapterület: 74 m²
  • Telekterület: 909 m²
  • Ár: 44 900 000 Ft (119 733 €)
  • Feltöltés dátuma: 2025.10.29.
  •  
Családi ház

Eladó ház, Budapest 17. ker. 3 % Otthon Start Program

Keresés azonosító alapján: HI-2481593
  • Budapest XVII. Zrínyi utca
  • Alapterület: 140 m²
  • Telekterület: 441 m²
  • Ár: 129 000 000 Ft (344 000 €)
  • Feltöltés dátuma: 2025.09.29.
  •  
Családi ház

Eladó ház, Veresegyház

Keresés azonosító alapján: HI-2437398
  • Veresegyház Csomádi út
  • Alapterület: 250 m²
  • Telekterület: 788 m²
  • Ár: 157 000 000 Ft (418 667 €)
  • Feltöltés dátuma: 2025.07.02.
  •  
Facebook
Blogger
Twitter
Tweets by hasznaltingatla
Flickr