Eladó új építésű, körbejárható családi ház, Őrbottyán

Ingatlan azonosító: HI-2489532

Pest megye - Őrbottyán, Családi ház


97 500 000 Ft (267 857 €)

  • Hirdetés feladója: Ingatlaniroda
  • Pontos cím: Őrbottyán Radnóti Miklós utca
  • Típus: Eladó
  • Belső irodai azonosító: HZ074033-5055083
  • Alapterület: 93 m²
  • Telekterület: 387 m² ( 108 négyszögöl )
  • Építés éve: 2025
  • Egész szobák száma (12 m² felett): 4 db
  • Félszobák száma (6-12 m² között): 0 db
  • Fürdőszobák száma: 1 db
  • Ingatlan állapota: új építésű
  • Komfort: duplakomfortos
  • Fűtés: egyéb
  • Pince: nincs
  • Akadálymentesített: nincs
  • Napelem van?: nincs
  • Légkondicionáló: nincs

Leírás

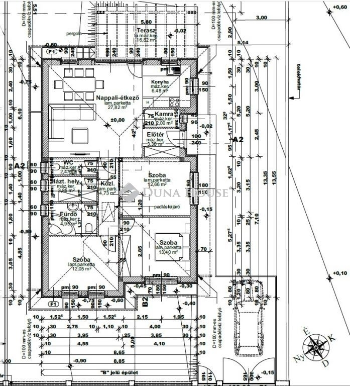
Újépítésű családi ház nappali+3 szoba, duplakomfort, lakóparki környezetben Őrbottyánban Eladó Őrbottyán egyik újonnan kialakított lakóparkjában egy családi ház, amelyben van egy amerikai konyhás nappali, és 3 hálószoba. A modern elrendezés tágas, világos tereket kínál, így ideális választás családok számára. Helyiségek: 1 Nappali+amerikai konyha 34.3 m2 2 Kamra 2 m2 3 Előtér 3.3 m2 4 WC 2.47 m2 5 Háztartási helyiség 3.85 m2 6 Fürdő WC-vel 4.95 m2 7 Közlekedő 4.73 m2 8 Szoba 12.66 m2 9 Szoba 13.4 m2 10 Szoba 12.05 m2 A környék csendes és rendezett, a közelben iskola, óvoda, bolt és egészségház is elérhető. Budapest könnyen megközelíthető, autóval és tömegközlekedéssel egyaránt, így a nyugodt otthoni környezet mellett a főváros közelsége is biztosított. Ez az ingatlan tökéletes választás mindazoknak, akik új otthont keresnek biztonságos, családbarát környezetben. Ha kérdése van, vagy szeretné megnézni, hívjon bizalommal! Amennyiben az ingatlan megfelelne az elvárásainak de nem rendelkezik a teljes vételárral? Ebben az esetben a CREDIPASS munkatársai kötelezettség- és díjmentes tanácsadással állnak Ügyfeleink rendelkezésére. Használja ki a jelenleg még érvényben lévő kedvező kamatozású hiteleket, CSOK-ot, illetékkedvezményt! Hétvégén is várom megtisztelő hívását, abban az esetben is ha csak hitelre lenne szüksége, Várom hívását, ha még el kell adnia ahhoz, hogy vásárolni tudjon! Várom megtisztelő hívását: Plachy Zsuzsa 30-8695401 Referencia szám: HZ074033

E-mail küldése a hirdetőnek

Hibás hirdetés bejelentése

Sikeres elküldtük a hiba bejelentést.

Hirdető adatai

Plachy Zsuzsa
E-mail cím: plachy.zsuzsa@dh.hu
Telefonszám: +36308695401
Duna House
Hirdetés feladója: Ingatlaniroda
Ingatlaniroda: Duna House
E-mail cím: marvany@dh.hu
Telefonszám: +3616102533

Képek



Térkép


Ajánlott ingatlanok

Családi ház

Felújított 2 generációs ház Bagon, jó környéken

Keresés azonosító alapján: HI-2558907
  • Bag Petőfi tér
  • Alapterület: 124 m²
  • Telekterület: 1 076 m²
  • Ár: 79 900 000 Ft (219 505 €)
  • Feltöltés dátuma: 2026.04.08.
  •  
Családi ház

Eladó 5 szobás, napfényes otthon, Budapest 17. ker.

Keresés azonosító alapján: HI-2526820
  • Budapest XVII. Nyomdász utca
  • Alapterület: 112 m²
  • Telekterület: 613 m²
  • Ár: 138 000 000 Ft (379 121 €)
  • Feltöltés dátuma: 2026.01.28.
  •  
Családi ház

Eladó felújított nappali+3 szobás ház, Tápióság

Keresés azonosító alapján: HI-2451123
  • Tápióság József utca
  • Alapterület: 72 m²
  • Telekterület: 680 m²
  • Ár: 71 500 000 Ft (196 429 €)
  • Feltöltés dátuma: 2025.07.30.
  • klímás
Családi ház
  • Veresegyház Móricz Zsigmond utca
  • Alapterület: 164 m²
  • Telekterület: 856 m²
  • Ár: 145 000 000 Ft (398 352 €)
  • Feltöltés dátuma: 2025.11.07.
  •  
Facebook
Blogger
Twitter
Tweets by hasznaltingatla
Flickr