Eladó új építésű, önálló családi ház, nappali+4 szoba, nagyobb telek, Dány

Ingatlan azonosító: HI-2553571

Pest megye - Dány, Családi ház


79 900 000 Ft (205 398 €)

  • Hirdetés feladója: Ingatlaniroda
  • Pontos cím: Dány Arany János utca
  • Típus: Eladó
  • Belső irodai azonosító: HZ035861-5182978
  • Alapterület: 116 m²
  • Telekterület: 966 m² ( 269 négyszögöl )
  • Építés éve: 2026
  • Egész szobák száma (12 m² felett): 5 db
  • Félszobák száma (6-12 m² között): 0 db
  • Fürdőszobák száma: 2 db
  • Ingatlan állapota: új építésű
  • Komfort: duplakomfortos
  • Fűtés: egyéb
  • Pince: nincs
  • Akadálymentesített: nincs
  • Napelem van?: nincs
  • Légkondicionáló: nincs

Leírás

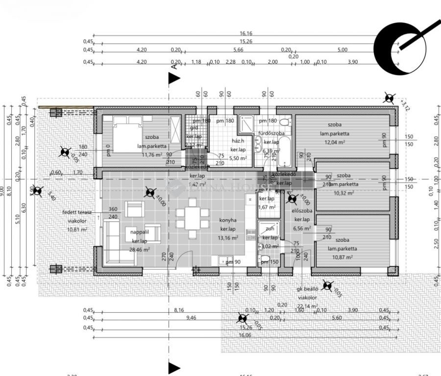
Dányban eladó, újépítésű, 4 szoba + nappalis, önálló családi ház, dupla fürdőszobával, hőszivattyús fűtéssel, 966 nm-es telekkel! Belső nettó hasznos élhető tér 116.39 nm! + fedett terasz 10.81 nm Telek területe 966 m2, 17 méter széles és 56 méter hosszú. Várható átadás : 2026.10 hó10 % önerővel szerződhető! Helyiségeit tekintve nagyon jó elosztással rendelkezik, alábbiakban sorolom fel négyzetméterek megjelölésével: - előszoba (6.56 nm) - 4 önálló bejáratú szoba (11.76 nm, 12.04 nm, 10.32 nm, 10.87 nm) - teraszkapcsolatos nagy nappali étkezővel, konyhával (41.62 nm) - közlekedő (4.52 nm) - háztartási helyiség (5.50 nm) - fürdőszoba + wc (6.39 nm) - zuhanyzó + wc (3.02 nm) - kamra (1.67 nm) - gardrób (2.12 nm) Műszaki leírás: - hőszivattyús fűtés, padlófűtéssel - klíma a nappaliban - burkolat 6000 ft / nm (hideg, meleg) - 15 cm homlokzati hőszigetelés - 10 cm lábazati hőszigetelés - 30 cm üveggyapot tető hőszigetelés - nyílászárók: típus műanyag szerkezetek, 3 rtg.hőszig.üveggel - festés: belsőben páraáteresztő falfestékkel, színezve igény szerint - csaptelepek 15 000 ft / db - beltéri ajtók 60 000 ft / db - alföldi márkájú szaniterek választhatóak Dány egy csendes, barátságos település Pest vármegyében, a Gödöllői-dombság lankái között. A község ideális választás mindazok számára, akik nyugodt, vidéki környezetben szeretnének élni, ugyanakkor fontos számukra a főváros közelsége Budapest autóval körülbelül 40-50 perc alatt elérhető. A település rendezett, folyamatosan fejlődő infrastruktúrával rendelkezik: megtalálható óvoda, iskola, orvosi rendelő, valamint alapvető kereskedelmi és szolgáltató egységek. A közösségi élet aktív, a helyi rendezvények és hagyományőrző programok erősítik az összetartó lakóközösséget. Dány különösen vonzó lehet családok számára, hiszen a nyugodt környezet, a tiszta levegő és a zöldterületek kiváló életminőséget biztosítanak. A természet közelsége kirándulási és kikapcsolódási lehetőségeket kínál, miközben a mindennapi élethez szükséges szolgáltatások könnyen elérhetők. Összességében Dány ideális választás azoknak, akik a város zajától távol, mégis jól megközelíthető helyen keresnek otthont.Amennyiben felkeltettem érdeklődésed keress nyugodtan, és gyere, nézd meg velem az ingatlant! Hitel ügyintézés, eladás és vétel teljes körű ügyintézése, ingyenes tanácsadás, értékbecslés, megbízható ügyvédi háttér biztosítása. Amennyiben az ingatlan megfelelne az elvárásainak de nem rendelkezik a teljes vételárral? Ebben az esetben a CREDIPASS munkatársai kötelezettség- és díjmentes tanácsadással állnak Ügyfeleink rendelkezésére. Használja ki a jelenleg még érvényben lévő kedvező kamatozású hiteleket, CSOK-ot, illetékkedvezményt! Hétvégén is várom megtisztelő hívását, abban az esetben is ha csak hitelre lenne szüksége, Várom hívását, ha még el kell adnia ahhoz, hogy vásárolni tudjon! Várom megtisztelő hívását: Plachy Zsuzsa 30-8695401 Referencia szám: HZ035861

E-mail küldése a hirdetőnek

Hibás hirdetés bejelentése

Sikeres elküldtük a hiba bejelentést.

Hirdető adatai

Plachy Zsuzsa
E-mail cím: plachy.zsuzsa@dh.hu
Telefonszám: +36308695401
Duna House
Hirdetés feladója: Ingatlaniroda
Ingatlaniroda: Duna House
E-mail cím: marvany@dh.hu
Telefonszám: +3616102533

Képek



Térkép


Ajánlott ingatlanok

Családi ház

Eladó 5 szobás, napfényes otthon, Budapest 17. ker.

Keresés azonosító alapján: HI-2526820
  • Budapest XVII. Nyomdász utca
  • Alapterület: 112 m²
  • Telekterület: 613 m²
  • Ár: 138 000 000 Ft (354 756 €)
  • Feltöltés dátuma: 2026.01.28.
  •  
Családi ház

Eladó felújított, 3 szobás családi ház, Budapest 16. ker.

Keresés azonosító alapján: HI-2548985
  • Budapest XVI. Nap utca
  • Alapterület: 71 m²
  • Telekterület: 259 m²
  • Ár: 124 900 000 Ft (321 080 €)
  • Feltöltés dátuma: 2026.03.12.
  •  
Családi ház

Eladó ház, Budapest 17. ker. 3 % Otthon Start Program

Keresés azonosító alapján: HI-2481593
  • Budapest XVII. Zrínyi utca
  • Alapterület: 140 m²
  • Telekterület: 441 m²
  • Ár: 129 000 000 Ft (331 620 €)
  • Feltöltés dátuma: 2025.09.29.
  •  
Családi ház

Eladó nappali+2 szobás, teraszos, klímás ház, Dány

Keresés azonosító alapján: HI-2551568
  • Dány Kandó Kálmán utca
  • Alapterület: 45 m²
  • Telekterület: 1 000 m²
  • Ár: 46 000 000 Ft (118 252 €)
  • Feltöltés dátuma: 2026.03.18.
  • klímás
Facebook
Blogger
Twitter
Tweets by hasznaltingatla
Flickr