Eladó Üzlethelyiség, Alsózsolca

Ingatlan azonosító: HI-2509447

Borsod-Abaúj-Zemplén megye - Alsózsolca, Utcai bejárattal


40 000 000 Ft (104 439 €)

  • Hirdetés feladója: Ingatlaniroda
  • Pontos cím: Alsózsolca
  • Típus: Eladó
  • Belső irodai azonosító: M316685-5099160
  • Építés éve: 1970
  • Fűtés: gáz (konvektor)
  • Napelem van?: nincs

Leírás

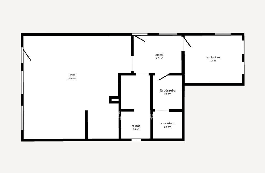
Alsózsolcán a központi részen főút mellett kínálunk eladásra egy bejáratott 25 éve folyamatosan sikeresen működő üzlethelyiséget ami kiváló befektetési vagy vállalkozási lehetőség. Az ingatlan jelenleg is üzemel de rövid időn belül birtokba vehető és azonnal kihasználható. Az üzlet egyik legnagyobb vonzereje a saját tulajdonú parkoló ami garantálja az ügyfelek kényelmes megközelítését a forgalmas főút mellett. A 72 négyzetméteres alapterület rugalmasan alakítható és számos üzleti célra alkalmas lehet tökéletes helyszín szépségszalonnak fodrászatnak kozmetikai szalonnak vagy éppen kis ABC-nek húsboltnak vagy más élelmiszerboltnak. Amennyiben más cél merül fel remek lehetőség rejlik benne a lakássá alakításra is mivel Zsolca központi részén fekszik így kényelmes és központi lakhatást is biztosíthat a jövendőbeli tulajdonosnak. OTP Banki hátterünknek köszönhetően finanszírozási igényekben (pl. Otthon Start Hitelprogram , Babaváró, Falusi CSOK, CSOK Plusz, Lakáshitel, Személyi kölcsön stb.), illetve biztosítások tekintetében is díjmentesen, soron kívüli ügyintézéssel segítem ügyfeleim! Referenciaszám:M316685

E-mail küldése a hirdetőnek

Hibás hirdetés bejelentése

Sikeres elküldtük a hiba bejelentést.

Hirdető adatai

Kégl Zsolt
E-mail cím: zsolt.kegl@otpip.hu
Telefonszám: +36-70-201-5061
OTPip
Hirdetés feladója: Ingatlaniroda
Ingatlaniroda: OTPip
E-mail cím: miskolc.szemere@otpip.hu
Telefonszám: +36-70-606-0062

Képek



Térkép


Ajánlott ingatlanok

Utcai bejárattal

Eladó Üzlethelyiség, Múcsony

Keresés azonosító alapján: HI-2490485
  • Múcsony
  • Alapterület: 80 m²
  • Ár: 23 500 000 Ft (61 358 €)
  • Feltöltés dátuma: 2025.10.17.
  •  
Családi ház

Eladó Ház, Miskolc

Keresés azonosító alapján: HI-2489024
  • Miskolc
  • Alapterület: 120 m²
  • Telekterület: 407 m²
  • Ár: 64 900 000 Ft (169 452 €)
  • Feltöltés dátuma: 2025.10.12.
  •  
Családi ház

Eladó Ház, Miskolc

Keresés azonosító alapján: HI-2550889
  • Miskolc
  • Alapterület: 157 m²
  • Telekterület: 1 959 m²
  • Ár: 79 000 000 Ft (206 266 €)
  • Feltöltés dátuma: 2026.03.16.
  •  
Családi ház

Eladó Ház, Miskolc

Keresés azonosító alapján: HI-2427697
  • Miskolc
  • Alapterület: 338 m²
  • Telekterület: 1 059 m²
  • Ár: 149 000 000 Ft (389 034 €)
  • Feltöltés dátuma: 2025.06.04.
  •  
Facebook
Blogger
Twitter
Tweets by hasznaltingatla
Flickr