Eladó Üzlethelyiség, Püspökladány

Ingatlan azonosító: HI-2500439

Hajdú-Bihar megye - Püspökladány, Utcai bejárattal


148 900 000 Ft (387 760 €)

  • Hirdetés feladója: Ingatlaniroda
  • Pontos cím: Püspökladány
  • Típus: Eladó
  • Belső irodai azonosító: M314574-5082062
  • Építés éve: 2001
  • Fűtés: gáz (cirko)
  • Napelem van?: nincs

Leírás

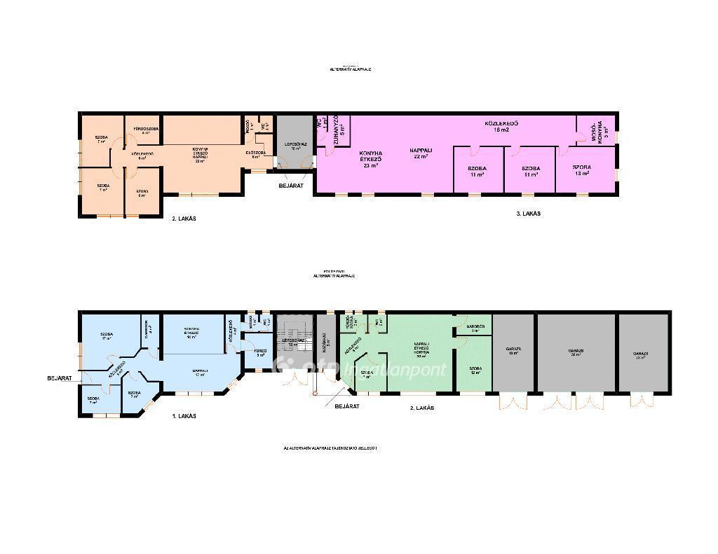
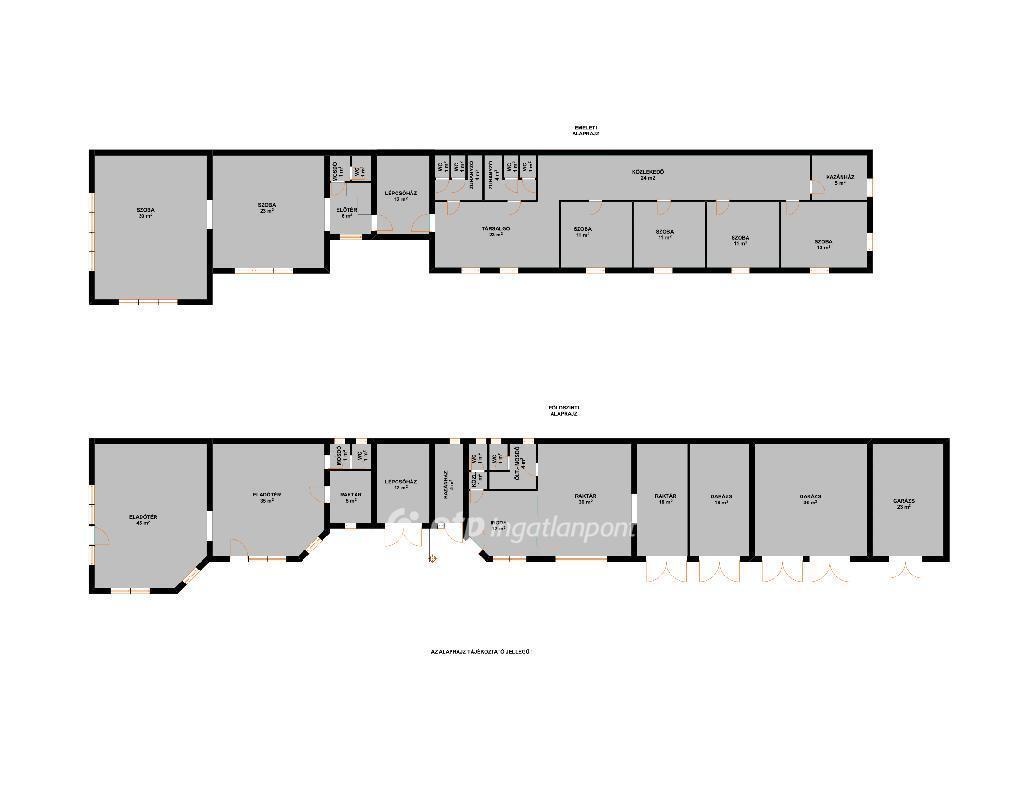
Eladó Püspökladányban egy sokoldalúan hasznosítható üzlethelyiség! Kiváló adottságokkal rendelkező földszintes + tetőtér beépítéses épület, amely számos lehetőséget kínál üzleti és lakófunkcióra egyaránt. Az épület összesen 407 m2 beépített területtel rendelkezik, több különálló helyiségből áll, így akár üzletek, irodák, műhelyek vagy akár 4 lakás is kialakítható benne. Főbb jellemzők: - Telek mérete és beépíthetősége: 830 m2 és 40% - Beépített terület: 236 m2 (földszint) + 171 m2 (tetőtér) - Használati lehetőségek: üzletek, irodák, szolgáltatói egységek, lakások - Parkolás: Telken belül 5 saját parkolóhely - Elhelyezkedés: sík terepen, központi lokációban, oldalhatáron álló épület Kialakítás és helyiségek: Földszint: - 2 db üzlethelyiség - Raktárak - Különálló vizesblokkok (mosdók, WC-k) - Garázsok és műhelyek Tetőtér: - Különálló szobák - Üzlethelyiségek - Különálló mosdók, WC-k Műszaki adatok és felszereltség: - Falazat: tégla - Födém: monolit vasbeton - Tető: nyeregtető, cserépfedéssel - Nyílászárók: fa és fém szerkezetek - Fűtés: gázkazán, melegvizes radiátorok, vegyestüzelésű kazán egy 1000 literes puffertartállyal, hűtő-fűtő klíma - Közművek: teljes közművesítés (víz, csatorna, gáz, villany) Az épület többféle funkcióra is alkalmas, így kiváló lehetőség vállalkozások, befektetők és ingatlanfejlesztők számára is. Az elrendezésnek és az építési szabályoknak megfelelően akár 4 önálló lakás, vagy több különálló üzlet és iroda is kialakítható benne. A hirdetésben tervezett látványképek is meg vannak jelenítve, hogy segítsenek a végleges megjelenés pontosabb elképzelésében! További információért hívjon bizalommal akár hétvégén is. Megtekintésre telefonos egyeztetés alapján van lehetőség. Kedvezményes kamatozású lakásvásárlási, felújítási hitelek, OTTHON START valamint CSOK és Babaváró ügyintézés az OTP hátterével irodánkban.

E-mail küldése a hirdetőnek

Hibás hirdetés bejelentése

Sikeres elküldtük a hiba bejelentést.

Hirdető adatai

Mester Tibor
E-mail cím: tibor.mester@otpip.hu
Telefonszám: +36-20-806-7007
OTPip
Hirdetés feladója: Ingatlaniroda
Ingatlaniroda: OTPip
E-mail cím: debrecenkurtos@otpip.hu
Telefonszám: +36-20-528-8700

Képek



Térkép


Ajánlott ingatlanok

Utcai bejárattal

Eladó Üzlethelyiség, Berettyóújfalu

Keresés azonosító alapján: HI-2475454
  • Berettyóújfalu
  • Alapterület: 30 m²
  • Ár: 29 900 000 Ft (77 865 €)
  • Feltöltés dátuma: 2025.09.18.
  •  
Családi ház

Eladó Ház, Zsáka

Keresés azonosító alapján: HI-2510972
  • Zsáka
  • Alapterület: 80 m²
  • Telekterület: 2 035 m²
  • Ár: 7 900 000 Ft (20 573 €)
  • Feltöltés dátuma: 2025.12.09.
  •  
Vályogház

Eladó Ház, Sáránd

Keresés azonosító alapján: HI-2459271
  • Sáránd
  • Alapterület: 80 m²
  • Telekterület: 2 270 m²
  • Ár: 38 000 000 Ft (98 958 €)
  • Feltöltés dátuma: 2025.08.07.
  •  
Vályogház

Eladó Ház, Bakonszeg

Keresés azonosító alapján: HI-2458924
  • Bakonszeg
  • Alapterület: 66 m²
  • Telekterület: 1 103 m²
  • Ár: 20 900 000 Ft (54 427 €)
  • Feltöltés dátuma: 2025.08.06.
  •  
Facebook
Blogger
Twitter
Tweets by hasznaltingatla
Flickr