Gerjenben a Duna partján, nagy lehetőségekkel teli ingatlan eladó!

Ingatlan azonosító: HI-2531908

Tolna megye - Gerjen, Étterem, vendéglő...


75 000 000 Ft (210 674 €)

  • Hirdetés feladója: Ingatlaniroda
  • Pontos cím: Gerjen
  • Típus: Eladó
  • Belső irodai azonosító: 3620596-5055037
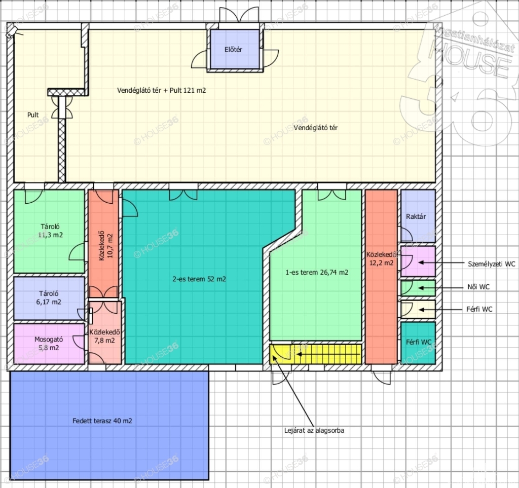
  • Alapterület: 347 m²
  • Fűtés: egyéb
  • Akadálymentesített: nincs
  • Napelem van?: nincs
  • Légkondicionáló: nincs

Leírás

Tökéletes befektetés azok számára, akik a fejlődő Gerjenben szeretnének üzletet nyitni! Ez a 347 m2-es 2 szintes ( földszint, alagsor) ingatlan 560 m2-es telken helyezkedik el a falu központjában. Főbb jellemzők: -kiemelt elhelyezkedés a paksi beruházások és a Kalocsa-Gerjen híd miatt -121 m2-es vendéglátó tér és további, külön megközelíthető privát termek (27 m2 és 52 m2) - további helyiségek: raktár, konyha, személyzeti és vendég WC-k, mosogató -75 m2-es alagsor kazánházzal és raktárhelyiségekkel -fűtése vegyes tüzelésű kazánról és gázkazánról, melegvíz ellátása gázbojlerrel biztosított -2 db hűtő-fűtő klíma (2022-ben beszerelve) -nyílászárói műanyagszerkezet, hőszigetelő üvegezéssel -teljes felszereléssel együtt megvásárolható (hűtőkamra, hűtőpult, stb.) -mobilgarázs az udvaron, benne a vételárban! Az ingatlan ideális vendéglátó egység, rendezvényközpont vagy más üzleti célra. A HOUSE36 kínálatában található összes ingatlannal kapcsolatban tudok felvilágosítást nyújtani! További képekért és információért hívjon bizalommal! Szolgáltatásaink Kereső ügyfeleink számára INGYENESEK! Az iroda legfrissebb, aktuális kínálatát a HOUSE36 saját weboldalán találja!

E-mail küldése a hirdetőnek

Hibás hirdetés bejelentése

Sikeres elküldtük a hiba bejelentést.

Hirdető adatai

Kecskés Imola
E-mail cím: imola.kecskes@h36.hu
Telefonszám: +36704099549
Hirdetés feladója: Ingatlaniroda

Képek



Térkép


Ajánlott ingatlanok

Étterem, vendéglő...

Eladó egy gyönyörű kastély az ország szívében!

Keresés azonosító alapján: HI-2531894
  • Csengőd
  • Alapterület: 900 m²
  • Ár: 430 000 000 Ft (1 207 865 €)
  • Feltöltés dátuma: 2026.02.04.
  •  
Családi ház

Minden igényt kielégítő családi ház eladó Kerekegyházán!

Keresés azonosító alapján: HI-2556390
  • Kerekegyháza
  • Alapterület: 180 m²
  • Telekterület: 1 040 m²
  • Ár: 99 500 000 Ft (279 494 €)
  • Feltöltés dátuma: 2026.03.30.
  •  
Családi ház

Tágas családi ház Kadafalva szívében, remek adottságokkal!

Keresés azonosító alapján: HI-2531839
  • Kecskemét
  • Alapterület: 180 m²
  • Telekterület: 848 m²
  • Ár: 54 900 000 Ft (154 213 €)
  • Feltöltés dátuma: 2026.02.04.
  •  
Családi ház

Rezsibarát, napelemes családi ház Lajosmizsén eladó!

Keresés azonosító alapján: HI-2531907
  • Lajosmizse
  • Alapterület: 70 m²
  • Telekterület: 728 m²
  • Ár: 43 500 000 Ft (122 191 €)
  • Feltöltés dátuma: 2026.02.04.
  •  
Facebook
Blogger
Twitter
Tweets by hasznaltingatla
Flickr