Helvécián önálló telken családi ház eladó!

Ingatlan azonosító: HI-2532112

Bács-Kiskun megye - Kecskemét, Családi ház


72 000 000 Ft (190 476 €)

  • Hirdetés feladója: Ingatlaniroda
  • Pontos cím: Kecskemét
  • Típus: Eladó
  • Belső irodai azonosító: 3619808-4940905
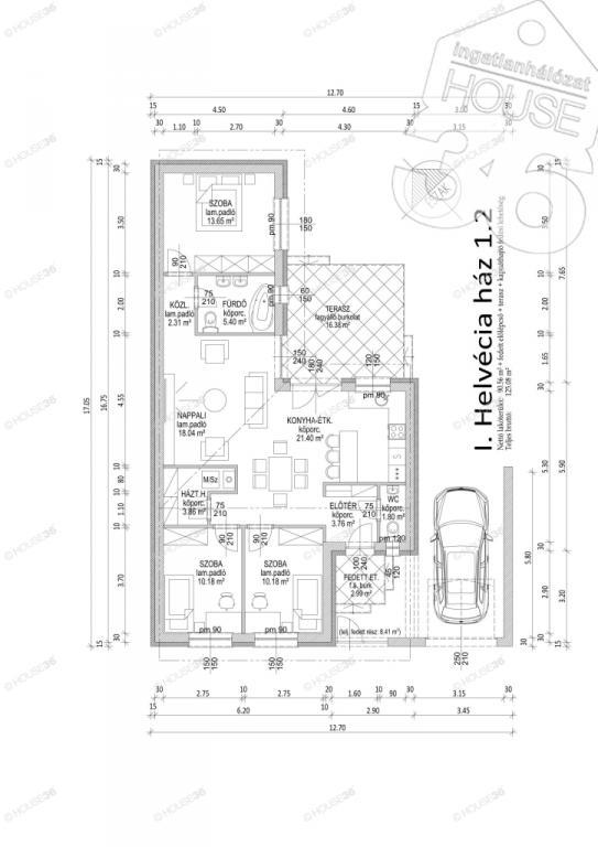
  • Alapterület: 90 m²
  • Telekterület: 400 m² ( 111 négyszögöl )
  • Építés éve: 2025
  • Egész szobák száma (12 m² felett): 4 db
  • Félszobák száma (6-12 m² között): 0 db
  • Ingatlan állapota: új építésű
  • Fűtés: gáz (cirko)
  • Pince: nincs
  • Akadálymentesített: nincs
  • Energiatanúsítvány: A+
  • Napelem van?: nincs
  • Légkondicionáló: van

Leírás

Kecskeméthez közel, Helvécián a központtól gyors, új úton, 10 perc alatt megközelíthető részen kínálunk eladó házakat!!! Kiváló elhelyezkedésű, új építésű környéken kínáljuk ezt a90 m2-es, Nappali + 3 szobás prémium kategóriás családi házat, önálló 400 m2-es telken fedett beállóval. Aszfaltozott út készül hamarosan./9 Egyéb paraméterek: - nappali + 3 szoba - nettó 90 m2 - oldalhatáros építési mód -Wienerberger Porotherm X-Therm tégla (+ 40 % hőtartás) - 15 cm szigetelés - 400 m2 -es összközműves önálló telek - hőszivattyús fűtésrendszer - padlófűtés - prémium minőségű műanyag nyílászárók - szaniterek 1 millió forintig az árban - hideg - meleg burkolatok 9000.-/ m2 - ár garancia - idő garancia - várható átadás szerződéskötéstől számított 8-10hónap - módosítható tervek AZ ÁR AZ ÉPÍTÉSI TELEK ÁRÁT IS TARTALMAZZA! A képek az egyik referenciaházban készültek!!!! ​ CSAK NÁLUNK KERESSE!!! ​ RÉGI MEGY, ÚJ JÖN? KERESSEN BIZALOMMAL!! SEGÍTEK MEGOLDANI!! Figyelem, az adatlap megbízóinktól kapott adatok alapján készültek, pontosságáért felelősséget nem tudunk vállalni! A HOUSE36 kínálatában található összes ingatlannal kapcsolatban tudok felvilágosítást nyújtani. Szolgáltatásaink ügyfeleink részére díjmentesek! Az iroda legfrissebb, aktuális kínálatát a HOUSE36 saját weboldalán találja!

E-mail küldése a hirdetőnek

Hibás hirdetés bejelentése

Sikeres elküldtük a hiba bejelentést.

Hirdető adatai

Seres Alexandra
E-mail cím: alexandra.seres@h36.hu
Telefonszám: +36707982511
Hirdetés feladója: Ingatlaniroda

Képek



Térkép


Ajánlott ingatlanok

Családi ház
  • Kiskunfélegyháza
  • Alapterület: 92 m²
  • Telekterület: 847 m²
  • Ár: 49 900 000 Ft (132 011 €)
  • Feltöltés dátuma: 2026.02.04.
  • klímás
Családi ház

Természetközeli nyugalom, modern kényelemmel!

Keresés azonosító alapján: HI-2532105
  • Kiskunfélegyháza
  • Alapterület: 100 m²
  • Telekterület: 2 877 m²
  • Ár: 35 000 000 Ft (92 593 €)
  • Feltöltés dátuma: 2026.02.04.
  •  
Családi ház

Eladó Lakás saját kézműves pékséggel és üzlettel!

Keresés azonosító alapján: HI-2532118
  • Kiskunfélegyháza
  • Alapterület: 72 m²
  • Telekterület: 772 m²
  • Ár: 54 990 000 Ft (145 476 €)
  • Feltöltés dátuma: 2026.02.04.
  •  
Családi ház

Zöldövezetben, hangulatos családi ház eladó!

Keresés azonosító alapján: HI-2532111
  • Kiskunfélegyháza
  • Alapterület: 100 m²
  • Telekterület: 14 761 m²
  • Ár: 32 900 000 Ft (87 037 €)
  • Feltöltés dátuma: 2026.02.04.
  •  
Facebook
Blogger
Twitter
Tweets by hasznaltingatla
Flickr