Ipari használatú csarnok és hozzá tartozó iroda épület Kecskeméten eladó!

Ingatlan azonosító: HI-2492950

Bács-Kiskun megye - Kecskemét, Csarnok


500 000 000 Ft (1 285 347 €)

  • Hirdetés feladója: Ingatlaniroda
  • Pontos cím: Kecskemét
  • Típus: Eladó
  • Belső irodai azonosító: 3620681-5067915
  • Alapterület: 540 m²
  • Fűtés: egyéb
  • Napelem van?: nincs

Leírás

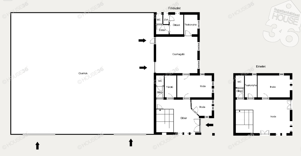
Kecskeméten 540 m2-es ipari használatú épület 1457 m2-es telken eladó! Jellemzők: 540 m2 felépítmény 2010-es építés kiépített informatikai, tűzjelző, telefonközpontés riasztó hálózat (optikai szálas internet kiépítve) összközmű tűzálló festékkel festett csarnokváz, Tűzi-víz csapok kiépítve, kiépített tűzoltósági távfelügyelet 2 db videó kaputelefon elektromos személy illetve toló kapu automata öntöző rendszer parkosított udvar műanyag nyílászárók, UVálló védő fóliával ellátva 2 tea konyha kiépített öltöző, fürdővel bemutató/csomagoló terem 4 iroda Hörmann és Tormax kapuk a csarnokon csarnokba további öltöző létesítési lehetőség 18 cm vastag ipari beton a csarnokban központi szünetmentes áramforrás rendszer kiépítve (készülék nélkül) elektromos rejtett redőny előkészítve klimatizált irodák térköves udvar lehajtható zászló rudak az udvarban elektromos áram bővítési lehetőség 6 parkoló Teherautóval könnyen megközelíthető ​ Figyelem az adatlap megbízóinktól kapott adatok alapján készült,pontosságáért felelősséget nem tudunk vállalni! ​ A HOUSE36 kínálatában található összes ingatlannal kapcsolatban tudok felvilágosítást nyújtani! Hívjon bizalommal! Szolgáltatásaink Kereső ügyfeleink számára INGYENESEK! ​ Az iroda legfrissebb, aktuális kínálatát a HOUSE36 saját weboldalán találja!

E-mail küldése a hirdetőnek

Hibás hirdetés bejelentése

Sikeres elküldtük a hiba bejelentést.

Hirdető adatai

Borosné Hajnalka
E-mail cím: hajnalka.borosne@h36.hu
Telefonszám: +36706497985
Hirdetés feladója: Ingatlaniroda

Képek



Térkép


Ajánlott ingatlanok

Csarnok

ELADÓ telephely Kecskeméten!

Keresés azonosító alapján: HI-2452612
  • Kecskemét
  • Alapterület: 590 m²
  • Ár: 379 900 000 Ft (976 607 €)
  • Feltöltés dátuma: 2025.08.02.
  •  
Könnyűszerkezetes ház

Nappali + 2 szobás ház eladó Helvécián 2026-os átadással!

Keresés azonosító alapján: HI-2494294
  • Kecskemét
  • Alapterület: 60 m²
  • Telekterület: 350 m²
  • Ár: 57 900 000 Ft (148 843 €)
  • Feltöltés dátuma: 2025.10.28.
  •  
Könnyűszerkezetes ház
  • Kecskemét
  • Alapterület: 64 m²
  • Telekterület: 330 m²
  • Ár: 63 900 000 Ft (164 267 €)
  • Feltöltés dátuma: 2025.08.29.
  •  
Családi ház

Újépítés dupla garázzsal

Keresés azonosító alapján: HI-2452579
  • Kecskemét
  • Alapterület: 96 m²
  • Telekterület: 481 m²
  • Ár: 114 900 000 Ft (295 373 €)
  • Feltöltés dátuma: 2025.08.02.
  •  
Facebook
Blogger
Twitter
Tweets by hasznaltingatla
Flickr