Katonatelepen 2025-ben épült családi ház eladó

Ingatlan azonosító: HI-2515383

Bács-Kiskun megye - Kecskemét, Családi ház


82 990 000 Ft (215 558 €)

  • Hirdetés feladója: Ingatlaniroda
  • Pontos cím: Kecskemét
  • Típus: Eladó
  • Belső irodai azonosító: HZ028178-5114425
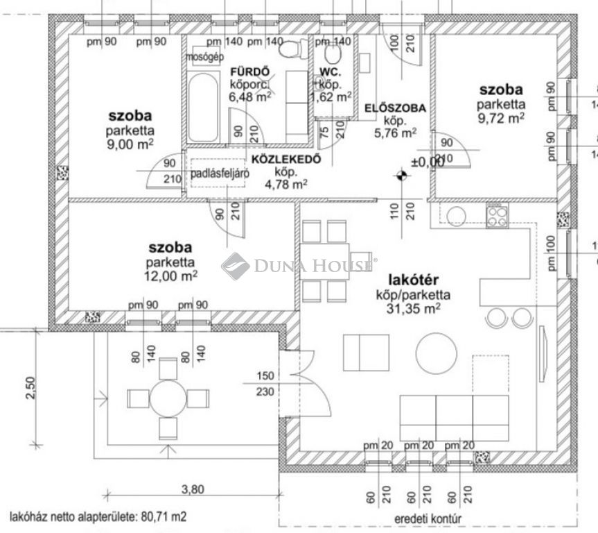
  • Alapterület: 81 m²
  • Telekterület: 506 m² ( 141 négyszögöl )
  • Építés éve: 2025
  • Egész szobák száma (12 m² felett): 4 db
  • Félszobák száma (6-12 m² között): 0 db
  • Fürdőszobák száma: 1 db
  • Ingatlan állapota: új építésű
  • Komfort: összkomfortos
  • Fűtés: gáz (cirko)
  • Pince: nincs
  • Akadálymentesített: nincs
  • Napelem van?: nincs
  • Légkondicionáló: nincs

Leírás

***Lakás helyett vegyen új építésű családi házat*** Kecskemét - Katonatelepen már megépült 81 m2-es , nappali+3 szobás családi ház bekerített, összközműves telken eladó! Az ár tartalmazza a telek árát is! Jellemzői: - telek 500 m2 ( összközműves) - lakótér 81 m2 - 10 m2 térkövezett terasz - gáz-cirkó fűtés, Bosch 2300 kazánnal, - padlófűtés - 3 BOSCH hűtő-fűtő klíma - Porotherm főfalak - 10 cm-es tégla válaszfalak (belső) - szeglemezes tető, 30 cm vtg.-ban befújt cellulóz szigetelés - fekete beton cserép tetőfedés - műanyag, Gelan tipusú bukó-nyíló nyílászárók (3 rétegű, 6 légkamrás), - biztonsági bejárati ajtó - redőny, szúnyogháló - 15 cm EPS homlokzati hőszigetelés - elektromos kapu A ház cégtől eladó alkalmas CSOK+-ra, 3%-os hitelre is!!! Azonnal költözhető! Hívjon ne maradjon le erről a remek lehetőségről! Referencia szám: HZ028178

E-mail küldése a hirdetőnek

Hibás hirdetés bejelentése

Sikeres elküldtük a hiba bejelentést.

Hirdető adatai

Peteh László
E-mail cím: peteh.laszlo@dh.hu
Telefonszám: +36309594210
Duna House
Hirdetés feladója: Ingatlaniroda
Ingatlaniroda: Duna House
E-mail cím: kecskemet@dh.hu
Telefonszám: +3676999636

Képek



Térkép


Ajánlott ingatlanok

Családi ház
  • Kecskemét
  • Alapterület: 260 m²
  • Telekterület: 650 m²
  • Ár: 198 000 000 Ft (514 286 €)
  • Feltöltés dátuma: 2022.11.24.
  •  
Családi ház

Jó állapotú családi ház, rendezett telken, melléképülettel

Keresés azonosító alapján: HI-2494695
  • Izsák
  • Alapterület: 136 m²
  • Telekterület: 974 m²
  • Ár: 48 000 000 Ft (124 675 €)
  • Feltöltés dátuma: 2025.10.29.
  • klímás
Családi ház

Nappali + 3 szobás felújított családi ház - 1000 nm-es telek

Keresés azonosító alapján: HI-2460020
  • Kunadacs
  • Alapterület: 100 m²
  • Telekterület: 1 080 m²
  • Ár: 54 900 000 Ft (142 597 €)
  • Feltöltés dátuma: 2025.08.09.
  • klímás
Családi ház

* * * Villanegyedben felújított polgári villa * * *

Keresés azonosító alapján: HI-2413486
  • Kecskemét
  • Alapterület: 190 m²
  • Telekterület: 978 m²
  • Ár: 220 000 000 Ft (571 429 €)
  • Feltöltés dátuma: 2025.05.05.
  • klímás
Facebook
Blogger
Twitter
Tweets by hasznaltingatla
Flickr