Kecskemét - Hetényegyháza 1 hektáros beépíthető telek !

Ingatlan azonosító: HI-2366287

Bács-Kiskun megye - Kecskemét, Külterületi


17 700 000 Ft (46 579 €)

  • Hirdetés feladója: Ingatlaniroda
  • Pontos cím: Kecskemét
  • Típus: Eladó
  • Belső irodai azonosító: TK098830-4847327
  • Telekterület: 10 407 m² ( 2 894 négyszögöl )
  • Villany: utcában
  • Gáz: nincs
  • Víz: utcában
  • Csatorna: nincs
  • Panorámás: nincs

Leírás

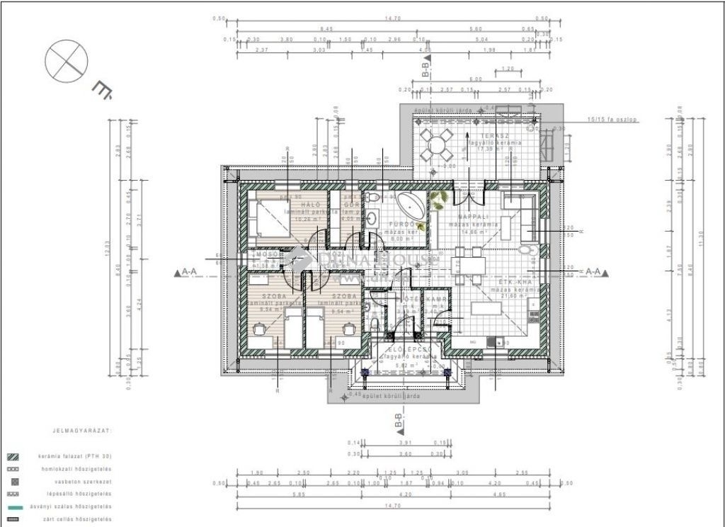
Építési telek eladó! Ha egy csendes környéken képzeli el családi házát és egy tágas, nagy területre vágyik, akkor ez a telek önre vár! Kecskemét-Hetényegyháza fejlődő részén eladó, 1 hektáros külterületi ÉPÍTÉSI telek. A területre vonatkozó szükséges jogszabályi változtatások megtörténtek, így beépítésre alkalmas. A telekre tervezett családiház építésének engedélyezése folyamatban van. Vezetékes víz és villany az utcában. A telek jellemzői: - besorolás MÁT - 10407 nm, ebből 400 nm kivett udvar - szabadon álló beépítési mód - legkisebb beépíthető telekméret 6000 nm - 3%-os beépíthetőség (1,5% lakó) - 5 m max épületmagasság A tervezett családiház: - 1,37% beépítési % - 142,5 nm alapterület (netto 110,29 nm) - nappali+3 szoba - nagyon jó elrendezésű, élhető terek A teljes tervdokumentációért és bővebb tájékoztatásért kérem keressen! Igény esetén megbízható kivitelezővel tudjuk biztosítani a tervezett ház szakszerű megépítését. Ügyfeleink számára díjmentes hiteltanácsadással állunk rendelkezésre. A telek ára tartalmazza a családiház terveit is. Referencia szám: TK098830

E-mail küldése a hirdetőnek

Hibás hirdetés bejelentése

Sikeres elküldtük a hiba bejelentést.

Hirdető adatai

Peteh László
E-mail cím: peteh.laszlo@dh.hu
Telefonszám: +36309594210
Duna House
Hirdetés feladója: Ingatlaniroda
Ingatlaniroda: Duna House
E-mail cím: kecskemet@dh.hu
Telefonszám: +3676999636

Képek



Térkép


Ajánlott ingatlanok

Lakóövezeti

6000 nm-es, osztható BELTERÜLETI telek a Ladánybenei úton

Keresés azonosító alapján: HI-2423819
  • Kecskemét
  • Telekterület: 6 052 m²
  • Ár: 135 000 000 Ft (355 263 €)
  • Feltöltés dátuma: 2025.05.27.
  •  
Családi ház

Tégla építésű, nappali + 4 szobás prémium új családi ház

Keresés azonosító alapján: HI-2216989
  • Nagykőrös
  • Alapterület: 91 m²
  • Telekterület: 1 m²
  • Ár: 57 557 000 Ft (151 466 €)
  • Feltöltés dátuma: 2024.04.30.
  • klímás
Ikerház

Nappali + 4 szobás új ikerház autóbeállóval, 334 nm telekkel

Keresés azonosító alapján: HI-2422168
  • Kecskemét
  • Alapterület: 120 m²
  • Telekterület: 334 m²
  • Ár: 108 500 000 Ft (285 526 €)
  • Feltöltés dátuma: 2025.05.23.
  •  
Családi ház

Nappali + 3 szobás felújított családi ház - 1000 nm-es telek

Keresés azonosító alapján: HI-2460020
  • Kunadacs
  • Alapterület: 100 m²
  • Telekterület: 1 080 m²
  • Ár: 54 900 000 Ft (144 474 €)
  • Feltöltés dátuma: 2025.08.09.
  • klímás
Facebook
Blogger
Twitter
Tweets by hasznaltingatla
Flickr