Kecskemét - Kadafalván új építésű ház.

Ingatlan azonosító: HI-2479892

Bács-Kiskun megye - Kecskemét, Könnyűszerkezetes ház


105 000 000 Ft (275 591 €)

  • Hirdetés feladója: Ingatlaniroda
  • Pontos cím: Kecskemét
  • Típus: Eladó
  • Belső irodai azonosító: 3620523-5043779
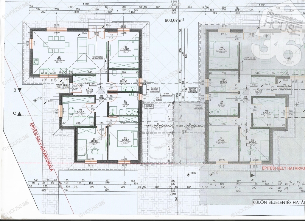
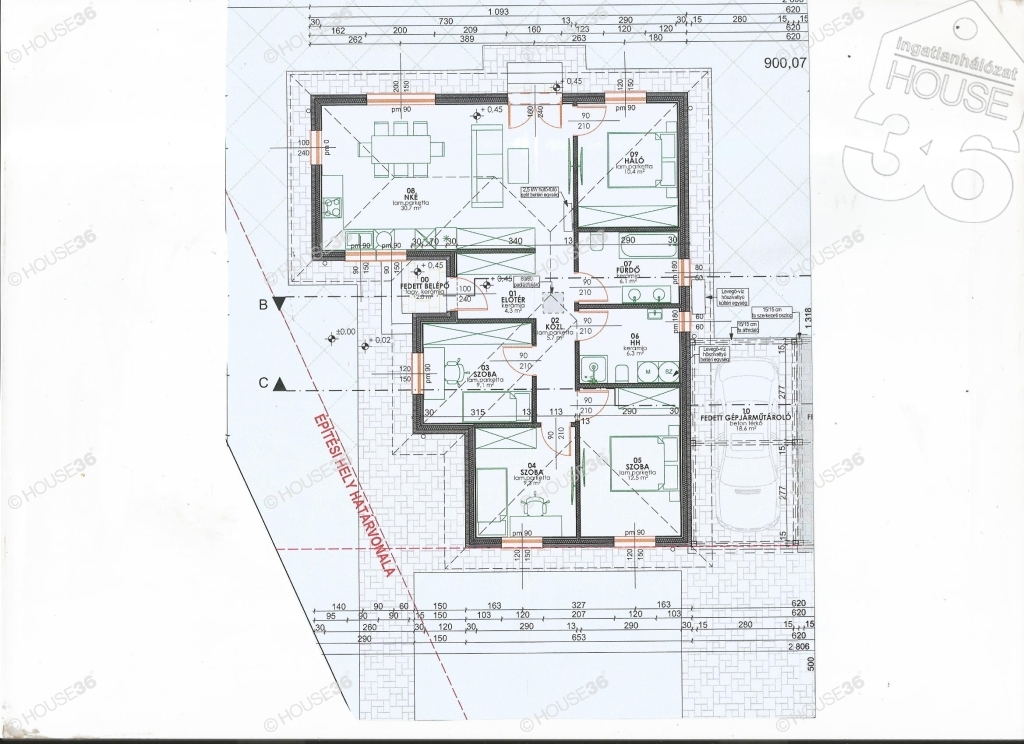
  • Alapterület: 94 m²
  • Telekterület: 450 m² ( 125 négyszögöl )
  • Építés éve: 2026
  • Egész szobák száma (12 m² felett): 4 db
  • Félszobák száma (6-12 m² között): 0 db
  • Ingatlan állapota: új építésű
  • Komfort: összkomfortos
  • Fűtés: egyéb
  • Pince: nincs
  • Akadálymentesített: nincs
  • Napelem van?: nincs
  • Légkondicionáló: nincs

Leírás

Kecskemét legkedveltebb városrészében eladó egy új építésű családi ház. Foglalja le most és 2026 nyarán már az iskola kezdés előtt be is költözhet . - 4 szoba + nagy nappali étkezővel. - hőszivattyú - padlófűtés - fedett gépkocsi beálló 18,6 m2 - betonút melletti - könnyűszerkezetes - nettó 94,4 m2 alapterület - bruttó alapterület 113,26 m2 - bruttó beépített alapterület 133,41 m2 - 450 m2 telek Választható színek, szaniterek, burkolatok, nyílászárók. Műszaki tartalomért keresse értékesítőinket. ​A HOUSE36 kínálatában lévő összes ingatlannal kapcsolatban tudok felvilágosítást nyújtani. Szolgáltatásaink kereső ügyfeleink részére ingyenesek. A fenti adatok tájékoztató jellegűek, felelősséget érte nem vállalok. Referencia szám: 3620523

E-mail küldése a hirdetőnek

Hibás hirdetés bejelentése

Sikeres elküldtük a hiba bejelentést.

Hirdető adatai

Major Éva
E-mail cím: eva.major@h36.hu
Telefonszám: +36704335341
agents
Hirdetés feladója: Ingatlaniroda

Képek



Térkép


Ajánlott ingatlanok

Könnyűszerkezetes ház

Kecskeméten, a Vacsi közben nappali + 2 szobás új ház eladó!

Keresés azonosító alapján: HI-2519750
  • Kecskemét
  • Alapterület: 70 m²
  • Telekterület: 350 m²
  • Ár: 79 000 000 Ft (207 349 €)
  • Feltöltés dátuma: 2026.01.09.
  •  
Könnyűszerkezetes ház

VACSIKÖZI EXKLUZÍV LAKÓPARKBAN NÍVÓS CSALÁDI HÁZ ELADÓ!

Keresés azonosító alapján: HI-2458775
  • Kecskemét
  • Alapterület: 115 m²
  • Telekterület: 455 m²
  • Ár: 135 900 000 Ft (356 693 €)
  • Feltöltés dátuma: 2025.08.06.
  •  
Könnyűszerkezetes ház

Kizárólag a HOUSE36 kínálatában!

Keresés azonosító alapján: HI-2462114
  • Kecskemét
  • Alapterület: 166 m²
  • Telekterület: 1 301 m²
  • Ár: 139 990 000 Ft (367 428 €)
  • Feltöltés dátuma: 2025.08.14.
  •  
Könnyűszerkezetes ház

Új építésű ikerház eladó Helvécián!

Keresés azonosító alapján: HI-2501481
  • Helvécia
  • Alapterület: 47 m²
  • Telekterület: 810 m²
  • Ár: 48 900 000 Ft (128 346 €)
  • Feltöltés dátuma: 2025.11.13.
  •  
Facebook
Blogger
Twitter
Tweets by hasznaltingatla
Flickr