Kecskemét - Kadafalván új építésű ház.

Ingatlan azonosító: HI-2531560

Bács-Kiskun megye - Kecskemét, Könnyűszerkezetes ház


105 000 000 Ft (277 778 €)

  • Hirdetés feladója: Ingatlaniroda
  • Pontos cím: Kecskemét Tövis utca
  • Típus: Eladó
  • Belső irodai azonosító: 3620523-5045909
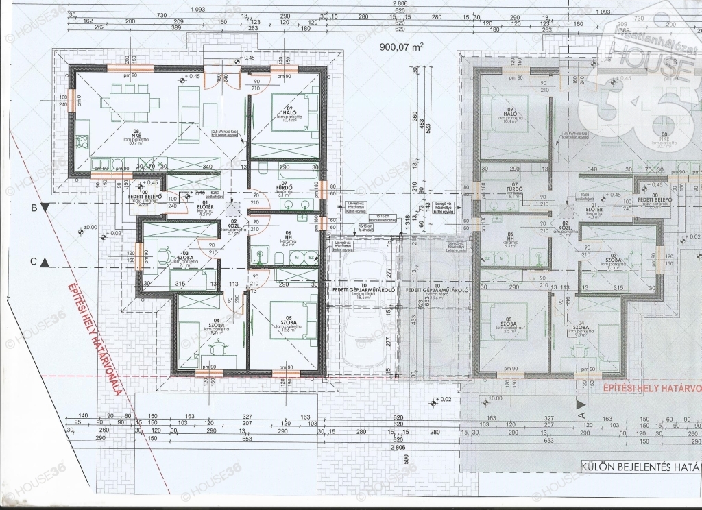
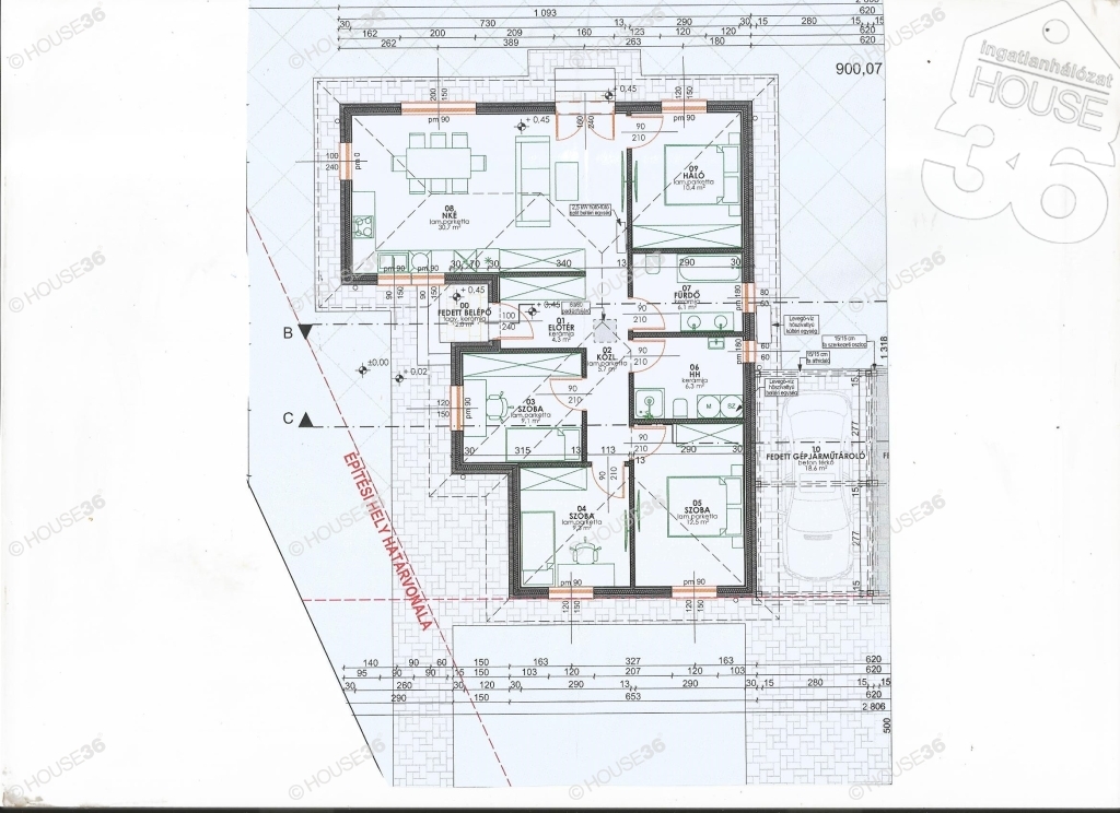
  • Alapterület: 94 m²
  • Telekterület: 450 m² ( 125 négyszögöl )
  • Építés éve: 2026
  • Egész szobák száma (12 m² felett): 4 db
  • Félszobák száma (6-12 m² között): 0 db
  • Ingatlan állapota: új építésű
  • Komfort: összkomfortos
  • Fűtés: egyéb
  • Pince: nincs
  • Akadálymentesített: nincs
  • Napelem van?: nincs
  • Légkondicionáló: nincs

Leírás

Kecskemét legkedveltebb városrészében eladó egy új építésű családi ház. Foglalja le most és 2026 nyarán már az iskola kezdés előtt be is költözhet. - 4 szoba + nagy nappali étkezővel. - hőszivattyú - padlófűtés - fedett gépkocsi beálló 18,6 m2 - betonút melletti - könnyűszerkezetes - nettó 94,4 m2 alapterület - bruttó alapterület 113,26 m2 - bruttó beépített alapterület 133,41 m2 - 450 m2 telek Választható színek, szaniterek, burkolatok, nyílászárók. Műszaki tartalomért keresse értékesítőinket. ​A HOUSE36 kínálatában lévő összes ingatlannal kapcsolatban tudok felvilágosítást nyújtani. Szolgáltatásaink kereső ügyfeleink részére ingyenesek. Az iroda legfrissebb, aktuális kínálatát a HOUSE36 saját weboldalán találja!

E-mail küldése a hirdetőnek

Hibás hirdetés bejelentése

Sikeres elküldtük a hiba bejelentést.

Hirdető adatai

Dr. Lizik Zoltán
E-mail cím: zoltan.lizik@h36.hu
Telefonszám: +36706497967
Hirdetés feladója: Ingatlaniroda

Képek



Térkép


Ajánlott ingatlanok

Könnyűszerkezetes ház
  • Kecskemét
  • Alapterület: 81 m²
  • Telekterület: 6 500 m²
  • Ár: 66 500 000 Ft (175 926 €)
  • Feltöltés dátuma: 2026.02.04.
  •  
Könnyűszerkezetes ház

Ébredjen madárcsicsergésre minden nap!

Keresés azonosító alapján: HI-2531609
  • Kecskemét
  • Alapterület: 126 m²
  • Telekterület: 821 m²
  • Ár: 103 500 000 Ft (273 810 €)
  • Feltöltés dátuma: 2026.02.04.
  •  
Könnyűszerkezetes ház

100 m2-es új családi ház eladó kitűnő áron!

Keresés azonosító alapján: HI-2531549
  • Kecskemét
  • Alapterület: 100 m²
  • Telekterület: 1 m²
  • Ár: 52 000 000 Ft (137 566 €)
  • Feltöltés dátuma: 2026.02.04.
  • klímás
Könnyűszerkezetes ház

Új építésű ikerház eladó Kecskeméten szuper áron!

Keresés azonosító alapján: HI-2531624
  • Kecskemét
  • Alapterület: 72 m²
  • Telekterület: 350 m²
  • Ár: 66 900 000 Ft (176 984 €)
  • Feltöltés dátuma: 2026.02.04.
  •  
Facebook
Blogger
Twitter
Tweets by hasznaltingatla
Flickr