KECSKEMÉTEN önálló telken ÚJSZERŰ CSALÁDI HÁZ eladó!

Ingatlan azonosító: HI-2547352

Bács-Kiskun megye - Kecskemét, Családi ház


99 500 000 Ft (256 443 €)

  • Hirdetés feladója: Ingatlaniroda
  • Pontos cím: Kecskemét
  • Típus: Eladó
  • Belső irodai azonosító: 3621308-5166819
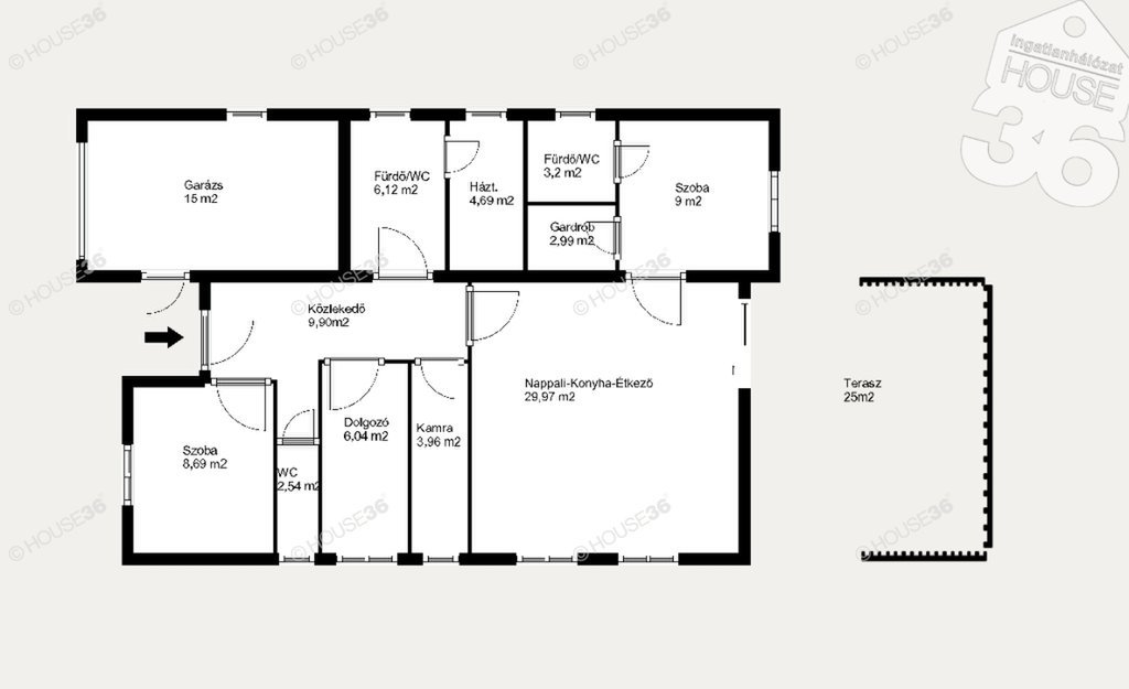
  • Alapterület: 92 m²
  • Telekterület: 809 m² ( 225 négyszögöl )
  • Építés éve: 2019
  • Egész szobák száma (12 m² felett): 3 db
  • Félszobák száma (6-12 m² között): 0 db
  • Ingatlan állapota: jó állapotú
  • Fűtés: egyéb
  • Pince: nincs
  • Akadálymentesített: nincs
  • Napelem van?: nincs
  • Légkondicionáló: nincs

Leírás

Kecskemét - Katonatelepen önálló 809 m2-es telken, 92 m2-es, nappali + 2 szobás családi ház eladó! Jellemzők: -809 m2-es önálló telek -nappali + 2 szoba (3. szoba kialakítható) -2019-es építés -elektromos fűtés -5 kw napelem -klíma -garázs -ápolt, beállt kert -beépített konyha -csendes környék, új építésű házak a szomszédságban ​ Figyelem az adatlap megbízóinktól kapott adatok alapján készült, pontosságáért felelősséget nem tudunk vállalni! ​ A HOUSE36 kínálatában található összes ingatlannal kapcsolatban tudok felvilágosítást nyújtani! Hívjon bizalommal! Szolgáltatásaink Kereső ügyfeleink számára INGYENESEK! ​ Ha az ingatlan vásárláshoz meglévő ingatlan eladása szüksége keressen nyugodtan állok rendelkezésére!! Az iroda legfrissebb, aktuális kínálatát a HOUSE36 saját weboldalán találja!

E-mail küldése a hirdetőnek

Hibás hirdetés bejelentése

Sikeres elküldtük a hiba bejelentést.

Hirdető adatai

Mihócza Zsolt
E-mail cím: zsolt.mihocza@h36.hu
Telefonszám: +36306861118
Hirdetés feladója: Ingatlaniroda

Képek



Térkép


Ajánlott ingatlanok

Családi ház

ÁLOMHÁZ KECSKEMÉTEN A VACSIKÖZBEN!!! NÉZZÜK MEG!

Keresés azonosító alapján: HI-2531376
  • Kecskemét
  • Alapterület: 156 m²
  • Telekterület: 867 m²
  • Ár: 213 900 000 Ft (551 289 €)
  • Feltöltés dátuma: 2026.02.04.
  •  
Családi ház

LAKITELEKEN A TISZA MELLETT CSALÁDI HÁZ ELADÓ!

Keresés azonosító alapján: HI-2531391
  • Lakitelek
  • Alapterület: 75 m²
  • Telekterület: 5 178 m²
  • Ár: 44 900 000 Ft (115 722 €)
  • Feltöltés dátuma: 2026.02.04.
  •  
Családi ház

Felújított otthon Kecskeméten, ahova csak költözni kell!

Keresés azonosító alapján: HI-2531374
  • Kecskemét
  • Alapterület: 66 m²
  • Telekterület: 800 m²
  • Ár: 42 500 000 Ft (109 536 €)
  • Feltöltés dátuma: 2026.02.04.
  •  
Családi ház

NAGYKŐRÖS EGYIK LEGSZEBB UTCÁJÁBAN CSALÁDI HÁZ ELADÓ!

Keresés azonosító alapján: HI-2531436
  • Nagykőrös
  • Alapterület: 50 m²
  • Telekterület: 544 m²
  • Ár: 29 900 000 Ft (77 062 €)
  • Feltöltés dátuma: 2026.02.04.
  •  
Facebook
Blogger
Twitter
Tweets by hasznaltingatla
Flickr