KECSKEMÉTEN szigetelt tömbben 3 szobás, ERKÉLYES LAKÁS eladó!

Ingatlan azonosító: HI-2531395

Bács-Kiskun megye - Kecskemét, Panel lakás


44 900 000 Ft (118 783 €)

  • Hirdetés feladója: Ingatlaniroda
  • Pontos cím: Kecskemét
  • Típus: Eladó
  • Belső irodai azonosító: 3620926-5104269
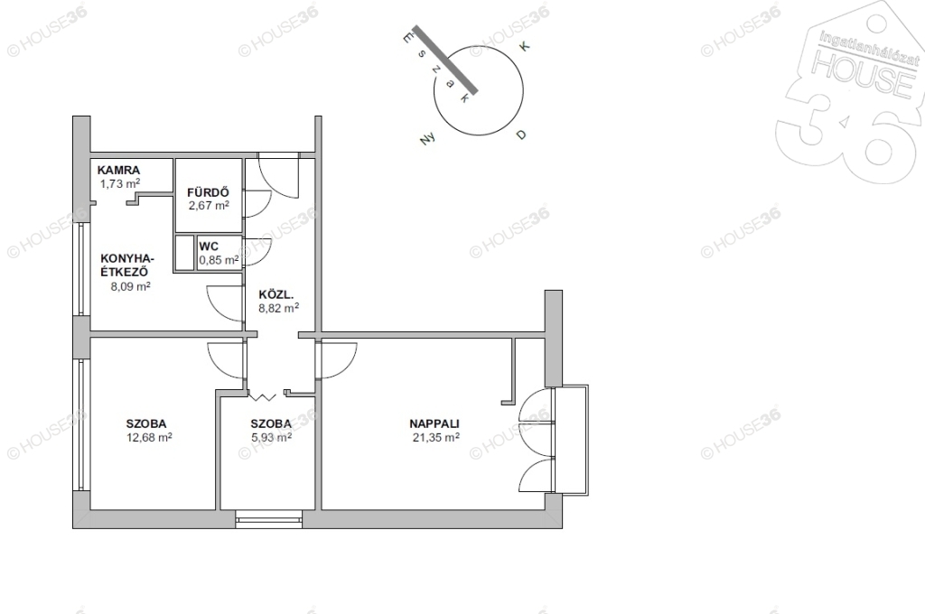
  • Alapterület: 61 m²
  • Építés éve: 1978
  • Egész szobák száma (12 m² felett): 3 db
  • Félszobák száma (6-12 m² között): 0 db
  • Emelet: 10. emelet
  • Ingatlan állapota: közepes állapotú
  • Fűtés: távfűtes egyedi méréssel
  • Lift: nincs
  • Akadálymentesített: nincs
  • Energiatanúsítvány: A
  • Napelem van?: nincs
  • Erkély: van
  • Légkondicionáló: nincs
  • A lakás falazata: Panel

Leírás

Kecskemét Széchenyivárosban, 61 m2-es, 3 szobás, erkélyes lakás, liftes házban eladó! Jellemzők: -szigetelt tömb -3 külön nyíló szoba -lift -cserélt műanyag-nyílászárók -távfűtés egyedi mérőkkel -kitűnő infrastruktúra -azonnal birtokba vehető Figyelem az adatlap megbízóinktól kapott adatok alapján készült,pontosságáért felelősséget nem tudunk vállalni! ​ A HOUSE36 kínálatában található összes ingatlannal kapcsolatban tudok felvilágosítást nyújtani! Hívjon bizalommal! Szolgáltatásaink Kereső ügyfeleink számára INGYENESEK! ​ Ha az ingatlan vásárláshoz meglévő ingatlan eladása szüksége keressen nyugodtan állok rendelkezésére!! Az iroda legfrissebb, aktuális kínálatát a HOUSE36 saját weboldalán találja!

E-mail küldése a hirdetőnek

Hibás hirdetés bejelentése

Sikeres elküldtük a hiba bejelentést.

Hirdető adatai

Mihócza Zsolt
E-mail cím: zsolt.mihocza@h36.hu
Telefonszám: +36306861118
Hirdetés feladója: Ingatlaniroda

Képek



Térkép


Ajánlott ingatlanok

Panel lakás

Eladó 74 m2-es nappali+2 szobás SORHÁZI LAKÁS KECSKEMÉTEN!

Keresés azonosító alapján: HI-2531385
  • Kecskemét
  • Alapterület: 74 m²
  • Ár: 79 900 000 Ft (211 376 €)
  • Feltöltés dátuma: 2026.02.04.
  •  
Panel lakás
  • Kecskemét
  • Alapterület: 35 m²
  • Ár: 36 900 000 Ft (97 619 €)
  • Feltöltés dátuma: 2026.02.04.
  •  
Panel lakás
  • Kecskemét
  • Alapterület: 63 m²
  • Ár: 43 900 000 Ft (116 138 €)
  • Feltöltés dátuma: 2026.02.04.
  •  
Panel lakás
  • Kecskemét
  • Alapterület: 62 m²
  • Ár: 51 500 000 Ft (136 243 €)
  • Feltöltés dátuma: 2026.02.04.
  •  
Facebook
Blogger
Twitter
Tweets by hasznaltingatla
Flickr