Kiadó ház Budapest 12. ker., Farkasvölgy - Csillebérc

Ingatlan azonosító: HI-2529163

Budapest - Budapest XII., Családi ház


1 133 430 Ft (2 998 €)

  • Hirdetés feladója: Ingatlaniroda
  • Pontos cím: Budapest XII.
  • Típus: Kiadó
  • Belső irodai azonosító: H499060-5138828
  • Alapterület: 350 m²
  • Telekterület: 1 243 m² ( 346 négyszögöl )
  • Építés éve: 2002
  • Egész szobák száma (12 m² felett): 7 db
  • Félszobák száma (6-12 m² között): 0 db
  • Fürdőszobák száma: 4 db
  • Ingatlan állapota: felújított
  • Fűtés: gáz (cirko)
  • Pince: nincs
  • Akadálymentesített: nincs
  • Napelem van?: nincs
  • Légkondicionáló: nincs

Leírás

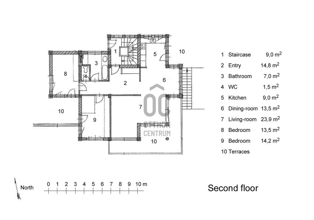
Kerek erdő közepén, luxus családi ház kiadó! Az ingatlant SZEMÉLYES MEGTEKINTÉSEM alapján vettem nyilvántartásba! Budapest XII. (12) kerület Csillebérc Moha utca. Természetvédelmi területen egy minden igényt kielégítő, körpanorámás, 3 szintes, 350 nm-es, luxus családi ház kiadó. A ház rendelkezik egy 1243 nm-es ápolt kerttel. Nagyon jó elrendezésű nappali, étkező, gépesített amerikai konyha, 4 hálószoba és egy vendégszoba, felszerelt háztartási helyiség. 4 fürdőszoba és külön WC-k biztosítják a kényelmet. A mozgás sem hiányozhat a kényelem mellett erről gondoskodik a kondi terem és a beltéri medence ellen áramoltatóval + szauna. Teraszok minden szinten megtalálhatóak. A házhoz tartozik egy 2 állásos garázs 2 gépkocsival a telken belül is lehet parkolni. Tároló, riasztó, szatelit, internet, Kiadási feltételek: 3.000.- EUR/hó + reuózsi, minimum 3 évre, 1 hó kaucióval. A ház ózon-ionizációs fertőtlenítéssel lesz átadva. Luxury family house for rent in the middle of a round forest! I registered the property based on my PERSONAL VIEWING! Located in Budapest XII. district, Csillebérc, Moha Street. A 350 sqm luxury family house with panoramic views, satisfying all needs, for rent in a nature conservation area. The house has a well-maintained garden of 1243 sqm. It features a well-designed living room, dining area, equipped American kitchen, 4 bedrooms, a guest room, and a utility room. There are 4 bathrooms and separate toilets for comfort. For those who enjoy movement, there is a gym and an indoor pool with a counter-current system + sauna. Terraces are available on every level. The house includes a 2-car garage, with additional parking available on the property. Storage, alarm system, satellite, internet. Rental conditions: 3,000 EUR/month + utilities, minimum 3 years, with a 1-month deposit. The house will be handed over with ozone-ionization disinfection. #tpingatlan #szakerto #forrent #ertekesito # specialista #budapest #kiado #XIIkerület #12kerulet #alaprajz #rent #ingatlanszakerto #profiingatlanos #premiumingatlanok #haz #otthoncentrum #realestatebudapest #luxus #kiadohaz #hause #home #luxury #otthonszakerto #property #forrent Referencia szám: H499060

E-mail küldése a hirdetőnek

Hibás hirdetés bejelentése

Sikeres elküldtük a hiba bejelentést.

Hirdető adatai

Tóth Péter
E-mail cím: toth.peter@oc.hu
Telefonszám: +36 70 716 9421
Otthon Centrum
Hirdetés feladója: Ingatlaniroda
Ingatlaniroda: Otthon Centrum
E-mail cím: varosmajor@oc.hu
Telefonszám: +36 70 454 1235

Képek



Térkép


Ajánlott ingatlanok

Családi ház

Eladó ház Budapest 12. ker., Magasút

Keresés azonosító alapján: HI-2521560
  • Budapest XII.
  • Alapterület: 365 m²
  • Telekterület: 1 514 m²
  • Ár: 450 000 000 Ft (1 190 476 €)
  • Feltöltés dátuma: 2026.01.13.
  •  
Családi ház

Eladó ház Budapest 18. ker., Belsőmajor

Keresés azonosító alapján: HI-2521564
  • Budapest XVIII.
  • Alapterület: 145 m²
  • Telekterület: 500 m²
  • Ár: 144 900 000 Ft (383 333 €)
  • Feltöltés dátuma: 2026.01.13.
  •  
Családi ház

Eladó ház Budapest 12. ker., Orbánhegy

Keresés azonosító alapján: HI-2526310
  • Budapest XII.
  • Alapterület: 450 m²
  • Telekterület: 986 m²
  • Ár: 460 000 000 Ft (1 216 931 €)
  • Feltöltés dátuma: 2026.01.27.
  •  
Családi ház

Eladó ház Budapest 18. ker., Belsőmajor

Keresés azonosító alapján: HI-2521559
  • Budapest XVIII.
  • Alapterület: 168 m²
  • Telekterület: 600 m²
  • Ár: 164 900 000 Ft (436 243 €)
  • Feltöltés dátuma: 2026.01.13.
  •  
Facebook
Blogger
Twitter
Tweets by hasznaltingatla
Flickr