Kiadó Iroda, Budapest 6. ker.

Ingatlan azonosító: HI-2462532

Budapest - Budapest VI., Irodaházban A, A+ kat.


1 024 868 Ft (2 614 €)

  • Hirdetés feladója: Ingatlaniroda
  • Pontos cím: Budapest VI.
  • Típus: Kiadó
  • Belső irodai azonosító: M309390-5011918
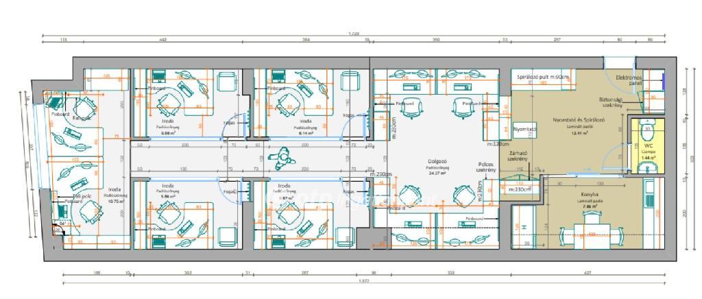
  • Alapterület: 82 m²
  • Építés éve: 1952
  • Félszobák száma (6-12 m² között): 0 db
  • Emelet: földszint
  • Lift: van
  • Akadálymentesített: nincs
  • Napelem van?: nincs
  • Légkondicionáló: van

Leírás

Bazilika, Bajcsy Zsilinszky út, Zichy út, Andrássy út vonzáskörzetében luxus módon berendezett 82 nm-es iroda hosszú távra bérbe adó. Lehetőség van az épületben még egy 78 nm-es, belső 3 szintes irodát (utcai bejáratú üzlethelyiséget) bérelni. Az iroda elrendezése jelenleg egyterű illetve cellás (külön álló szobák) kialakítású, de természetesen ezen lehet változtatni. Rendelkezésre áll egy külön kis étkező rész, konyha illetve mosdó is. Az ingatlant 2018-ben teljes körűen felújította a tulajdonos, ekkor építették be a klímát is, alakítottak ki egyedi mérőórákat. Az elszámolást havonta a fogyasztás alapján számolja el a tulajdonos. A közelben lévő parkolóházban lehetőség van több autó kedvezményes parkoltatására is. A tulajdonos a bérlő választás jogát fenntartja, a szerződést közjegyzői okiratba foglaltatja, 3 havi kaució + 1 havi bérleti díj megfizetése után azonnal költözhető. M309390 Referencia szám: M309390-HI

E-mail küldése a hirdetőnek

Hibás hirdetés bejelentése

Sikeres elküldtük a hiba bejelentést.

Hirdető adatai

Takács Zsuzsanna
E-mail cím: takacs.zsuzsanna@otpip.hu
Telefonszám: +36304953819
OTPip
Hirdetés feladója: Ingatlaniroda
Ingatlaniroda: OTPip
E-mail cím: budapest13.lehelutca@otpip.hu
Telefonszám: +36706136133

Képek



Térkép


Ajánlott ingatlanok

Irodaházban A, A+ kat.

Eladó Irodaház, Budapest 13. ker.

Keresés azonosító alapján: HI-2419801
  • Budapest XIII.
  • Alapterület: 679 m²
  • Ár: 599 000 000 Ft (1 528 061 €)
  • Feltöltés dátuma: 2025.05.19.
  • klímás
Irodaházban A, A+ kat.

Kiadó Irodaház, Budapest 1. ker.

Keresés azonosító alapján: HI-2444014
  • Budapest I.
  • Alapterület: 668 m²
  • Ár: 4 739 620 Ft (12 091 €)
  • Feltöltés dátuma: 2025.07.12.
  •  
Irodaházban A, A+ kat.

Kiadó Irodaház, Budapest 1. ker.

Keresés azonosító alapján: HI-1940852
  • Budapest I.
  • Alapterület: 756 m²
  • Ár: 4 440 438 Ft (11 328 €)
  • Feltöltés dátuma: 2022.08.25.
  • klímás
Irodaházban A, A+ kat.

Kiadó Irodaház, Budapest 11. ker.

Keresés azonosító alapján: HI-1959883
  • Budapest XI.
  • Alapterület: 101 m²
  • Ár: 433 598 Ft (1 106 €)
  • Feltöltés dátuma: 2022.10.03.
  • klímás
Facebook
Blogger
Twitter
Tweets by hasznaltingatla
Flickr