Kiadó Üzlethelyiség, Szigetszentmiklós

Ingatlan azonosító: HI-2488256

Pest megye - Szigetszentmiklós, Utcai bejárattal


2 178 016 Ft (6 000 €)

  • Hirdetés feladója: Ingatlaniroda
  • Pontos cím: Szigetszentmiklós
  • Típus: Kiadó
  • Belső irodai azonosító: M312400-5047795
  • Építés éve: 1960
  • Fűtés: gáz + napkollektor
  • Napelem van?: nincs

Leírás

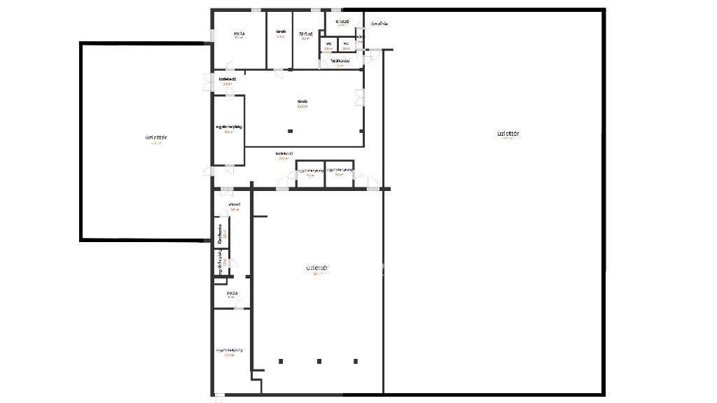
Szigetszentmiklós forgalmas útján kiadó 1027 nm-es földszinti + 140 nm-es emeleti, saját parkolókkal rendelkező épület együttes 400 nm-es üzlethelyisége. A parkolóban 6 csomagautomata is üzemel. Az ingatlan jelenleg üres, korábban élelmiszer üzlet működött benne. Igény esetén a tulajdonos nyitott további területek bérbeadására is. A bérleti díj : 12,5 EUR / m2 / hó + áfa -tól, tevékenységi kör és bérelt terület nagyságától változhat. Üzemeltetési díj: 0,95 EUR. 2017-ben az épületet teljes körűen felújították, kicserélték a víz,- villany vezetékeket, portálokat, álmennyezetet, burkolatokat, gyengeáramú rendszereket, korszerűsítették a hűtés-fűtés rendszert, a kamera,- és riasztó rendszert. Daikin VRV (Conveni Pack +Zeas) 2021-ben és 2023-ban energetikai fejlesztések történtek 83 KW-os napelemrendszer ABB inverter illetve 15,39 KW-os napelem rendszer bővítés (mérve 90.000 KW + áram termelés/év - szaldós elszámolással. További részletekért kérem keressen a megadott elérhetőségemen. A tulajdonos a bérlő választás jogát fenntartja, a szerződést közjegyzői okiratba foglaltatja, melynek a költsége a bérlőt terheli. 2 havi kaució és 1 havi bérleti díj megfizetése után azonnal költözhető. Minimum bérleti idő 5 év. M312400 Referencia szám: M312400-HI

E-mail küldése a hirdetőnek

Hibás hirdetés bejelentése

Sikeres elküldtük a hiba bejelentést.

Hirdető adatai

Takács Zsuzsanna
E-mail cím: takacs.zsuzsanna@otpip.hu
Telefonszám: +36304953819
OTPip
Hirdetés feladója: Ingatlaniroda
Ingatlaniroda: OTPip
E-mail cím: budapest13.lehelutca@otpip.hu
Telefonszám: +36706136133

Képek



Térkép


Ajánlott ingatlanok

Utcai bejárattal

Eladó Üzlethelyiség, Budapest 20. ker.

Keresés azonosító alapján: HI-2423654
  • Budapest XX.
  • Alapterület: 65 m²
  • Ár: 48 000 000 Ft (132 231 €)
  • Feltöltés dátuma: 2025.05.26.
  • klímás
Utcai bejárattal

Eladó Üzlethelyiség, Budapest 7. ker.

Keresés azonosító alapján: HI-2421833
  • Budapest VII.
  • Alapterület: 91 m²
  • Ár: 158 000 000 Ft (435 262 €)
  • Feltöltés dátuma: 2025.05.23.
  • klímás
Utcai bejárattal

Kiadó Üzlethelyiség, Budapest 14. ker.

Keresés azonosító alapján: HI-2282306
  • Budapest XIV.
  • Alapterület: 393 m²
  • Ár: 3 000 000 Ft (8 264 €)
  • Feltöltés dátuma: 2024.08.15.
  • klímás
Utcai bejárattal

Kiadó Üzlethelyiség, Budapest 14. ker.

Keresés azonosító alapján: HI-2553098
  • Budapest XIV.
  • Alapterület: 282 m²
  • Ár: 2 016 542 Ft (5 555 €)
  • Feltöltés dátuma: 2026.03.22.
  •  
Facebook
Blogger
Twitter
Tweets by hasznaltingatla
Flickr