Különleges Lehetőség a Belvárosban! 250 m2 Ház, 50% Beépíthető Telekkel!

Ingatlan azonosító: HI-2502957

Bács-Kiskun megye - Kecskemét, Családi ház


140 000 000 Ft (367 454 €)

  • Hirdetés feladója: Ingatlaniroda
  • Pontos cím: Kecskemét
  • Típus: Eladó
  • Belső irodai azonosító: 3620698-5087886
  • Alapterület: 250 m²
  • Telekterület: 539 m² ( 150 négyszögöl )
  • Építés éve: 1998
  • Egész szobák száma (12 m² felett): 5 db
  • Félszobák száma (6-12 m² között): 0 db
  • Ingatlan állapota: jó állapotú
  • Komfort: összkomfortos
  • Fűtés: gáz (cirko)
  • Pince: nincs
  • Akadálymentesített: nincs
  • Napelem van?: nincs
  • Légkondicionáló: nincs

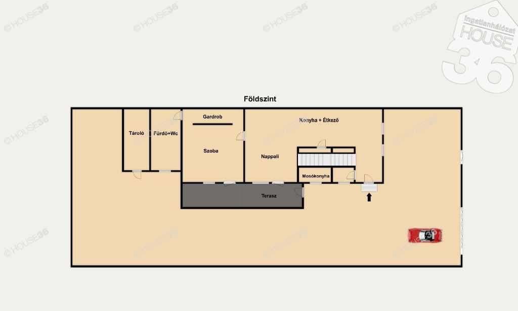
Leírás

Különleges lehetőség Kecskemét belvárosában! 250 m² lakóterű családi ház – 539 m²-es telekkel, melléképülettel és kiváló adottságokkal eladó! A város szívében, mégis csendes környezetben kínáljuk megvételre ezt a tágas, 5 szobás, kétszintes családi házat, amely igazi otthon lehet nagycsaládosoknak vagy akár vállalkozásra, rendelőnek, irodának is ideális választás. Főbb jellemzők: Lakótér: 250 m² Telek területe: 539 m² Szobák száma: 5 + konyha-étkező Fürdőszobák: 2 WC-k: 2 Építés éve: 1998, felújítva: 2015 Fűtés: gáz cirkó rendszer Állapot: jó állapotú, azonnal költözhető Melléképület: tárolásra alkalmas, 18 m² Parkolás: gépkocsi beálló Tetőtér beépített, további bővítésre alkalmas ​Telek és beépíthetőség: Beépíthetőség: 50% Megengedett építménymagasság: 9,5 m Ez kiváló lehetőség akár bővítésre, új épület kialakítására vagy befektetési célra. Elhelyezkedés: Belvárosi lokáció, minden elérhető közelségben: Buszmegálló, bolt 50 méter Iskola/óvoda: 100 méter Mégis nyugodt, családias környezet, rendezett utcafronttal. Figyelem az adatlap megbízónktól kapott adatok alapján készült, pontosságáért felelősséget nem tudunk vállalni! Az iroda legfrissebb, aktuális kínálatát a HOUSE36 saját weboldalán találja!

E-mail küldése a hirdetőnek

Hibás hirdetés bejelentése

Sikeres elküldtük a hiba bejelentést.

Hirdető adatai

Vezsenyi Gábor
E-mail cím: gabor.vezsenyi@h36.hu
Telefonszám: +36703363821
Hirdetés feladója: Ingatlaniroda

Képek



Térkép


Ajánlott ingatlanok

Családi ház

Kerekdombon hangulatos nyaraló eladó!

Keresés azonosító alapján: HI-2506515
  • Tiszakécske
  • Alapterület: 38 m²
  • Telekterület: 336 m²
  • Ár: 20 900 000 Ft (54 856 €)
  • Feltöltés dátuma: 2025.11.26.
  •  
Családi ház

Kiadó egy igazi ékszerdoboz Kecskemét szívében!

Keresés azonosító alapján: HI-2456806
  • Kecskemét
  • Alapterület: 135 m²
  • Telekterület: 305 m²
  • Ár: 880 000 Ft (2 310 €)
  • Feltöltés dátuma: 2025.08.02.
  •  
Családi ház

Nívós nappali + 4 szobás családi ház eladó!

Keresés azonosító alapján: HI-2456803
  • Kecskemét
  • Alapterület: 105 m²
  • Telekterület: 719 m²
  • Ár: 139 000 000 Ft (364 829 €)
  • Feltöltés dátuma: 2025.08.02.
  •  
Családi ház

Otthon és befektetés egyben, a BELVÁROSBAN!

Keresés azonosító alapján: HI-2456853
  • Kecskemét
  • Alapterület: 105 m²
  • Telekterület: 331 m²
  • Ár: 59 900 000 Ft (157 218 €)
  • Feltöltés dátuma: 2025.08.02.
  •  
Facebook
Blogger
Twitter
Tweets by hasznaltingatla
Flickr